EXQUISITE NEUBAUWOHNUNG IM 1. STOCK MIT HOCHWERTIGER BAUWEISE UND MEERBLICK IN TOP-LAGE IN ZATON
Exklusive Neubauwohnung mit Meerblick in Zaton, Nähe Zadar
Die luxuriöse Neubauwohnung punktet mit einer atemberaubenden Meeresentfernung von nur 10 Metern und hat Zugang zu den Annehmlichkeiten von Zaton in Kroatien. Der charmante Urlaubsort Zaton in der Region Dalmatien bietet nicht nur Ruhe und Erholung, sondern auch reiches kulturelles Erbe, eine vielfältige Natur und zahlreiche Freizeitmöglichkeiten. Die Nähe zu Nin und Zadar ermöglicht spannende Erkundungstouren und die Entdeckung idyllischer Orte wie Privlaka, Bibinje, Sukosan und Petrcane. Genießen Sie die traumhaften Strände und das azurblaue Wasser der Adria vor Ihrer Haustür. Freuen Sie sich auf absolutes Wohlbefinden und eine exklusive Wohnatmosphäre in dieser erstklassigen Lage.
Willkommen in Ihrer luxuriösen Neubauwohnung im 1. Stock eines exquisiten Projekts mit insgesamt 4 Einheiten, die sich über 2 Etagen erstrecken. Erwarten Sie hier hochwertige Bauweise, erstklassige Konstruktion und modernste Ausstattung. Der Neubau wird voraussichtlich Ende 2025 fertiggestellt und bietet Ihnen exklusiven Wohnkomfort auf höchstem Niveau. Ein Außenparkplatz sorgt für bequemes Parken direkt vor der Tür.
Moderne Neubauwohnung mit atemberaubendem Meerblick
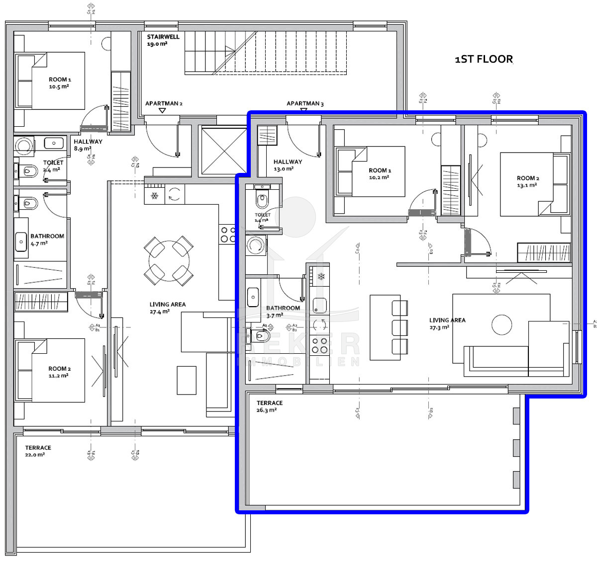
Diese Neubauwohnung mit einem Grundriss von 69 m² bietet modernen Komfort und Stil. Der Eingangsbereich führt in einen offenen Wohn-, Ess- und Küchenbereich, 2 Schlafzimmer und 1 Badezimmer. Ein Gäste-WC rundet das Angebot ab. Der 26 m² große Balkon verwandelt sich in einen schönen Aufenthaltsraum im Freien und bietet einen atemberaubenden Panorama-Meerblick. Genießen Sie hier entspannte Stunden und beobachten Sie den Sonnenuntergang über dem Meer.
Die Etagenwohnung erwartet Sie in Zaton!
- Ort: Zaton (Dorf)
- Einwohnerzahl: 980 (2011)
- Region: Dalmatien-Zadar
- Autobahnentfernung: ca. 15 km *
- Nächster Flughafen: Zadar / ca. 70 km *
Immobiliendaten
- Objektart: Wohnung
- Objekttyp: Etagenwohnung
- Baujahr: 2025
- ID: 7386
- Kaufpreis: 680.000 €
- Provision: 3,75 % inkl. MwSt. in Kroatien
- Wohnfläche: 69 m²
- Anzahl Zimmer: 3
- Anzahl Schlafzimmer: 2
- Anzahl Badezimmer: 1
- Land: Kroatien
- Region: Dalmatien-Zadar
- Ort: Zaton
- Lage: Ortslage
- Meerentfernung: 10 m
Haben Sie Interesse die schöne Etagenwohnung zu besitzen?
Nehmen Sie gerne Kontakt mit mir auf!
Ich bin Heiner Reker, Gründer und
Geschäftsführer von Reker Immobilien d.o.o. Ich begleite Sie bei Ihrer aufregenden Reise in die Welt der Immobilien in Kroatien.
Gerne organisiere ich persönlich mit meinen qualifizierten Partnern jeden Schritt bei Ihrem rechtssicheren und stressfreien Immobilienkauf in Kroatien.
Füllen Sie das Formular aus und ich melde mich gerne zum gewünschten Zeitpunkt bei Ihnen.
Bis bald
Exposé mitnehmen?
Laden Sie unser PDF-Exposé herunter und Sie haben die wichtigste Objektdaten & Bilder immer zur Hand
Exposé mitnehmen?
Nehmen Sie Kontakt mit uns auf, ein Exposé schicken wir gerne per E-Mail
Ihre Traum-Immobilie noch nicht gefunden?
Besuchen Sie diese Seiten!











