INVESTIEREN SIE IN IHRE ZUKUNFT: NEUBAUWOHNUNG IM 1. STOCK MIT MEER-PANORAMA IN ZADAR
Erstklassige Lage in Zadar
Der Neubau liegt nur wenige Schritte vom Meer in Zadar entfernt und bietet luxuriösen Wohnkomfort. Mit dem Strand direkt vor der Haustür und dem Meer nur 20 Meter entfernt, können Sie die Sonne und das Meer in vollen Zügen genießen. Geschäfte und Restaurants befinden sich in unmittelbarer Nähe, sodass für Ausgeh- und Einkaufsmöglichkeiten gesorgt ist. Das Zentrum von Zadar ist in 3 km erreichbar und lädt mit seinen kulturellen und historischen Sehenswürdigkeiten zu Erkundungstouren ein. Die Region bietet traumhafte Strände, kristallklares Wasser und ein breites Freizeitangebot. Entdecken Sie die Altstadt mit ihren römischen Bauwerken, mittelalterlichen Stadtmauern und modernen Sehenswürdigkeiten. Lassen Sie den Tag bei einem Glas Pager Weißwein und dem romantischen Sonnenuntergang hinter der Insel Ugljan ausklingen. Genießen Sie die dalmatinische Küche in den Konobas und tauchen Sie ein in das einzigartige Nachtleben von Zadar. Diese exzellente Lage bietet Ihnen den perfekten Ausgangspunkt für einen unvergesslichen Urlaub an der Riviera.
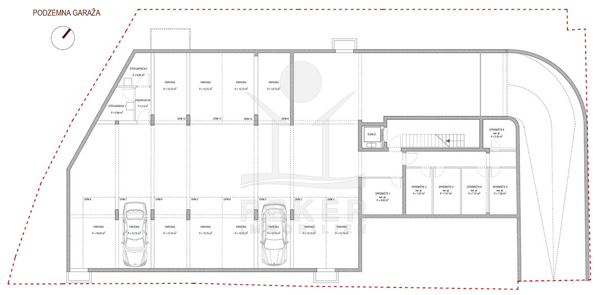
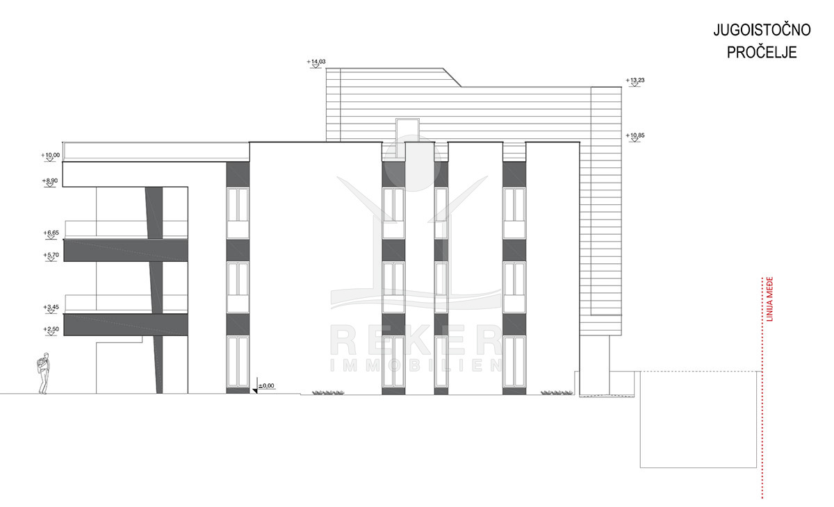
Das Apartment im 1. Stock ist ein Teil eines Wohnkomplexes mit insgesamt 6 Wohnungen auf zwei Etagen. Die Wohnung erstreckt sich über 122 m² und bietet luxuriöse Ausstattungsmerkmale, darunter einen Aufzug und eine Klimaanlage. Der moderne Baustil und die hochwertigen Materialien machen dieses Bauprojekt zu einem zeitgemäßen und eleganten Wohnraum in der Stadt. Mit 2 Stellplätzen in der Tiefgarage haben Sie immer eine bequeme Möglichkeit, Ihr Fahrzeug sicher abzustellen.
Offenes Konzept mit großzügiger Wohnfläche
Die Wohnung verfügt über einen einladenden Eingangsbereich und Flur, der zu einem offenen Konzept führt. Das Wohn-, Ess- und Küchenzimmer erstreckt sich über großzügige 38 m² und bietet Zugang zu einem beeindruckenden Balkon/Loggia mit 31 m² Fläche. Die Wohnung umfasst zwei komfortable Schlafzimmer sowie zwei Badezimmer für höchsten Wohnkomfort. Ein zusätzliches WC sorgt für zusätzliche Bequemlichkeit, während ein Abstellraum im Untergeschoss Platz für Stauraum bietet.
Die Etagenwohnung erwartet Sie in Zadar!
- Ort: Zadar (Stadt)
- Einwohnerzahl: 168.031 (2019)
- Region: Dalmatien-Zadar
- Autobahnentfernung: ca. 21 km *
- Nächster Flughafen: Zadar / ca. 14 km *
Immobiliendaten
- Objektart: Wohnung
- Objekttyp: Etagenwohnung
- Baujahr: 2025
- ID: 6986
- Kaufpreis: 1.003.200 €
- Provision: 3,75 % inkl. MwSt. in Kroatien
- Wohnfläche: 122 m²
- Anzahl Zimmer: 3
- Anzahl Schlafzimmer: 2
- Anzahl Badezimmer: 2
- Land: Kroatien
- Region: Dalmatien-Zadar
- Ort: Zadar
- Lage: Stadtteil
- Meerentfernung: 20 m
- Ortsmitte: 3 km
Haben Sie Interesse die schöne Etagenwohnung zu besitzen?
Nehmen Sie gerne Kontakt mit mir auf!
Ich bin Heiner Reker, Gründer und
Geschäftsführer von Reker Immobilien d.o.o. Ich begleite Sie bei Ihrer aufregenden Reise in die Welt der Immobilien in Kroatien.
Gerne organisiere ich persönlich mit meinen qualifizierten Partnern jeden Schritt bei Ihrem rechtssicheren und stressfreien Immobilienkauf in Kroatien.
Füllen Sie das Formular aus und ich melde mich gerne zum gewünschten Zeitpunkt bei Ihnen.
Bis bald
Exposé mitnehmen?
Laden Sie unser PDF-Exposé herunter und Sie haben die wichtigste Objektdaten & Bilder immer zur Hand
Exposé mitnehmen?
Nehmen Sie Kontakt mit uns auf, ein Exposé schicken wir gerne per E-Mail
Ihre Traum-Immobilie noch nicht gefunden?
Besuchen Sie diese Seiten!
















