WOHNEN IM 1. STOCK MIT WESTBALKON, 17 M² AUSSENFLÄCHE UND MEERBLICK
Lage & Außenbereich
Nur etwa 50 Meter vom Meer entfernt – zur Promenade sind es sogar nur rund 20. Die Umgebung: entspannt, gepflegt, grün. Moderne Häuser, viel Platz zwischen den Grundstücken. Wer das Meer sucht und Privatsphäre schätzt, wird sich hier schnell wohlfühlen.
Das Gebäude? Hochwertig gebaut, mit einem klaren Fokus auf Design, Qualität und Ästhetik. Drei Etagen, zehn Wohnungen – jede für sich besonders. Im Erdgeschoss haben die Wohnungen private Gartenanteile. Die Einheiten im zweiten Obergeschoss verfügen über große Dachterrassen mit weitem Meerblick. Großzügige Grundrisse, große Fensterflächen, viel Tageslicht. Der Bau schreitet zügig voran, mit einer geplanten Fertigstellung im Mai 2026. Ein Aufzug verbindet alle Etagen. Jede Wohnung kommt mit zwei Stellplätzen – bei manchen auch inklusive Garage.
Innenraum & Interieur
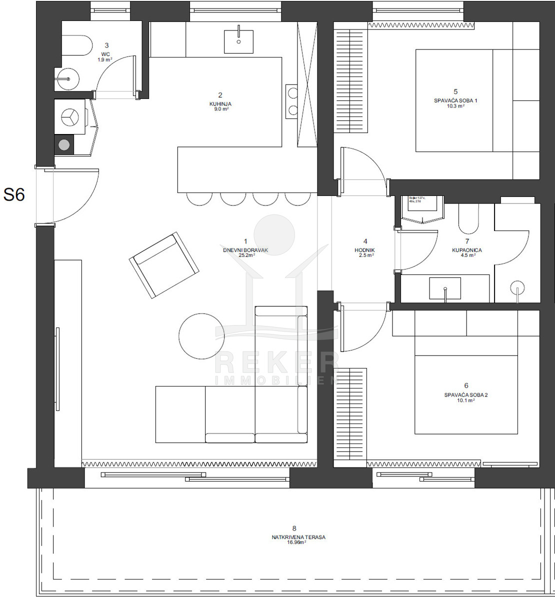
Der zentrale Wohnraum mit rund 25 m² ist offen und einladend. Große Fenster sorgen für Licht – die Übergänge zur Küche sind fließend. 9 m² Platz für kulinarische Ideen. Dazu: ein separates WC für Gäste, 2,5 m² Flur als Verbindung zu den privaten Bereichen. Beide Schlafzimmer (jeweils über 10 m²) liegen nebeneinander, ruhig und kompakt. Das Badezimmer ist mit 4,5 m² funktional und nah an beiden Zimmern. Alles ist bereit für den Alltag – ob als Ferienwohnung oder dauerhaftes Zuhause.
Direkt vor dem Wohnzimmer: der überdachte Balkon mit knapp 17 m². Viel Platz zum Draußensein – ob Frühstück mit Meerblick oder entspannter Abend mit Sonne aus Westen. Und: Der Blick aufs Meer ist inklusive. Die Wohnung ist klimatisiert, mit elektrischen Rollläden, Video-Türsprechanlage und Fußbodenheizung ausgestattet.
Die Etagenwohnung erwartet Sie in Zadar!
- Ort: Zadar (Stadt)
- Einwohnerzahl: 168.031 (2019)
- Region: Dalmatien-Zadar
- Autobahnentfernung: ca. 21 km *
- Nächster Flughafen: Zadar / ca. 14 km *
Immobiliendaten
- Objektart: Wohnung
- Objekttyp: Etagenwohnung
- Baujahr: 2026
- ID: 9129
- Kaufpreis: 405.000 €
- Provision: 3,75 % inkl. MwSt. in Kroatien
- Wohnfläche: 80 m²
- Anzahl Zimmer: 3
- Anzahl Schlafzimmer: 2
- Anzahl Badezimmer: 1
- Land: Kroatien
- Region: Dalmatien-Zadar
- Ort: Zadar
- Lage: Ortslage
- Meerentfernung: 50 m
Haben Sie Interesse die schöne Etagenwohnung zu besitzen?
Nehmen Sie gerne Kontakt mit mir auf!
Ich bin Heiner Reker, Gründer und
Geschäftsführer von Reker Immobilien d.o.o. Ich begleite Sie bei Ihrer aufregenden Reise in die Welt der Immobilien in Kroatien.
Gerne organisiere ich persönlich mit meinen qualifizierten Partnern jeden Schritt bei Ihrem rechtssicheren und stressfreien Immobilienkauf in Kroatien.
Füllen Sie das Formular aus und ich melde mich gerne zum gewünschten Zeitpunkt bei Ihnen.
Bis bald
Exposé mitnehmen?
Laden Sie unser PDF-Exposé herunter und Sie haben die wichtigste Objektdaten & Bilder immer zur Hand
Exposé mitnehmen?
Nehmen Sie Kontakt mit uns auf, ein Exposé schicken wir gerne per E-Mail
Ihre Traum-Immobilie noch nicht gefunden?
Besuchen Sie diese Seiten!











