ZWEI EN-SUITE-SCHLAFZIMMER, 66 M² BALKON UND NUR 50 M ZUM STRAND
Lage & Außenbereich
Nur etwa 50 Meter vom Meer entfernt – zur Promenade sind es sogar nur rund 20. Die Umgebung: entspannt, gepflegt, grün. Moderne Häuser, viel Platz zwischen den Grundstücken. Wer das Meer sucht und Privatsphäre schätzt, wird sich hier schnell wohlfühlen.
Das Gebäude? Hochwertig gebaut, mit einem klaren Fokus auf Design, Qualität und Ästhetik. Drei Etagen, zehn Wohnungen – jede für sich besonders. Im Erdgeschoss haben die Wohnungen private Gartenanteile. Die Einheiten im zweiten Obergeschoss verfügen über große Dachterrassen mit weitem Meerblick. Großzügige Grundrisse, große Fensterflächen, viel Tageslicht. Der Bau schreitet zügig voran, mit einer geplanten Fertigstellung im Mai 2026. Ein Aufzug verbindet alle Etagen. Jede Wohnung kommt mit zwei Stellplätzen – bei manchen auch inklusive Garage.
Innenraum & Interieur
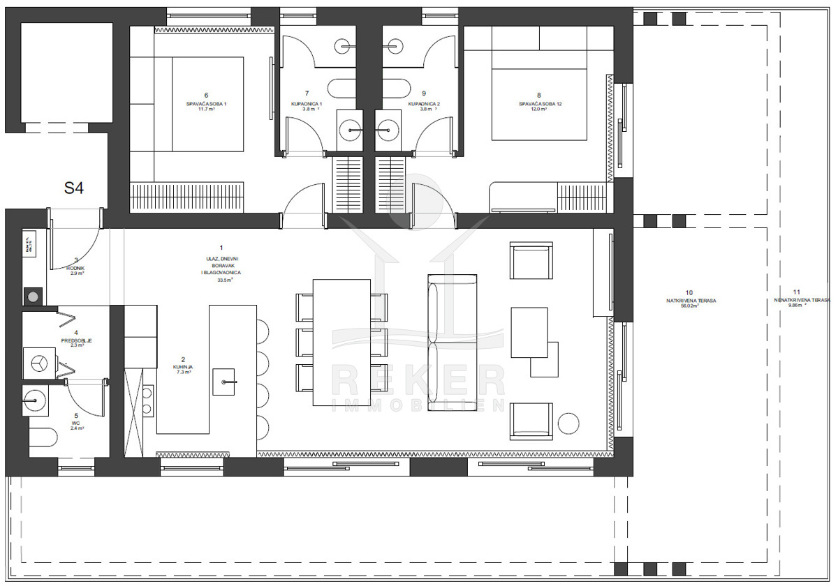
A4 bringt Raumgefühl und Rückzugsmöglichkeiten perfekt zusammen – und das alles auf nur einer Ebene. Das Herzstück ist der weitläufige Wohnbereich mit über 33 m², dazu eine offene Küche, ideal für gesellige Abende. Von hier geht’s direkt auf den riesigen Balkon – über 65 m² Fläche, zum Teil überdacht. Frühstück, Loungemöbel, Sonnenplatz? Hier passt alles nebeneinander.
Die beiden Schlafzimmer liegen auf der ruhigen Seite und bieten ein echtes Highlight: Jedes verfügt über ein eigenes Bad direkt im Zimmer. Zusätzlich gibt es ein separates Gäste-WC – perfekt, wenn Besuch kommt. Alles Weitere wie gewohnt: elektrische Rollläden, Fußbodenheizung, Klima, einbruchsichere Tür, Video-Sprechanlage, zwei Stellplätze und ein Abstellraum im Keller.
Die Etagenwohnung erwartet Sie in Zadar!
- Ort: Zadar (Stadt)
- Einwohnerzahl: 168.031 (2019)
- Region: Dalmatien-Zadar
- Autobahnentfernung: ca. 21 km *
- Nächster Flughafen: Zadar / ca. 14 km *
Immobiliendaten
- Objektart: Wohnung
- Objekttyp: Etagenwohnung
- Baujahr: 2026
- ID: 9127
- Kaufpreis: 607.500 €
- Provision: 3,75 % inkl. MwSt. in Kroatien
- Wohnfläche: 145 m²
- Anzahl Zimmer: 3
- Anzahl Schlafzimmer: 2
- Anzahl Badezimmer: 2
- Land: Kroatien
- Region: Dalmatien-Zadar
- Ort: Zadar
- Lage: Ortslage
- Meerentfernung: 50 m
Haben Sie Interesse die schöne Etagenwohnung zu besitzen?
Nehmen Sie gerne Kontakt mit mir auf!
Ich bin Heiner Reker, Gründer und
Geschäftsführer von Reker Immobilien d.o.o. Ich begleite Sie bei Ihrer aufregenden Reise in die Welt der Immobilien in Kroatien.
Gerne organisiere ich persönlich mit meinen qualifizierten Partnern jeden Schritt bei Ihrem rechtssicheren und stressfreien Immobilienkauf in Kroatien.
Füllen Sie das Formular aus und ich melde mich gerne zum gewünschten Zeitpunkt bei Ihnen.
Bis bald
Exposé mitnehmen?
Laden Sie unser PDF-Exposé herunter und Sie haben die wichtigste Objektdaten & Bilder immer zur Hand
Exposé mitnehmen?
Nehmen Sie Kontakt mit uns auf, ein Exposé schicken wir gerne per E-Mail
Ihre Traum-Immobilie noch nicht gefunden?
Besuchen Sie diese Seiten!











