EXKLUSIVE NEUBAUWOHNUNG IM 2. STOCK MIT MEERBLICK & AUFZUG IN VODICE

Neubauwohnung in ruhiger Lage mit idealer Anbindung
Der Neubau befindet sich in einem ruhigen Stadtteil von Vodice und ist der ideale Ausgangspunkt für Ihr Leben an der malerischen Adriaküste. Mit nur 800 Metern zu den sanften Wellen des Meeres erreichen Sie die wunderschöne Uferpromenade und den familienfreundlichen Strand Plava Plaza in wenigen Minuten, perfekt für entspannte Tage am Wasser. Das pulsierende Zentrum von Vodice liegt nur 900 Meter entfernt und bietet eine Vielzahl an Geschäften, Cafés und Restaurants, die köstliche dalmatinische Spezialitäten servieren. In der Nachbarschaft finden Sie zudem praktische Einrichtungen wie Supermärkte, Banken, Schulen und ein Kino, die Ihren Alltag erheblich erleichtern. Sportlich Aktive kommen ebenfalls auf ihre Kosten: Die über 4 Kilometer langen Küstenwege laden zum Joggen und Radfahren ein und bieten Möglichkeiten, die versteckten Buchten rund um Vodice zu erkunden. Für Naturliebhaber sind der beeindruckende Nationalpark Krka, bekannt für seine majestätischen Wasserfälle, sowie die Nationalparks Kornati und die idyllischen umliegenden Inseln bequem erreichbar. Diese Lage vereint Ruhe und Attraktivität und ist somit perfekt für einen harmonischen Lebensstil an der Adriaküste. Ob Entspannung oder Abenteuer – hier finden Sie alles, was Ihr Herz begehrt!
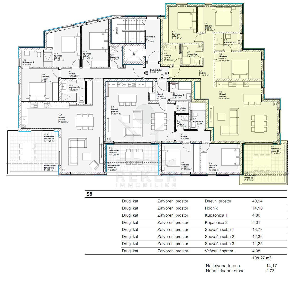
Das Apartment im 2. Stock ist Teil eines exklusiven Projekts mit insgesamt 10 modernen Wohneinheiten, die sich über 2 Etagen erstrecken. Das Gebäude besticht durch eine hochwertige Bauweise, die mit viel Liebe zum Detail umgesetzt wurde. Eine Styroporfassade und elegante PVC-Zimmereien in Anthrazit sorgen für ein zeitgemäßes Ambiente. Jalousien mit Elektromotoren, edle Steinbodenbeläge und moderne Badezimmerarmaturen gewährleisten höchsten Wohnkomfort. Zusätzlich bieten Fußbodenheizung und eine Inverter-Klimaanlage in allen Räumen ein angenehmes Raumklima, während der Aufzug den Zugang zur Wohnung erleichtert. Zu der Einheit gehört 1 praktischer Abstellraum im Keller sowie 1 Parkplatz, was das Leben hier besonders komfortabel macht. Zudem besteht die Möglichkeit, einen zusätzlichen Parkplatz zum Preis von 7.500 € zu erwerben, was Ihre Mobilität weiter erhöht. Der Baubeginn ist für das Frühjahr 2025 geplant, und dies ist eine hervorragende Gelegenheit, sich in einem modernen, komfortablen Wohnumfeld niederzulassen.
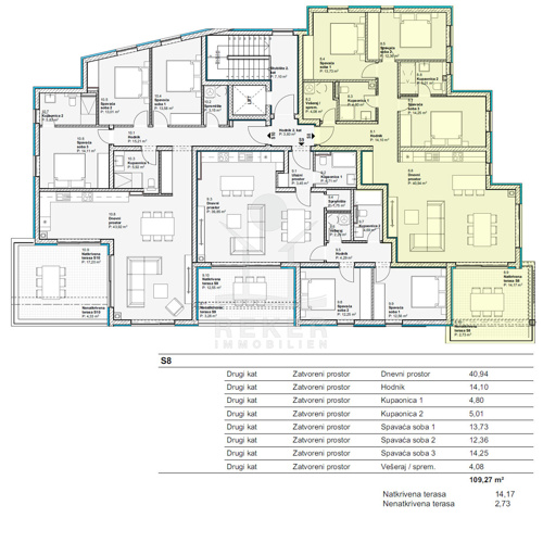
Die großartige Immobilie besticht durch ihren großzügigen Wohnraum mit einer Gesamtfläche von 118 m². Der einladende Eingangsbereich führt Sie in einen hellen Flur, der Zugang zu einer praktischen Waschküche bietet. Der offene Wohn-, Ess- und Küchenbereich schafft ein harmonisches Miteinander und ist der perfekte Ort für gesellige Abende mit Familie und Freunden. Die Wohnung verfügt über 3 Schlafzimme und 2 Badezimmer, darunter 1 Hauptschlafzimmer mit eigenem Badezimmer für zusätzlichen Komfort. Ein besonderes Highlight ist der überdachte Balkon mit einer Fläche von 17 m², der zu entspannten Stunden im Freien einlädt.





Das Adriatische Meer
- Meerentfernung: 800 m
- Aussicht: Meerblick
Die Immobilie
- Etagenwohnung in Vodice, Dalmatien-Sibenik
- Baujahr: 2026
- Zustand: Erstbezug
- Wohnfläche: 118 m²
Ausstattung
- Anzahl Zimmer: 4
- Anzahl Schlafzimmer: 3
- Anzahl Badezimmer: 2
- Heizung: Fußbodenheizung, Klimaanlage
- Personenaufzug
- Wasch-, Trockenraum
- Unterkellert
Die Etagenwohnung erwartet Sie in Vodice!
- Ort: Vodice (Stadt)
- Einwohnerzahl: 8.875 (2011)
- Region: Dalmatien-Sibenik
- Autobahnentfernung: ca. 16 km *
- Nächster Flughafen: Zadar / ca. 62 km *

Immobiliendaten
- Objektart: Wohnung
- Objekttyp: Etagenwohnung
- Baujahr: 2026
- ID: 7799
- Kaufpreis: 494.424 €
- Provision: 3,75 % inkl. MwSt. in Kroatien
- Wohnfläche: 118 m²
- Anzahl Zimmer: 4
- Anzahl Schlafzimmer: 3
- Anzahl Badezimmer: 2
- Land: Kroatien
- Region: Dalmatien-Sibenik
- Ort: Vodice
- Lage: Stadtrand
- Meerentfernung: 800 m
- Ortsmitte: 1 km
Haben Sie Interesse die schöne Etagenwohnung zu besitzen?
Nehmen Sie gerne Kontakt mit mir auf!
Ich bin Heiner Reker, Gründer und
Geschäftsführer von Reker Immobilien d.o.o. Ich begleite Sie bei Ihrer aufregenden Reise in die Welt der Immobilien in Kroatien.
Gerne organisiere ich persönlich mit meinen qualifizierten Partnern jeden Schritt bei Ihrem rechtssicheren und stressfreien Immobilienkauf in Kroatien.
Füllen Sie das Formular aus und ich melde mich gerne zum gewünschten Zeitpunkt bei Ihnen.
Bis bald

Exposé mitnehmen?
Laden Sie unser PDF-Exposé herunter und Sie haben die wichtigste Objektdaten & Bilder immer zur Hand
Exposé mitnehmen?
Nehmen Sie Kontakt mit uns auf, ein Exposé schicken wir gerne per E-Mail
Ihre Traum-Immobilie noch nicht gefunden?
Besuchen Sie diese Seiten!