WOHNUNG IM 2. OG MIT MEERBLICK, SÜDBALKON UND VIEL LICHT

Lage & Außenbereich
Vodice, ein ruhiges Wohnviertel, rund 700 Meter vom Zentrum entfernt. Auch zum Strand sind es nur wenige Gehminuten. Die Umgebung ist grün, locker bebaut und angenehm still. Das Gebäude wirkt modern, klar, aufgeräumt. Drei Etagen, sechs Wohnungen. Pro Stockwerk zwei Einheiten. Die Fertigstellung ist für Sommer 2026 geplant. Dann ziehen Sie schlüsselfertig ein. Vor dem Haus: ein Parkplatz pro Wohnung.
Innenraum & Interieur
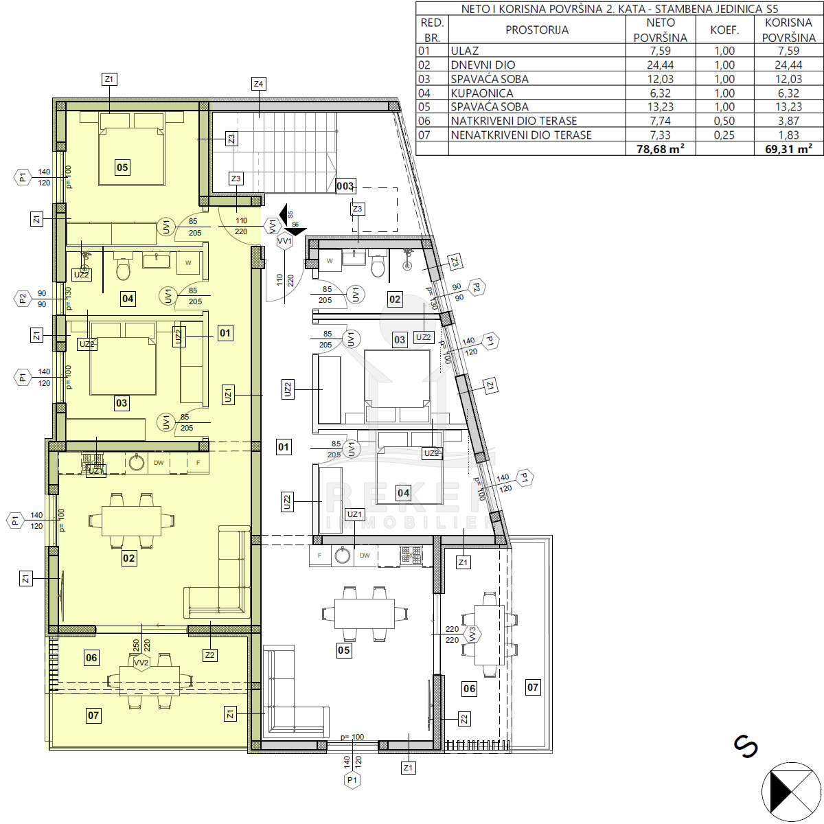
Die Wohnung S5 liegt im zweiten Stock. Zwei Schlafzimmer, ein Bad, ein großzügiger Wohn-Essbereich mit Zugang zum Balkon. Und der ist besonders: ein Teil überdacht, der andere offen – insgesamt über 15 m² mit Blick aufs Meer. Die Fensterfront Richtung Süden sorgt für viel Licht. Der Schnitt ist funktional, alles ist klar voneinander getrennt. Ideal für zwei, die nicht nur drinnen, sondern auch draußen wohnen möchten. Frühstück im Schatten, Sonne am Nachmittag, Ruhe am Abend – alles auf dem eigenen Balkon.
Die Etagenwohnung erwartet Sie in Vodice!
- Ort: Vodice (Stadt)
- Einwohnerzahl: 8.875 (2011)
- Region: Dalmatien-Sibenik
- Autobahnentfernung: ca. 16 km *
- Nächster Flughafen: Zadar / ca. 62 km *

Immobiliendaten
- Objektart: Wohnung
- Objekttyp: Etagenwohnung
- Baujahr: 2026
- ID: 9171
- Kaufpreis: 238.623 €
- Provision: 3,75 % inkl. MwSt. in Kroatien
- Wohnfläche: 78 m²
- Anzahl Zimmer: 3
- Anzahl Schlafzimmer: 2
- Anzahl Badezimmer: 1
- Land: Kroatien
- Region: Dalmatien-Sibenik
- Ort: Vodice
- Lage: Stadtteil
- Meerentfernung: 700 m
Haben Sie Interesse die schöne Etagenwohnung zu besitzen?
Nehmen Sie gerne Kontakt mit mir auf!
Ich bin Heiner Reker, Gründer und
Geschäftsführer von Reker Immobilien d.o.o. Ich begleite Sie bei Ihrer aufregenden Reise in die Welt der Immobilien in Kroatien.
Gerne organisiere ich persönlich mit meinen qualifizierten Partnern jeden Schritt bei Ihrem rechtssicheren und stressfreien Immobilienkauf in Kroatien.
Füllen Sie das Formular aus und ich melde mich gerne zum gewünschten Zeitpunkt bei Ihnen.
Bis bald

Exposé mitnehmen?
Laden Sie unser PDF-Exposé herunter und Sie haben die wichtigste Objektdaten & Bilder immer zur Hand
Exposé mitnehmen?
Nehmen Sie Kontakt mit uns auf, ein Exposé schicken wir gerne per E-Mail
Ihre Traum-Immobilie noch nicht gefunden?
Besuchen Sie diese Seiten!