BALKONWOHNUNG IM 1. STOCK MIT MEERBLICK UND SÜD-AUSRICHTUNG
Lage & Außenbereich
Vodice, ein ruhiges Wohnviertel, rund 700 Meter vom Zentrum entfernt. Auch zum Strand sind es nur wenige Gehminuten. Die Umgebung ist grün, locker bebaut und angenehm still. Das Gebäude wirkt modern, klar, aufgeräumt. Drei Etagen, sechs Wohnungen. Pro Stockwerk zwei Einheiten. Die Fertigstellung ist für Sommer 2026 geplant. Dann ziehen Sie schlüsselfertig ein. Vor dem Haus: ein Parkplatz pro Wohnung.
Innenraum & Interieur
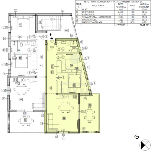
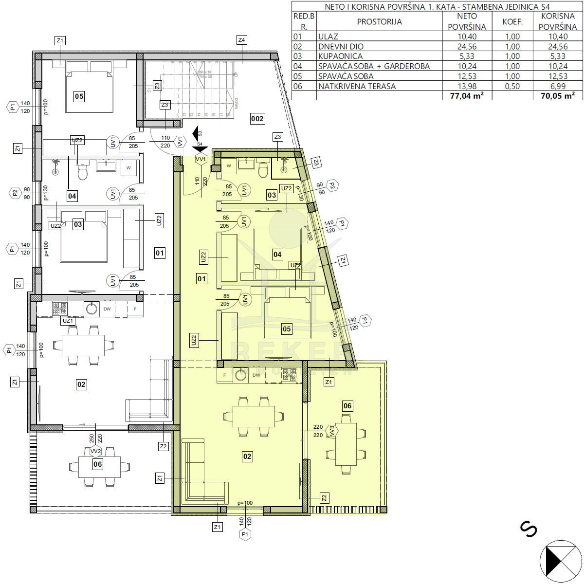
Sonnenbalkon, Meerblick, Garderobenzimmer – hier stimmt die Mischung. Die Wohnung liegt im ersten Stock und öffnet sich nach Süden. Vom Wohnzimmer führt die Glasfront direkt auf den Balkon. Fast 14 m² überdacht, mit viel Platz für Tisch, Lounge oder Pflanzen. Und ja: Meerblick gibt’s auch. Innen überzeugt der Grundriss durch Klarheit und Komfort. Zwei Schlafzimmer, eines davon mit extra Ankleidebereich – das hat nicht jede Wohnung in dieser Größe. Die Küche ist offen, der Wohnraum hell und großzügig, Klimaanlage ist drin.
Die Etagenwohnung erwartet Sie in Vodice!
- Ort: Vodice (Stadt)
- Einwohnerzahl: 8.875 (2011)
- Region: Dalmatien-Sibenik
- Autobahnentfernung: ca. 16 km *
- Nächster Flughafen: Zadar / ca. 62 km *
Immobiliendaten
- Objektart: Wohnung
- Objekttyp: Etagenwohnung
- Baujahr: 2026
- ID: 9170
- Kaufpreis: 241.065 €
- Provision: 3,75 % inkl. MwSt. in Kroatien
- Wohnfläche: 77 m²
- Anzahl Zimmer: 3
- Anzahl Schlafzimmer: 2
- Anzahl Badezimmer: 1
- Land: Kroatien
- Region: Dalmatien-Sibenik
- Ort: Vodice
- Lage: Stadtteil
- Meerentfernung: 700 m
Haben Sie Interesse die schöne Etagenwohnung zu besitzen?
Nehmen Sie gerne Kontakt mit mir auf!
Ich bin Heiner Reker, Gründer und
Geschäftsführer von Reker Immobilien d.o.o. Ich begleite Sie bei Ihrer aufregenden Reise in die Welt der Immobilien in Kroatien.
Gerne organisiere ich persönlich mit meinen qualifizierten Partnern jeden Schritt bei Ihrem rechtssicheren und stressfreien Immobilienkauf in Kroatien.
Füllen Sie das Formular aus und ich melde mich gerne zum gewünschten Zeitpunkt bei Ihnen.
Bis bald
Exposé mitnehmen?
Laden Sie unser PDF-Exposé herunter und Sie haben die wichtigste Objektdaten & Bilder immer zur Hand
Exposé mitnehmen?
Nehmen Sie Kontakt mit uns auf, ein Exposé schicken wir gerne per E-Mail
Ihre Traum-Immobilie noch nicht gefunden?
Besuchen Sie diese Seiten!








