ZWEI SCHLAFZIMMER, GROSSER BALKON UND MEERBLICK: WOHNUNG IM 1. STOCK

Lage & Außenbereich
Vodice liegt an der dalmatinischen Küste – beliebt, gewachsen und dennoch ruhig. Genau dort entsteht dieses neue Wohnhaus. Das Meer ist in Sichtweite. Der nächste Strand? Frisch gestaltet und zu Fuß erreichbar. In der Nachbarschaft: neue Wohnhäuser, gepflegte Straßen, viele Einheimische, aber auch Ruhe für Zweitwohnsitz oder Rückzug. Das Gebäude hat drei Etagen und wirkt klar, modern und hochwertig. Sechs Wohnungen teilen sich den Neubau – jede mit großzügigen Außenbereichen. Die Fassade ist gedämmt, die Bauweise folgt modernen Standards. Vor dem Haus: gepflasterte Stellplätze, rundherum gepflegte Grünfläche mit niedriger Begrenzungsmauer. Ruhige Atmosphäre. Solide Privatsphäre.
Innenraum & Interieur
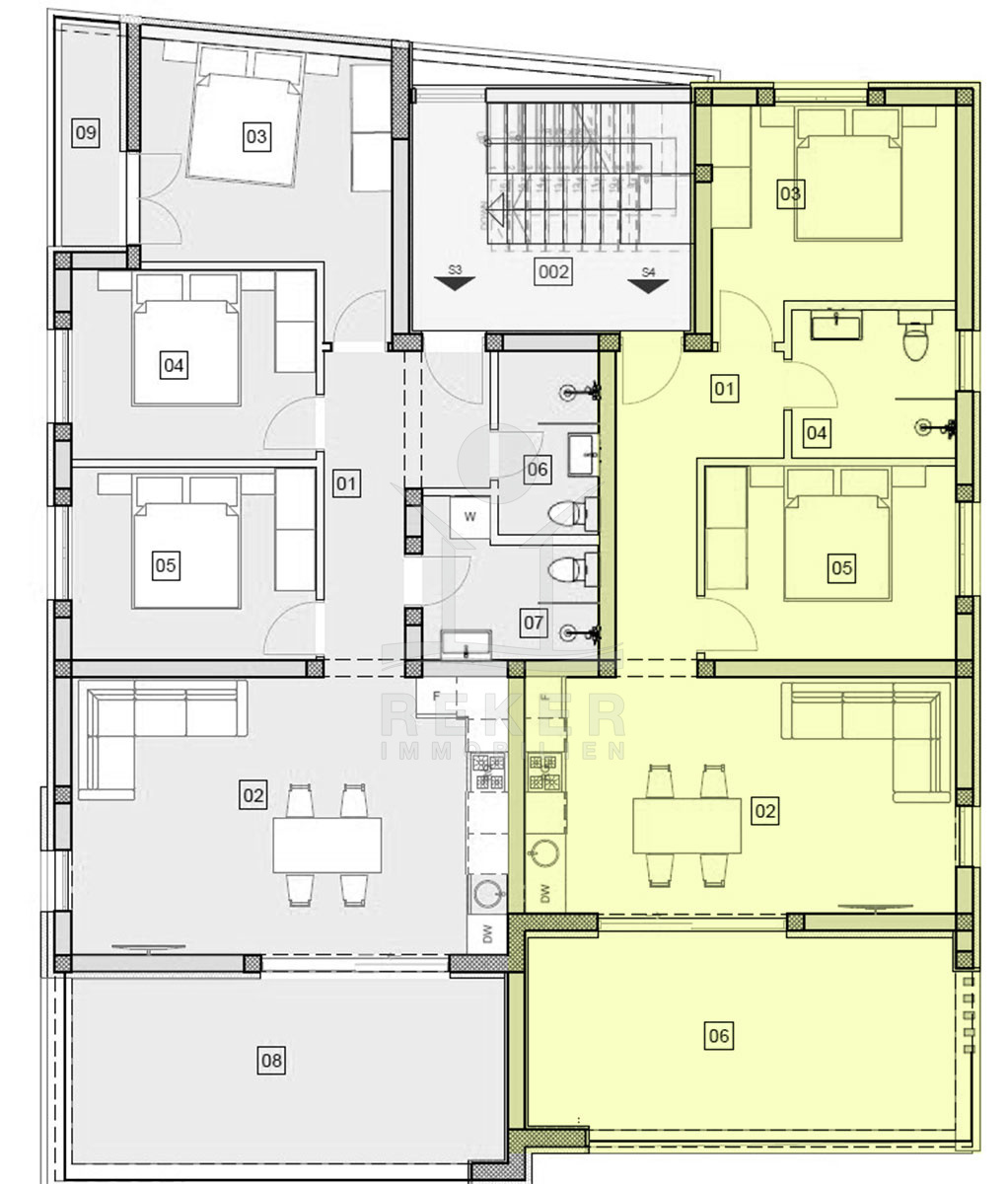
Kompakt, clever geschnitten und mit richtig guter Aussicht: Diese Wohnung im ersten Stock bietet zwei Schlafzimmer, ein Badezimmer und einen offenen Wohnbereich mit Küche und Essplatz. Alles auf knapp 70 m² – hell, freundlich und gut aufgeteilt. Die Ausstattung ist hochwertig: große Fliesen im Wohnraum, Vinyl mit Holzoptik in den Schlafzimmern. Dazu Fußbodenheizung, Klimaanlagen in allen Räumen und smarte Steuerung per WLAN. Die Fenster sind modern, die Rollläden elektrisch, die Eingangstür sicher und massiv.
Das Highlight: die überdachte Loggia mit 16,70 m² – groß genug für Tisch, Stühle, Pflanzen oder Liegestühle. Und mit direktem Meerblick. Ein Platz, den Sie das ganze Jahr über nutzen können – egal ob Sonne oder Wind.
Die Etagenwohnung erwartet Sie in Vodice!
- Ort: Vodice (Stadt)
- Einwohnerzahl: 8.875 (2011)
- Region: Dalmatien-Sibenik
- Autobahnentfernung: ca. 16 km *
- Nächster Flughafen: Zadar / ca. 62 km *

Immobiliendaten
- Objektart: Wohnung
- Objekttyp: Etagenwohnung
- Baujahr: 2025
- ID: 8978
- Kaufpreis: 280.000 €
- Provision: 3,75 % inkl. MwSt. in Kroatien
- Wohnfläche: 69 m²
- Anzahl Zimmer: 3
- Anzahl Schlafzimmer: 2
- Anzahl Badezimmer: 1
- Land: Kroatien
- Region: Dalmatien-Sibenik
- Ort: Vodice
- Lage: Stadtteil
- Meerentfernung: 300 m
Haben Sie Interesse die schöne Etagenwohnung zu besitzen?
Nehmen Sie gerne Kontakt mit mir auf!
Ich bin Heiner Reker, Gründer und
Geschäftsführer von Reker Immobilien d.o.o. Ich begleite Sie bei Ihrer aufregenden Reise in die Welt der Immobilien in Kroatien.
Gerne organisiere ich persönlich mit meinen qualifizierten Partnern jeden Schritt bei Ihrem rechtssicheren und stressfreien Immobilienkauf in Kroatien.
Füllen Sie das Formular aus und ich melde mich gerne zum gewünschten Zeitpunkt bei Ihnen.
Bis bald

Exposé mitnehmen?
Laden Sie unser PDF-Exposé herunter und Sie haben die wichtigste Objektdaten & Bilder immer zur Hand
Exposé mitnehmen?
Nehmen Sie Kontakt mit uns auf, ein Exposé schicken wir gerne per E-Mail
Ihre Traum-Immobilie noch nicht gefunden?
Besuchen Sie diese Seiten!