PENTHOUSE DER EXTRAKLASSE ZUM ERSTBEZUG MIT GRANDIOSER DACHTERRASSE IN VODICE
Neubau-Penthouse in ruhiger Stadtrandlage von Vodice
Das Penthouse liegt am Stadtrand von Vodice und bietet Ihnen die perfekten Voraussetzungen für ein entspanntes Leben in einer ruhigen und friedlichen Umgebung. Die unmittelbare Nähe zum Meer und den malerischen Stränden ermöglicht es Ihnen, die Schönheit der Adriaküste jederzeit in vollen Zügen zu genießen. Sie können täglich den sanften Klang der Wellen und die frische Meeresbrise erleben. Dennoch erreichen Sie in nur wenigen Minuten das lebendige Zentrum von Vodice, wo zahlreiche Restaurants, Cafés und Geschäfte auf Sie warten.
Die Penthousewohnung ist Teil eines modernen Gebäudes mit insgesamt 4 Wohnungen auf 2 Etagen, dessen Baubeginn für Februar 2025 geplant ist. Die Wohnung beeindruckt mit hochmodernen Alu- und PVC-Fenstern, Fußbodenheizung in den Badezimmern und klimatisierten Räumen. Hochwertige Keramik und Sanitäranlagen sorgen für ein stilvolles Ambiente. Zwei Außenparkplätze stehen ebenfalls zur Verfügung.
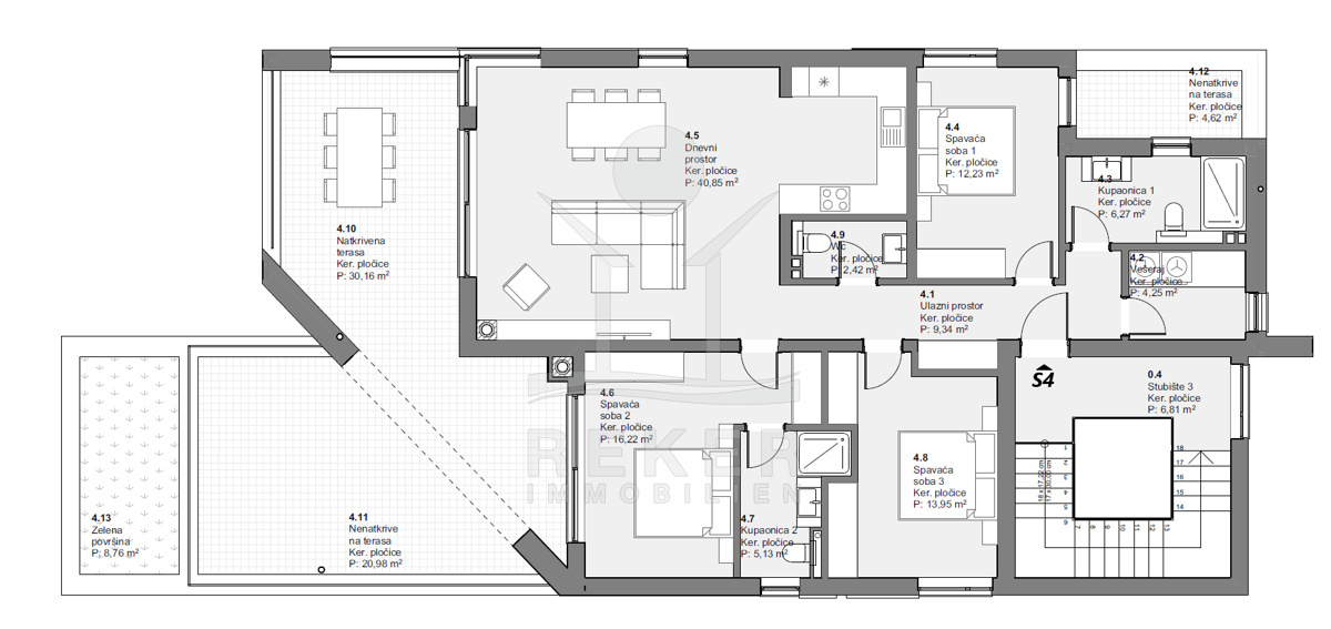
Der große Außenbereich zur Dachterrasse mit 56 m² ist der perfekte Ort, um sich zu entspannen und die Aussicht zu genießen.
Diese beeindruckende Penthousewohnung erstreckt sich über großzügige 173 m² und bietet ein offenes Wohnkonzept, das Wohn-, Ess- und Küchenbereich harmonisch miteinander verbindet. Mit 3 Schlafzimmern, von denen eines über einen eigenen Balkon verfügt, und 2 Bädern, darunter ein privates Bad im Hauptschlafzimmer, genießen Sie hier sowohl Komfort als auch Privatsphäre für die ganze Familie. Ein zusätzliches Gäste-WC sorgt für noch mehr Bequemlichkeit.
Das Penthouse erwartet Sie in Vodice!
- Ort: Vodice (Stadt)
- Einwohnerzahl: 8.875 (2011)
- Region: Dalmatien-Sibenik
- Autobahnentfernung: ca. 16 km *
- Nächster Flughafen: Zadar / ca. 62 km *
Immobiliendaten
- Objektart: Wohnung
- Objekttyp: Penthouse
- Baujahr: 2025
- ID: 8239
- Kaufpreis: 511.889 €
- Provision: 3,75 % inkl. MwSt. in Kroatien
- Wohnfläche: 173 m²
- Anzahl Zimmer: 4
- Anzahl Schlafzimmer: 3
- Anzahl Badezimmer: 2
- Land: Kroatien
- Region: Dalmatien-Sibenik
- Ort: Vodice
- Lage: Stadtrand
- Meerentfernung: 900 m
Haben Sie Interesse das schöne Penthouse zu besitzen?
Nehmen Sie gerne Kontakt mit mir auf!
Ich bin Heiner Reker, Gründer und
Geschäftsführer von Reker Immobilien d.o.o. Ich begleite Sie bei Ihrer aufregenden Reise in die Welt der Immobilien in Kroatien.
Gerne organisiere ich persönlich mit meinen qualifizierten Partnern jeden Schritt bei Ihrem rechtssicheren und stressfreien Immobilienkauf in Kroatien.
Füllen Sie das Formular aus und ich melde mich gerne zum gewünschten Zeitpunkt bei Ihnen.
Bis bald
Exposé mitnehmen?
Laden Sie unser PDF-Exposé herunter und Sie haben die wichtigste Objektdaten & Bilder immer zur Hand
Exposé mitnehmen?
Nehmen Sie Kontakt mit uns auf, ein Exposé schicken wir gerne per E-Mail
Ihre Traum-Immobilie noch nicht gefunden?
Besuchen Sie diese Seiten!







