TRAUMHAFTE ETAGENWOHNUNG IM NEUBAU MIT FUSSBODENHEIZUNG & MEERBLICK IN VODICE

Ruhige Lage mit guter Anbindung
Der Neubau liegt ruhig in einem angenehmen Stadtteil von Vodice, nur etwa 1500 m vom Meer und dem Stadtzentrum entfernt. In der Nähe finden Sie einen Supermarkt sowie eine ausgezeichnete Verkehrsanbindung. Diese ruhige Gegend ist noch nicht stark besiedelt und bietet eine entspannte, einladende Atmosphäre.
Die beeindruckende Etagenwohnung befindet sich in einem erstklassigen Neubau mit 8 modernen Wohnungen auf 2 Etagen. Das zeitgemäße Design und hochwertige Materialien wie die dicke Styropor-Fassade, anthrazitfarbene PVC-Fenster sowie ALU-Hebe-Schiebetüren zeichnen das Gebäude aus. Mit elektrischen Jalousien, einbruchhemmenden und feuerfesten Eingangstüren sowie keramischen Bodenbelägen und elektrischer Fußbodenheizung ist damit für höchsten Komfort gesorgt. Die moderne Badezimmerausstattung und Klimaanlagen runden das Wohngefühl ab. Die Fertigstellung der Wohnung ist für Juni 2025 geplant. Ein Parkplatz ist ebenfalls verfügbar.
Klein, aber fein, mit traumhaftem Meerblick!
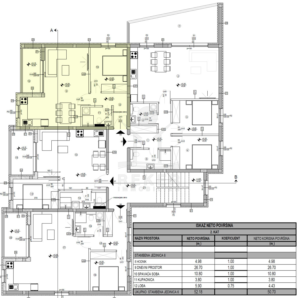
Die charmante Wohnung mit einer Wohnfläche von 52 m² bietet einen offenen Wohnbereich, der Ess- und Küchenbereich perfekt integriert. Das helle Schlafzimmer ist ideal für entspannte Nächte. Das Badezimmer bietet modernen Komfort. Aber das Highlight ist die zugängliche Loggia von 7 m², die einen atemberaubenden Blick auf das Meer bietet und ein ideales Plätzchen für Ihr Frühstück oder entspannende Abende im Freien ist.
Die Etagenwohnung erwartet Sie in Vodice!
- Ort: Vodice (Stadt)
- Einwohnerzahl: 8.875 (2011)
- Region: Dalmatien-Sibenik
- Autobahnentfernung: ca. 16 km *
- Nächster Flughafen: Zadar / ca. 62 km *

Immobiliendaten
- Objektart: Wohnung
- Objekttyp: Etagenwohnung
- Baujahr: 2025
- ID: 8258
- Kaufpreis: 160.000 €
- Provision: 3,75 % inkl. MwSt. in Kroatien
- Wohnfläche: 52 m²
- Anzahl Zimmer: 2
- Anzahl Schlafzimmer: 1
- Anzahl Badezimmer: 1
- Land: Kroatien
- Region: Dalmatien-Sibenik
- Ort: Vodice
- Lage: Stadtteil
- Meerentfernung: 2 km
Haben Sie Interesse die schöne Etagenwohnung zu besitzen?
Nehmen Sie gerne Kontakt mit mir auf!
Ich bin Heiner Reker, Gründer und
Geschäftsführer von Reker Immobilien d.o.o. Ich begleite Sie bei Ihrer aufregenden Reise in die Welt der Immobilien in Kroatien.
Gerne organisiere ich persönlich mit meinen qualifizierten Partnern jeden Schritt bei Ihrem rechtssicheren und stressfreien Immobilienkauf in Kroatien.
Füllen Sie das Formular aus und ich melde mich gerne zum gewünschten Zeitpunkt bei Ihnen.
Bis bald

Exposé mitnehmen?
Laden Sie unser PDF-Exposé herunter und Sie haben die wichtigste Objektdaten & Bilder immer zur Hand
Exposé mitnehmen?
Nehmen Sie Kontakt mit uns auf, ein Exposé schicken wir gerne per E-Mail
Ihre Traum-Immobilie noch nicht gefunden?
Besuchen Sie diese Seiten!