SONNENUNTERGÄNGE GENIESSEN: ÜBERDACHTER BALKON MIT WESTAUSRICHTUNG

Lage & Außenbereich
Lust auf Sonne, Strand und eine ruhige Lage? In Vodice entsteht ein kleines, modernes Wohnhaus mit nur fünf Wohnungen – angenehm überschaubar, ganz ohne Trubel. Der Strand ist gerade mal 800 Meter entfernt, ins lebendige Zentrum sind’s rund 1.200 Meter. Und das Ganze in einem gepflegten Wohngebiet, umgeben von Einfamilienhäusern. Zur Wohnung gehört ein eigener Parkplatz. Wer mehr Platz braucht: Im Erdgeschoss gibt’s vier Garagen zum Kauf.
Innenraum & Interieur
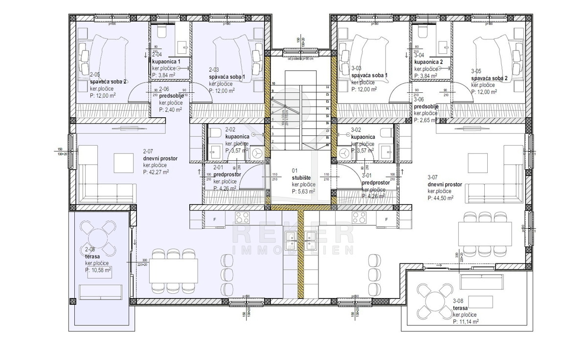
Die Wohnung liegt im ersten Stock und misst knapp 91 Quadratmeter. Sie zeigt nach Westen – perfekt für Abendsonne auf dem Balkon. Innen erwarten Sie zwei Schlafzimmer, zwei Bäder (eins davon en suite), ein heller Flur und ein großzügiges Wohnzimmer mit Platz für eine offene Küche. In der Küche ist übrigens Raum für eine Kochinsel – wenn Sie möchten.
Die Ausstattung? Durchdacht und praktisch: Sicherheitstüren, PVC-Fenster mit Moskitonetzen, elektrische Rollläden an den Balkontüren, klassische Rollläden an den übrigen Fenstern. In den Bädern und im Wohnzimmer sorgt eine elektrische Fußbodenheizung für wohlige Wärme. Eine Klimaanlage kühlt im Sommer und wärmt im Winter – ganz nach Bedarf. Die Badezimmer sind modern ausgestattet. Alles ist neu – vom Fensterrahmen bis zum Wasserhahn. Der Bau soll bis Frühjahr 2026 fertig sein.
Die Etagenwohnung erwartet Sie in Vodice!
- Ort: Vodice (Stadt)
- Einwohnerzahl: 8.875 (2011)
- Region: Dalmatien-Sibenik
- Autobahnentfernung: ca. 16 km *
- Nächster Flughafen: Zadar / ca. 62 km *

Immobiliendaten
- Objektart: Wohnung
- Objekttyp: Etagenwohnung
- Baujahr: 2026
- ID: 9232
- Kaufpreis: 229.000 €
- Provision: 3,75 % inkl. MwSt. in Kroatien
- Wohnfläche: 90 m²
- Anzahl Zimmer: 3
- Anzahl Schlafzimmer: 2
- Anzahl Badezimmer: 2
- Land: Kroatien
- Region: Dalmatien-Sibenik
- Ort: Vodice
- Lage: Stadtteil
- Meerentfernung: 800 m
Haben Sie Interesse die schöne Etagenwohnung zu besitzen?
Nehmen Sie gerne Kontakt mit mir auf!
Ich bin Heiner Reker, Gründer und
Geschäftsführer von Reker Immobilien d.o.o. Ich begleite Sie bei Ihrer aufregenden Reise in die Welt der Immobilien in Kroatien.
Gerne organisiere ich persönlich mit meinen qualifizierten Partnern jeden Schritt bei Ihrem rechtssicheren und stressfreien Immobilienkauf in Kroatien.
Füllen Sie das Formular aus und ich melde mich gerne zum gewünschten Zeitpunkt bei Ihnen.
Bis bald

Exposé mitnehmen?
Laden Sie unser PDF-Exposé herunter und Sie haben die wichtigste Objektdaten & Bilder immer zur Hand
Exposé mitnehmen?
Nehmen Sie Kontakt mit uns auf, ein Exposé schicken wir gerne per E-Mail
Ihre Traum-Immobilie noch nicht gefunden?
Besuchen Sie diese Seiten!