LUXURIÖSE ERDGESCHOSSWOHNUNG ZUM ERSTBEZUG MIT 2 SCHLAFZIMMERN & GARTEN IN TRIBUNJ
Lage & Außenbereich
Die Erdgeschosswohnung in Tribunj bietet Ihnen die perfekte Kombination aus Ruhe und Strandnähe. Nur 250 Meter vom Meer entfernt, sind Sie in kürzester Zeit am Wasser, wo Sie den Tag mit Sonne und Meer verbringen können. Tribunj, ein malerisches Dorf in Dalmatien, überzeugt durch seinen traditionellen Charme und ist nur wenige Kilometer westlich von Vodice gelegen. Das charmante Zentrum von Tribunj erreichen Sie nach nur 500 Metern und erleben hier eine Vielzahl von traditionellen Restaurants, Geschäften und allen Einrichtungen des täglichen Bedarfs.
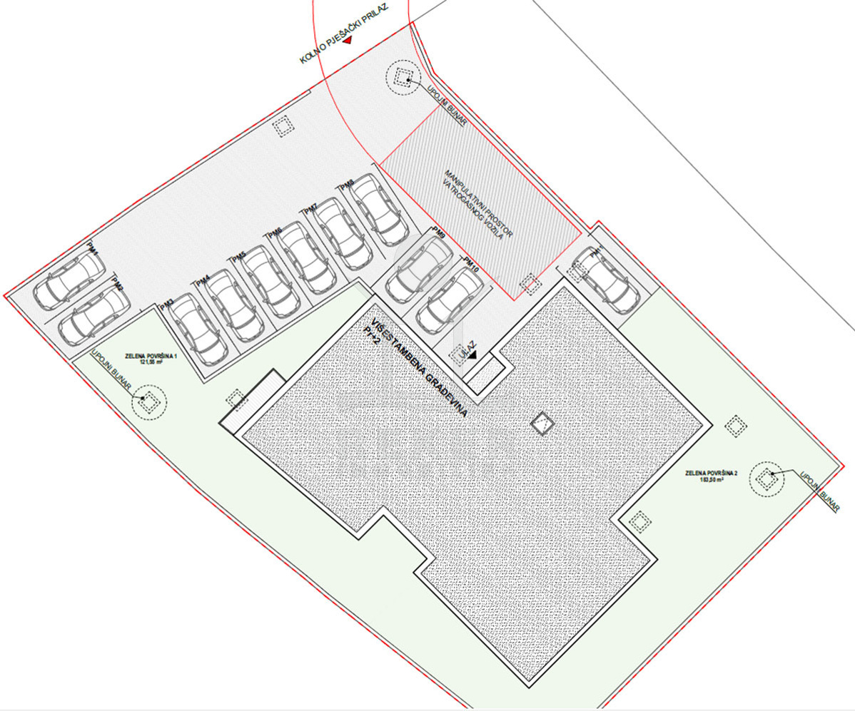
Die Erdgeschosswohnung ist Teil eines Neubaus mit 6 Wohnungen, verteilt auf 2 Etagen. Mit einem großzügigen Gartenanteil von 122 m² bietet sie viel Platz im Freien. Ausstattungsmerkmale wie Fußbodenheizung, Klimaanlage in allen Zimmern, hochwertige PVC-Tischlerei und elektrische Jalousien sorgen für höchsten Komfort. Zusätzlich sind Moskitonetze an allen Fenstern und stilvolle Keramik in allen Räumen sowie Laminat in den Schlafzimmern vorgesehen. Ein Parkplatz und ein Ladegerät für Elektroautos sind ebenfalls inklusive. Die Fertigstellung ist voraussichtlich für April 2026 geplant.
Innenraum & Interieur
Die exquisite Wohnung überzeugt mit einem offenen Grundriss von 111 m², der den Eingangsbereich elegant mit dem Wohn-, Ess- und Küchenzimmer verbindet. Eine 29 m² große überdachte Terrasse lädt dazu ein, entspannte Stunden im Freien zu verbringen. Die beiden Schlafzimmer bieten Rückzugsmöglichkeiten und das moderne Bad sowie ein Gäste-WC und eine praktische Waschküche runden das Angebot ab.
Die Erdgeschosswohnung erwartet Sie in Tribunj!
- Ort: Tribunj (Dorf)
- Einwohnerzahl: 1.536 (2011)
- Region: Dalmatien-Sibenik
- Autobahnentfernung: ca. 12 km *
- Nächster Flughafen: Zadar / ca. 60 km *
Immobiliendaten
- Objektart: Wohnung
- Objekttyp: Erdgeschosswohnung
- Baujahr: 2025
- ID: 8282
- Kaufpreis: 339.000 €
- Provision: 3,75 % inkl. MwSt. in Kroatien
- Wohnfläche: 111 m²
- Gartenfläche: 122 m²
- Anzahl Zimmer: 3
- Anzahl Schlafzimmer: 2
- Anzahl Badezimmer: 1
- Land: Kroatien
- Region: Dalmatien-Sibenik
- Ort: Tribunj
- Lage: Ortslage
- Meerentfernung: 250 m
Haben Sie Interesse die schöne Erdgeschosswohnung zu besitzen?
Nehmen Sie gerne Kontakt mit mir auf!
Ich bin Heiner Reker, Gründer und
Geschäftsführer von Reker Immobilien d.o.o. Ich begleite Sie bei Ihrer aufregenden Reise in die Welt der Immobilien in Kroatien.
Gerne organisiere ich persönlich mit meinen qualifizierten Partnern jeden Schritt bei Ihrem rechtssicheren und stressfreien Immobilienkauf in Kroatien.
Füllen Sie das Formular aus und ich melde mich gerne zum gewünschten Zeitpunkt bei Ihnen.
Bis bald
Exposé mitnehmen?
Laden Sie unser PDF-Exposé herunter und Sie haben die wichtigste Objektdaten & Bilder immer zur Hand
Exposé mitnehmen?
Nehmen Sie Kontakt mit uns auf, ein Exposé schicken wir gerne per E-Mail
Ihre Traum-Immobilie noch nicht gefunden?
Besuchen Sie diese Seiten!

















