NEUBAUWOHNUNG IM 2. STOCK MIT 3 ZIMMERN & AUFZUG IN TAR
Ruhige Landidylle in Tar bei Porec
Die Neubauwohnung befindet sich in der malerischen Ortschaft Tar, unweit von Porec, und besticht durch ihre friedliche und ruhige Lage. Die Umgebung ist von idyllischer Natur geprägt und schafft eine entspannte Atmosphäre. Ein besonderer Vorteil dieser Wohnung ist die hervorragende Infrastruktur: In fußläufiger Entfernung finden Sie eine Schule, einen Kindergarten, eine Apotheke sowie Restaurants und Einkaufsmöglichkeiten, darunter Lebensmittelgeschäfte und einen Supermarkt. Das Meer ist nur etwa 2500 Meter entfernt, sodass Sie die wunderbaren Strände der Adriaküste in kurzer Zeit erreichen können.
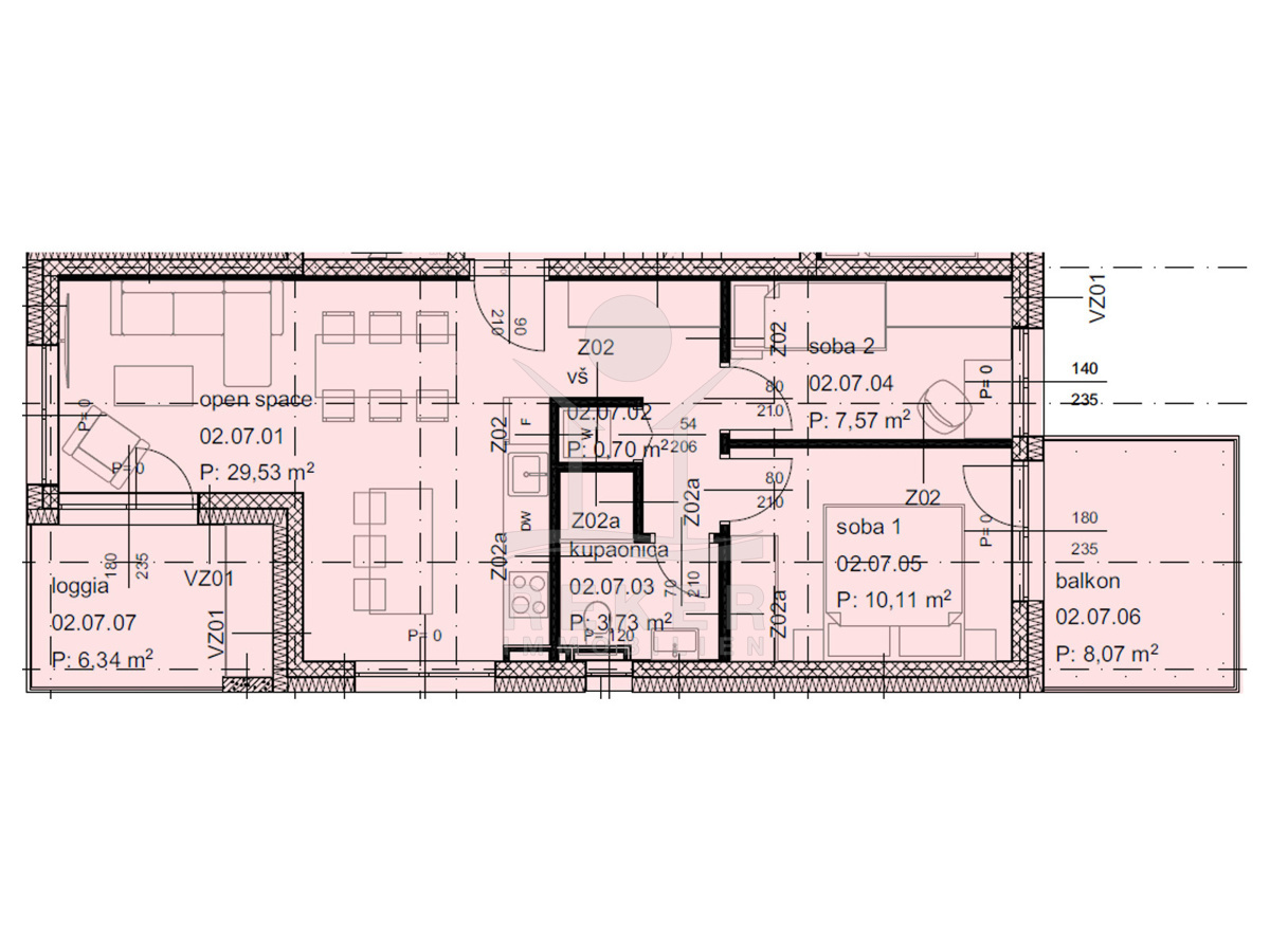
Die hochwertige Etagenwohnung befindet sich in einem modernen Wohnkomplex mit 24 Einheiten und bietet großzügige 71 m² Wohnfläche. Genießen Sie Fußbodenheizung, Klimaanlagen in allen Räumen und 3-fach-Verglasung für höchsten Komfort. Weitere Highlights sind elektrische Jalousien, eine feuerfeste Eingangstür sowie ein elegantes Badezimmer mit Villeroy & Boch Sanitärartikeln. Abgerundet wird das Angebot durch zwei Parkplätze direkt vor dem Gebäude. Die Fertigstellung ist für Juni 2026 geplant. Zusätzlich bietet das Erdgeschoss einen gemeinsamen Fahrradabstellraum für noch mehr Komfort!
Wohnung mit Balkon & Loggia für Ihr Wohlfühlambiente!
Die moderne Wohnung überzeugt durch ihren offenen und hellen Raum, der Wohnzimmer, Küche und Esszimmer vereint – perfekt für gesellige Abende und ein einladendes Ambiente. Die Loggia (6 m²) lädt dazu ein, entspannte Stunden im Freien zu genießen. Zwei Schlafzimmer, eines davon ebenfalls mit Zugang zum Balkon (8 m²), bieten Ihnen Rückzugsmöglichkeiten und Komfort. Das Badezimmer rundet das Gesamtbild ab und sorgt für Funktionalität.
Die Etagenwohnung erwartet Sie in Tar!
- Ort: Tar (Dorf)
- Einwohnerzahl: 886 (2001)
- Region: Istrien
- Autobahnentfernung: ca. 13 km *
- Nächster Flughafen: Pula / ca. 62 km *
Immobiliendaten
- Objektart: Wohnung
- Objekttyp: Etagenwohnung
- Baujahr: 2025
- ID: 8295
- Kaufpreis: 186.912 €
- Provision: 3,75 % inkl. MwSt. in Kroatien
- Wohnfläche: 66 m²
- Anzahl Zimmer: 3
- Anzahl Schlafzimmer: 2
- Anzahl Badezimmer: 1
- Land: Kroatien
- Region: Istrien
- Ort: Tar
- Lage: Siedlung
- Meerentfernung: 3 km
Haben Sie Interesse die schöne Etagenwohnung zu besitzen?
Nehmen Sie gerne Kontakt mit mir auf!
Ich bin Heiner Reker, Gründer und
Geschäftsführer von Reker Immobilien d.o.o. Ich begleite Sie bei Ihrer aufregenden Reise in die Welt der Immobilien in Kroatien.
Gerne organisiere ich persönlich mit meinen qualifizierten Partnern jeden Schritt bei Ihrem rechtssicheren und stressfreien Immobilienkauf in Kroatien.
Füllen Sie das Formular aus und ich melde mich gerne zum gewünschten Zeitpunkt bei Ihnen.
Bis bald
Exposé mitnehmen?
Laden Sie unser PDF-Exposé herunter und Sie haben die wichtigste Objektdaten & Bilder immer zur Hand
Exposé mitnehmen?
Nehmen Sie Kontakt mit uns auf, ein Exposé schicken wir gerne per E-Mail
Ihre Traum-Immobilie noch nicht gefunden?
Besuchen Sie diese Seiten!








