NEUBAUWOHNUNG IM 1. OG MIT MEERBLICK, LOGGIA UND PREMIUM-AUSSTATTUNG
            Lage & Außenbereich
Im ruhigen, grünen Teil von Sukošan, nur etwa 400 Meter vom Meer entfernt, entsteht ein Wohnprojekt, das sich harmonisch in die Natur einfügt. Zwischen alten Olivenbäumen öffnet sich der Blick über die sanfte Küstenlandschaft bis zum Meer. Die Lage vermittelt Ruhe, Weite und mediterranes Lebensgefühl. Hier treffen Natur und Komfort aufeinander, ein Ort für Menschen, die Stille und Meerblick schätzen.
Das Gebäude fügt sich natürlich in seine Umgebung ein. Nur sechs Wohnungen auf drei Etagen bieten Privatsphäre und Großzügigkeit. Jede Einheit profitiert von der südlichen Ausrichtung und viel Tageslicht. POROTHERM-Ziegel mit verstärkter Armierung sorgen für Stabilität und gesundes Raumklima. Große Glas-Schiebetüren im REHAU-System bringen Helligkeit und Offenheit in jeden Raum. Das STO-Fassadensystem schützt dauerhaft und unterstreicht das klare Design. Römischer Travertin mit warmer Struktur akzentuiert Balkone und Treppen und betont den mediterranen Stil. Ein Aufzug verbindet alle Etagen und sorgt für bequemen Zugang.  Ein 7 m² großer Abstellraum schafft praktischen Platz, während der eigene Außenstellplatz direkt vor dem Haus liegt.
Innenraum & Interieur
Innen erwartet Sie eine ruhige, klare Atmosphäre. Der offene Wohn-, Ess- und Küchenbereich ist hell und freundlich gestaltet. Große Glasflächen lassen viel Tageslicht herein und betonen das warme Eichenparkett. Die DEVI-Fußbodenheizung verteilt gleichmäßig sanfte Wärme in jedem Raum. In der Küche stehen Bosch-Geräte für Qualität und Langlebigkeit. Im Bad sorgen Hansgrohe-Armaturen für modernes Design und angenehme Funktionalität. Die Mitsubishi-Electric-Klimaanlage arbeitet leise und sorgt ganzjährig für ein ausgewogenes Raumklima. Das Schlafzimmer bietet Helligkeit und Ruhe zugleich.
Die Etagenwohnung erwartet Sie in Sukošan!
- Ort: Sukošan (Gemeinde)
 - Einwohnerzahl: 4.583 (2011)
 - Region: Dalmatien-Zadar
 - Autobahnentfernung: ca. 15 km *
 - Nächster Flughafen: Zadar / ca. 11 km *
 
                Immobiliendaten
- Objektart: Wohnung
 - Objekttyp: Etagenwohnung
 - Baujahr: 2025
 - ID: 9406
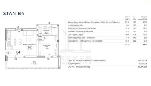
 - Kaufpreis: 325.000 €
 - Provision: 3,75 % inkl. MwSt. in Kroatien
 
- Wohnfläche: 60 m²
 - Anzahl Zimmer: 2
 - Anzahl Schlafzimmer: 1
 - Anzahl Badezimmer: 1
 
- Land: Kroatien
 - Region: Dalmatien-Zadar
 - Ort: Sukošan
 - Meerentfernung: 400 m
 
Haben Sie Interesse die schöne Etagenwohnung zu besitzen?
Nehmen Sie gerne Kontakt mit mir auf!
Ich bin Heiner Reker, Gründer und
                    Geschäftsführer von Reker Immobilien d.o.o. Ich begleite Sie bei Ihrer aufregenden Reise in die Welt der Immobilien in Kroatien.
                    
Gerne organisiere ich persönlich mit meinen qualifizierten Partnern jeden Schritt bei Ihrem rechtssicheren und stressfreien Immobilienkauf in Kroatien.
Füllen Sie das Formular aus und ich melde mich gerne zum gewünschten Zeitpunkt bei Ihnen.
Bis bald
            Exposé mitnehmen?
Laden Sie unser PDF-Exposé herunter und Sie haben die wichtigste Objektdaten & Bilder immer zur Hand
Exposé mitnehmen?
Nehmen Sie Kontakt mit uns auf, ein Exposé schicken wir gerne per E-Mail
Ihre Traum-Immobilie noch nicht gefunden?
Besuchen Sie diese Seiten!












