LICHT, LUFT UND MEERBLICK: NEUBAUWOHNUNG IM 1. OG MIT LOGGIA IN SUKOŠAN
            Lage & Außenbereich
Im ruhigen, grünen Teil von Sukošan, nur etwa 400 Meter vom Meer entfernt, entsteht ein Wohnprojekt, das sich harmonisch in die Natur einfügt. Zwischen alten Olivenbäumen öffnet sich der Blick über die sanfte Küstenlandschaft bis zum Meer. Die Lage vermittelt Ruhe, Weite und mediterranes Lebensgefühl. Hier treffen Natur und Komfort aufeinander, ein Ort für Menschen, die Stille und Meerblick schätzen.
Das Gebäude fügt sich natürlich in seine Umgebung ein. Nur sechs Wohnungen auf drei Etagen bieten Privatsphäre und Großzügigkeit. Jede Einheit profitiert von der südlichen Ausrichtung und viel Tageslicht. POROTHERM-Ziegel mit verstärkter Armierung sorgen für Stabilität und gesundes Raumklima. Große Glas-Schiebetüren im REHAU-System bringen Helligkeit und Offenheit in jeden Raum. Das STO-Fassadensystem schützt dauerhaft und unterstreicht das klare Design. Römischer Travertin mit warmer Struktur akzentuiert Balkone und Treppen und betont den mediterranen Stil. Ein Aufzug verbindet alle Etagen und sorgt für bequemen Zugang. Praktische Details wie der Abstellraum und der eigene Außenstellplatz runden die Ausstattung ab.
Innenraum & Interieur
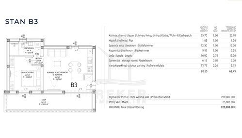
Im ersten Obergeschoss öffnet sie sich zur Loggia mit weitem Blick über die mediterrane Landschaft und Richtung Meer. Der überdachte Außenbereich mit 16 m² bietet einen geschützten Platz, um Sonne und Schatten zu genießen. Ruhig, privat und mit viel Leichtigkeit.
Innen überzeugt die Wohnung B3 durch klare Linien und eine harmonische Atmosphäre. Der offene Wohn-, Ess- und Küchenbereich mit über 25 m² wirkt großzügig und hell. Große Glasflächen lassen das Tageslicht tief in den Raum fallen, während das warme Eichenparkett eine angenehme Stimmung schafft. Die DEVI-Fußbodenheizung verteilt gleichmäßig sanfte Wärme im ganzen Raum. In der Küche sorgen Geräte von Bosch für Funktionalität und Stil. Im Bad unterstreichen Armaturen von Hansgrohe Qualität, die man sieht und spürt. Die Mitsubishi-Electric-Klimaanlage arbeitet leise und sorgt ganzjährig für ein ausgewogenes Raumklima. Das Schlafzimmer bietet Ruhe und den Blick ins Grüne.
Die Etagenwohnung erwartet Sie in Sukošan!
- Ort: Sukošan (Gemeinde)
 - Einwohnerzahl: 4.583 (2011)
 - Region: Dalmatien-Zadar
 - Autobahnentfernung: ca. 15 km *
 - Nächster Flughafen: Zadar / ca. 11 km *
 
                Immobiliendaten
- Objektart: Wohnung
 - Objekttyp: Etagenwohnung
 - Baujahr: 2025
 - ID: 9405
 - Kaufpreis: 325.000 €
 - Provision: 3,75 % inkl. MwSt. in Kroatien
 
- Wohnfläche: 60 m²
 - Anzahl Zimmer: 2
 - Anzahl Schlafzimmer: 1
 - Anzahl Badezimmer: 1
 
- Land: Kroatien
 - Region: Dalmatien-Zadar
 - Ort: Sukošan
 - Meerentfernung: 400 m
 
Haben Sie Interesse die schöne Etagenwohnung zu besitzen?
Nehmen Sie gerne Kontakt mit mir auf!
Ich bin Heiner Reker, Gründer und
                    Geschäftsführer von Reker Immobilien d.o.o. Ich begleite Sie bei Ihrer aufregenden Reise in die Welt der Immobilien in Kroatien.
                    
Gerne organisiere ich persönlich mit meinen qualifizierten Partnern jeden Schritt bei Ihrem rechtssicheren und stressfreien Immobilienkauf in Kroatien.
Füllen Sie das Formular aus und ich melde mich gerne zum gewünschten Zeitpunkt bei Ihnen.
Bis bald
            Exposé mitnehmen?
Laden Sie unser PDF-Exposé herunter und Sie haben die wichtigste Objektdaten & Bilder immer zur Hand
Exposé mitnehmen?
Nehmen Sie Kontakt mit uns auf, ein Exposé schicken wir gerne per E-Mail
Ihre Traum-Immobilie noch nicht gefunden?
Besuchen Sie diese Seiten!












