IHRE WOHNUNG MIT AUSSICHT – LOGGIA MIT MEERBLICK UND 80 M² RAUMGEFÜHL
Lage & Außenbereich
Sie wohnen hier in einer der begehrtesten Lagen Dalmatiens – nur einen Katzensprung vom berühmten Strand von Primošten entfernt. Gerade einmal 100 Meter trennen Sie vom türkisblauen Meer. Das Zentrum von Primošten ist ebenfalls ganz nah – ideal, wenn Sie kurze Wege schätzen. Die Umgebung ist ruhig, gepflegt und dennoch zentral. Die erhöhte Hanglage bietet einen ganz besonderen Vorteil: Ihren Meerblick kann Ihnen niemand verbauen. Ein echtes Stück Freiheit. Und der Supermarkt? In nur einem Kilometer erreichbar.
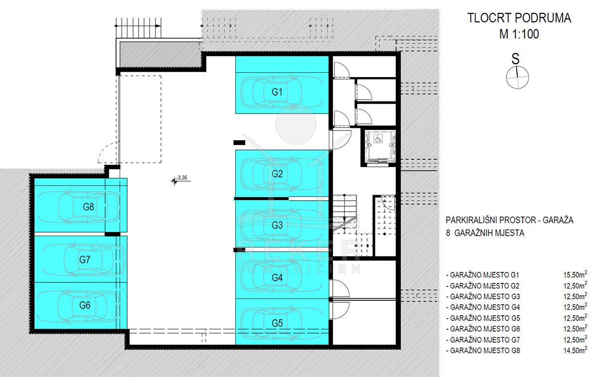
Klare, moderne Architektur: insgesamt entstehen zwölf Wohnungen, verteilt auf vier Etagen – Erdgeschoss bis dritte Stock. Ein Aufzug sorgt für barrierearmen Zugang auf allen Ebenen. Draußen erwartet Sie ein gemeinschaftlicher Pool – ideal für entspannte Stunden unter freiem Himmel. Für jedes Apartment ist ein Stellplatz vorgesehen. Kurz gesagt: alles da, was das Wohnen angenehm macht.
Innenraum & Interieur
Großzügig, hell und mit weitem Blick aufs Meer – so lässt sich diese Wohnung im zweiten Stock am besten beschreiben. Auf rund 80 m² Innenfläche finden Sie zwei Schlafzimmer, zwei Bäder, eine Waschküche und einen offenen Wohn-Essbereich mit Küche. Vom Wohnzimmer aus treten Sie auf die große Loggia. Mit 14,30 m² bietet sie genug Platz für Tisch, Stühle und den Blick bis zum Horizont. Der Ausblick macht jeden Tag ein bisschen schöner – sei es beim Kaffee am Morgen oder beim Abendlicht.
Das Hauptschlafzimmer hat ein eigenes Bad, das zweite Bad liegt ideal für Gäste oder Familienmitglieder. Auch hier: Klimaanlage, Fußbodenheizung im Bad und elektrische Jalousien sorgen für Komfort. Möbliert ist nichts – Sie gestalten nach Ihrem Geschmack.
Die Etagenwohnung erwartet Sie in Primošten!
- Ort: Primošten (Gemeinde)
- Einwohnerzahl: 2.828 (2011)
- Region: Dalmatien-Sibenik
- Autobahnentfernung: ca. 30 km *
- Nächster Flughafen: Split / ca. 39 km *
Immobiliendaten
- Objektart: Wohnung
- Objekttyp: Etagenwohnung
- Baujahr: 2026
- ID: 8789
- Kaufpreis: 611.100 €
- Provision: 3,75 % inkl. MwSt. in Kroatien
- Wohnfläche: 94 m²
- Anzahl Zimmer: 3
- Anzahl Schlafzimmer: 2
- Anzahl Badezimmer: 2
- Land: Kroatien
- Region: Dalmatien-Sibenik
- Ort: Primošten
- Lage: Ortslage
- Meerentfernung: 100 m
Haben Sie Interesse die schöne Etagenwohnung zu besitzen?
Nehmen Sie gerne Kontakt mit mir auf!
Ich bin Heiner Reker, Gründer und
Geschäftsführer von Reker Immobilien d.o.o. Ich begleite Sie bei Ihrer aufregenden Reise in die Welt der Immobilien in Kroatien.
Gerne organisiere ich persönlich mit meinen qualifizierten Partnern jeden Schritt bei Ihrem rechtssicheren und stressfreien Immobilienkauf in Kroatien.
Füllen Sie das Formular aus und ich melde mich gerne zum gewünschten Zeitpunkt bei Ihnen.
Bis bald
Exposé mitnehmen?
Laden Sie unser PDF-Exposé herunter und Sie haben die wichtigste Objektdaten & Bilder immer zur Hand
Exposé mitnehmen?
Nehmen Sie Kontakt mit uns auf, ein Exposé schicken wir gerne per E-Mail
Ihre Traum-Immobilie noch nicht gefunden?
Besuchen Sie diese Seiten!
















