SCHLÜSSELFERTIGE WOHNUNG IN POREČ MIT GROSSER TERRASSE UND UND MODERNER TECHNIK
Lage & Außenbereich
In einem ruhigen Teil von Poreč, nur zwei Kilometer vom Meer und vom Stadtzentrum entfernt, erwartet Sie eine moderne Wohnung in einem kleinen Neubau mit nur vier Einheiten. Sie befindet sich im ersten Stock und verfügt über zwei private Stellplätze direkt am Haus. Der Neubau aus dem Jahr 2025 steht für Qualität und ermöglicht einen sofortigen Einzug ohne weitere Arbeiten.
Innenraum & Interieur
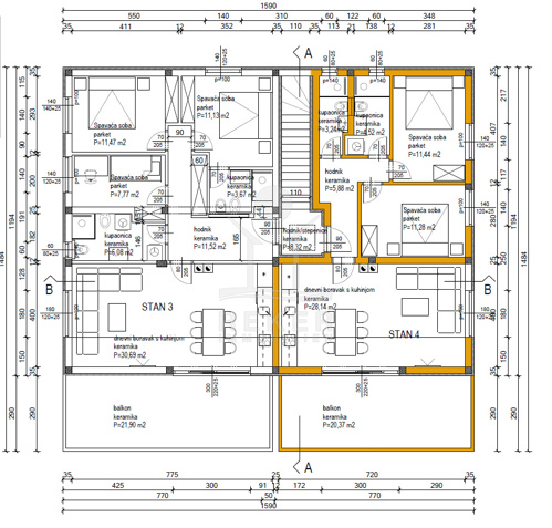
Die Wohnfläche von 84,87 m² ist klar aufgeteilt: ein Wohnzimmer mit offener Küche und Essbereich, zwei Schlafzimmer, zwei Badezimmer und ein Flur. Hochwertige LVT-Vinylfliesen unterstreichen den modernen Charakter, auf Wunsch sind auch andere Beläge möglich. Daikin-Klimaanlagen in allen Räumen, inklusive der Schlafzimmer, sorgen zu jeder Jahreszeit für ein angenehmes Klima. An kühleren Tagen trägt der vorgesehene Kamin zur Behaglichkeit bei. Die Terrasse mit 20,37 m² ist großzügig geschnitten und bietet Platz für Mahlzeiten im Freien oder entspannte Abende. Ein wertvoller Zusatzraum unter freiem Himmel.
Die Übergabe erfolgt schlüsselfertig. Möbel und Beleuchtung sind nicht enthalten, sodass Sie die Einrichtung individuell gestalten können. Mit Gegensprechanlage, Internet- und Satellitenanschluss ist die Wohnung technisch bestens ausgestattet.
Die Etagenwohnung erwartet Sie in Poreč!
Die Stadt ist wegen der guten Lage und des umfangreichen Tourismusangebots mehrfach ausgezeichnet worden. Sie ist eine der bedeutendsten Küstenstädte an der Westküste der Halbinsel Istrien in Kroatien.
- Ort: Poreč (Stadt)
- Einwohnerzahl: 16.696 (2011)
- Region: Istrien
- Autobahnentfernung: ca. 10 km *
- Nächster Flughafen: Pula / ca. 56 km *
Immobiliendaten
- Objektart: Wohnung
- Objekttyp: Etagenwohnung
- Baujahr: 2025
- ID: 9320
- Kaufpreis: 320.000 €
- Provision: 3,75 % inkl. MwSt. in Kroatien
- Wohnfläche: 84 m²
- Anzahl Zimmer: 3
- Anzahl Schlafzimmer: 2
- Anzahl Badezimmer: 2
- Land: Kroatien
- Region: Istrien
- Ort: Poreč
- Meerentfernung: 2 km
Haben Sie Interesse die schöne Etagenwohnung zu besitzen?
Nehmen Sie gerne Kontakt mit mir auf!
Ich bin Heiner Reker, Gründer und
Geschäftsführer von Reker Immobilien d.o.o. Ich begleite Sie bei Ihrer aufregenden Reise in die Welt der Immobilien in Kroatien.
Gerne organisiere ich persönlich mit meinen qualifizierten Partnern jeden Schritt bei Ihrem rechtssicheren und stressfreien Immobilienkauf in Kroatien.
Füllen Sie das Formular aus und ich melde mich gerne zum gewünschten Zeitpunkt bei Ihnen.
Bis bald
Exposé mitnehmen?
Laden Sie unser PDF-Exposé herunter und Sie haben die wichtigste Objektdaten & Bilder immer zur Hand
Exposé mitnehmen?
Nehmen Sie Kontakt mit uns auf, ein Exposé schicken wir gerne per E-Mail
Ihre Traum-Immobilie noch nicht gefunden?
Besuchen Sie diese Seiten!






