EIN GANZES STOCKWERK FÜR SICH: POREČ-PENTHOUSE MIT 55 M² BALKONFLÄCHE
Lage & Außenbereich
Die Lage ist ruhig und angenehm grün … ideal, wenn Sie dem Alltag entfliehen möchten. Das Meer ist ganz nah: Nur ca. 750 Meter Luftlinie trennen das Grundstück von der Küste. In wenigen Minuten sind Sie am Strand, ganz ohne lange Fahrt. Auch das Stadtzentrum von Poreč ist nur etwa 3 Kilometer entfernt. Hier wohnen Sie entspannt und gut angebunden.
Das moderne Gebäude umfasst insgesamt fünf Wohnungen: zwei im Erdgeschoss, zwei im ersten Obergeschoss und ein großzügiges Penthouse im zweiten Stock. Die Fertigstellung ist für den 1. Dezember 2025 geplant. Verkauft wird jede Wohnung schlüsselfertig – das heißt: Badezimmer komplett ausgestattet, alles bereit zum Einzug. Jede Einheit bekommt einen eigenen Parkplatz direkt vor dem Haus.
Innenraum & Interieur
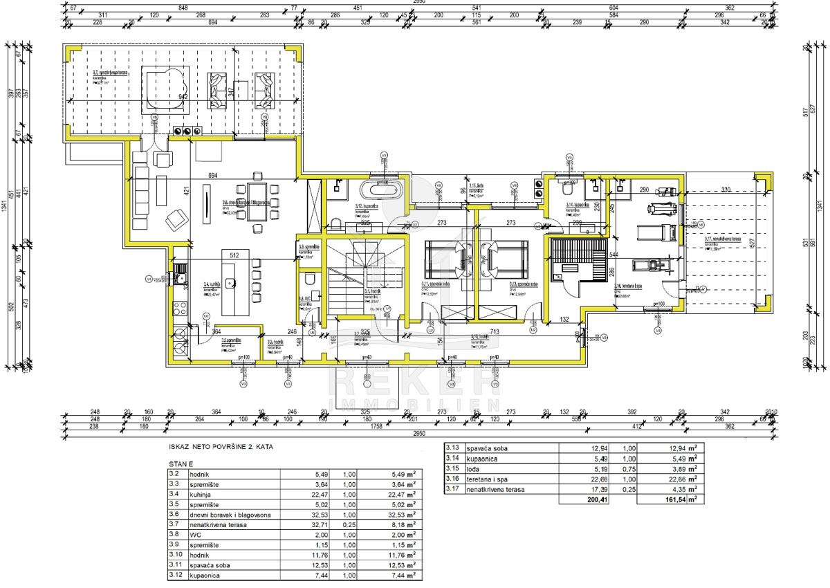
Das Penthouse erstreckt sich über die gesamte oberste Etage – ganz für Sie allein. Kein Treppenlärm, keine direkten Nachbarn. Nur viel Raum, Licht und Freiheit. Drei Schlafzimmer, zwei Bäder, ein weitläufiger Wohnbereich: alles da. Und alles durchdacht.
Der Wohn- und Essbereich misst über 32 m² – offen zur Küche, luftig, einladend. Hier spielt sich das Leben ab. Die beiden Hauptschlafzimmer haben jeweils ihr eigenes Bad – perfekt, wenn jeder seinen Rückzugsort braucht. Und das dritte Zimmer? Derzeit als Spa- und Fitnessraum gedacht. Kann aber auch wieder ein Schlafzimmer werden. Oder Büro. Oder Atelier. Sie entscheiden.
Technisch ist die Wohnung bestens ausgestattet: Fußbodenheizung, Klimaanlage, Kamin – bereit für Sommer wie Winter. Die Fenster sind dreifach verglast, mit elektrischen Jalousien. Insekten bleiben draußen, Ruhe drinnen. Dazu kommt ein echtes Highlight: Drei Balkone mit zusammen über 55 m² Fläche. Morgens auf der Loggia frühstücken, mittags in der Sonne lesen, abends draußen entspannen. Jeder Winkel hat seinen Moment. Und der Alltag? Drei Abstellräume, ein Gäste-WC und zwei Parkplätze direkt vorm Haus sorgen dafür, dass alles seinen Platz hat.
Das Penthouse erwartet Sie in Poreč!
Die Stadt ist wegen der guten Lage und des umfangreichen Tourismusangebots mehrfach ausgezeichnet worden. Sie ist eine der bedeutendsten Küstenstädte an der Westküste der Halbinsel Istrien in Kroatien.
- Ort: Poreč (Stadt)
- Einwohnerzahl: 16.696 (2011)
- Region: Istrien
- Autobahnentfernung: ca. 10 km *
- Nächster Flughafen: Pula / ca. 56 km *
Immobiliendaten
- Objektart: Wohnung
- Objekttyp: Penthouse
- Baujahr: 2025
- ID: 8879
- Kaufpreis: 675.000 €
- Provision: 3,75 % inkl. MwSt. in Kroatien
- Wohnfläche: 200 m²
- Anzahl Zimmer: 3
- Anzahl Schlafzimmer: 3
- Anzahl Badezimmer: 2
- Land: Kroatien
- Region: Istrien
- Ort: Poreč
- Lage: Stadtteil
- Meerentfernung: 750 m
Haben Sie Interesse das schöne Penthouse zu besitzen?
Nehmen Sie gerne Kontakt mit mir auf!
Ich bin Heiner Reker, Gründer und
Geschäftsführer von Reker Immobilien d.o.o. Ich begleite Sie bei Ihrer aufregenden Reise in die Welt der Immobilien in Kroatien.
Gerne organisiere ich persönlich mit meinen qualifizierten Partnern jeden Schritt bei Ihrem rechtssicheren und stressfreien Immobilienkauf in Kroatien.
Füllen Sie das Formular aus und ich melde mich gerne zum gewünschten Zeitpunkt bei Ihnen.
Bis bald
Exposé mitnehmen?
Laden Sie unser PDF-Exposé herunter und Sie haben die wichtigste Objektdaten & Bilder immer zur Hand
Exposé mitnehmen?
Nehmen Sie Kontakt mit uns auf, ein Exposé schicken wir gerne per E-Mail
Ihre Traum-Immobilie noch nicht gefunden?
Besuchen Sie diese Seiten!



