RAUS IN DEN GARTEN, REIN INS LEBEN – ERDGESCHOSSTRAUM BEI POREČ
Lage & Außenbereich
Die Lage ist ruhig und angenehm grün … ideal, wenn Sie dem Alltag entfliehen möchten. Das Meer ist ganz nah: Nur ca. 750 Meter Luftlinie trennen das Grundstück von der Küste. In wenigen Minuten sind Sie am Strand, ganz ohne lange Fahrt. Auch das Stadtzentrum von Poreč ist nur etwa 3 Kilometer entfernt. Hier wohnen Sie entspannt und gut angebunden.
Das moderne Gebäude umfasst insgesamt fünf Wohnungen: zwei im Erdgeschoss, zwei im ersten Obergeschoss und ein großzügiges Penthouse im zweiten Stock. Die Fertigstellung ist für den 1. Dezember 2025 geplant. Verkauft wird jede Wohnung schlüsselfertig – das heißt: Badezimmer komplett ausgestattet, alles bereit zum Einzug. Jede Einheit bekommt einen eigenen Parkplatz direkt vor dem Haus.
Innenraum & Interieur
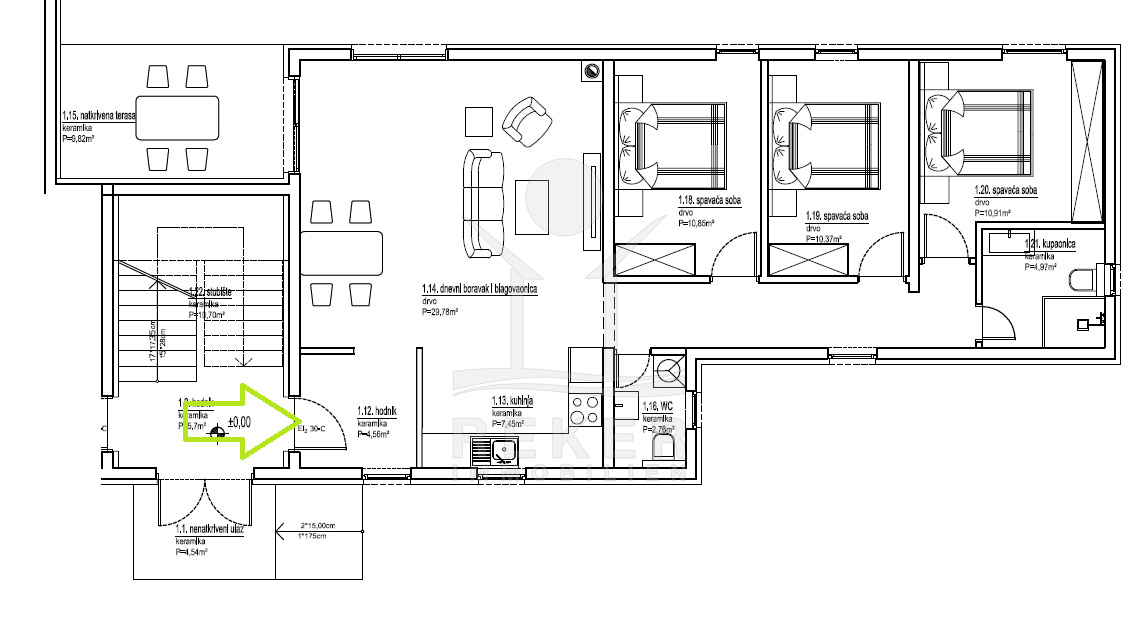
Sie betreten die Wohnung ebenerdig über einen kleinen, geschützten Vorbereich. Innen öffnet sich der Blick direkt in den großzügigen Wohn- und Essbereich. Fast 30 m² Raumgefühl – hell, offen und einladend. Die Küche liegt gleich daneben, funktional geschnitten und mit direktem Zugang zum Wohnraum. Der Boden: angenehm warm dank elektrischer Fußbodenheizung. Für gemütliche Abende sorgt ein Kamin – an kühlen Tagen genauso wertvoll wie stilvoll. Im Sommer kühlt die Klimaanlage.
Drei gut geschnittene Schlafzimmer liegen nebeneinander – ideal für Familien, Gäste oder Homeoffice. Alle Räume sind mit elektrischen Jalousien ausgestattet. Dreifach verglaste Fenster halten die Wärme drin und den Lärm draußen. Und: Insekten bleiben draußen – dank durchdachter Moskitonetze. Das Bad ist klar strukturiert, mit Dusche, WC und Platz für Stauraum. Ein separates Gäste-WC ergänzt den Grundriss sinnvoll.
Draußen wartet Ihr Pluspunkt: ein eigener Garten mit 115 m² Fläche. Dazu eine überdachte Terrasse mit knapp 10 m² – perfekt für Frühstück im Schatten oder lange Sommerabende. Genug Platz für Pflanzen, Spiel oder einfach Ruhe.
Die Erdgeschosswohnung erwartet Sie in Poreč!
Die Stadt ist wegen der guten Lage und des umfangreichen Tourismusangebots mehrfach ausgezeichnet worden. Sie ist eine der bedeutendsten Küstenstädte an der Westküste der Halbinsel Istrien in Kroatien.
- Ort: Poreč (Stadt)
- Einwohnerzahl: 16.696 (2011)
- Region: Istrien
- Autobahnentfernung: ca. 10 km *
- Nächster Flughafen: Pula / ca. 56 km *
Immobiliendaten
- Objektart: Wohnung
- Objekttyp: Erdgeschosswohnung
- Baujahr: 2025
- ID: 8877
- Kaufpreis: 369.000 €
- Provision: 3,75 % inkl. MwSt. in Kroatien
- Wohnfläche: 95 m²
- Gartenfläche: 115 m²
- Anzahl Zimmer: 4
- Anzahl Schlafzimmer: 3
- Anzahl Badezimmer: 1
- Land: Kroatien
- Region: Istrien
- Ort: Poreč
- Lage: Stadtteil
- Meerentfernung: 750 m
Haben Sie Interesse die schöne Erdgeschosswohnung zu besitzen?
Nehmen Sie gerne Kontakt mit mir auf!
Ich bin Heiner Reker, Gründer und
Geschäftsführer von Reker Immobilien d.o.o. Ich begleite Sie bei Ihrer aufregenden Reise in die Welt der Immobilien in Kroatien.
Gerne organisiere ich persönlich mit meinen qualifizierten Partnern jeden Schritt bei Ihrem rechtssicheren und stressfreien Immobilienkauf in Kroatien.
Füllen Sie das Formular aus und ich melde mich gerne zum gewünschten Zeitpunkt bei Ihnen.
Bis bald
Exposé mitnehmen?
Laden Sie unser PDF-Exposé herunter und Sie haben die wichtigste Objektdaten & Bilder immer zur Hand
Exposé mitnehmen?
Nehmen Sie Kontakt mit uns auf, ein Exposé schicken wir gerne per E-Mail
Ihre Traum-Immobilie noch nicht gefunden?
Besuchen Sie diese Seiten!



