IHR LEBEN, IHRE INVESTITION: EXKLUSIVE NEUBAUWOHNUNG IN PETRČANE

Moderne Neubauwohnung in attraktiver und ruhiger Lage
Die Neubauwohnung befindet sich in einer attraktiven und ruhigen Lage in Petrčane, nur 150 Meter vom Meer entfernt. Hier haben Sie die Möglichkeit, die mediterrane Atmosphäre und die Schönheit der kroatischen Adriaküste zu genießen. In der Umgebung finden Sie einen Handel, der Ihre Einkäufe erleichtert, sowie öffentliche Verkehrsmittel für eine bequeme Erkundung der Umgebung. Die Lage bietet Ihnen eine perfekte Mischung aus Ruhe, Entspannung und modernem Stadtleben. Sie können das Meer, die Strände und die Küste in wenigen Minuten erreichen, während Sie gleichzeitig alle Annehmlichkeiten des täglichen Bedarfs in der Nähe haben. Ein idealer Wohnort für alle, die das Beste aus beiden Welten suchen.
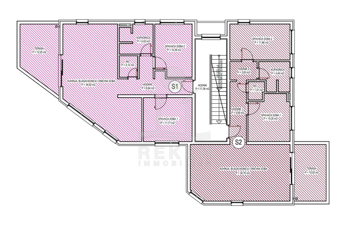
Das Apartment liegt im 1. Stock in einem Gebäude mit insgesamt sechs Wohneinheiten. Der Bau wird mit hochwertigen Materialien durchgeführt, sowohl Boden- als auch Wandbeläge sind von höchstem Standard. Die Wohnung verfügt über eine hochwertige Salamander-PVC-Zimmerei und elektrische Jalousien. Alle Räume sind mit Keramikfliesen ausgestattet und der Bodenbelag kann je nach Bauzustand vom Kunden gewählt werden. Der Bau ist für Dezember 2024 zur Fertigstellung und Einzug geplant. Zur Wohnung gehören zwei Parkplätze.
Luxuriöses Wohnen mit optimaler Ausstattung
Dieses Apartment überzeugt durch eine großzügige Wohnfläche von 78 m² und wird mit modernster Klimaanlage und Fußbodenheizung ausgestattet. Es verfügt über eine geräumige Küche, ein gemütliches Esszimmer und ein komfortables Wohnzimmer. Zusätzlich bietet das Apartment ein WC sowie ein Badezimmer mit allen Annehmlichkeiten. Zwei Schlafzimmer bieten ausreichend Platz für Entspannung und Ruhe. Das Highlight ist die Terrasse, auf der Sie die Sonne genießen können. Dieses Apartment ist der ideale Ort für gehobenes Wohnen und puren Komfort.
Die Etagenwohnung erwartet Sie in Petrčane!
- Ort: Petrčane (Dorf)
- Einwohnerzahl: 601 (2011)
- Region: Dalmatien-Zadar
- Autobahnentfernung: ca. 30 km *
- Nächster Flughafen: Zadar / ca. 22 km *

Immobiliendaten
- Objektart: Wohnung
- Objekttyp: Etagenwohnung
- Baujahr: 2024
- ID: 6358
- Kaufpreis: 280.000 €
- Provision: 3,75 % inkl. MwSt. in Kroatien
- Wohnfläche: 78 m²
- Anzahl Zimmer: 3
- Anzahl Schlafzimmer: 2
- Anzahl Badezimmer: 1
- Land: Kroatien
- Region: Dalmatien-Zadar
- Ort: Petrčane
- Meerentfernung: 150 m
Haben Sie Interesse die schöne Etagenwohnung zu besitzen?
Nehmen Sie gerne Kontakt mit mir auf!
Ich bin Heiner Reker, Gründer und
Geschäftsführer von Reker Immobilien d.o.o. Ich begleite Sie bei Ihrer aufregenden Reise in die Welt der Immobilien in Kroatien.
Gerne organisiere ich persönlich mit meinen qualifizierten Partnern jeden Schritt bei Ihrem rechtssicheren und stressfreien Immobilienkauf in Kroatien.
Füllen Sie das Formular aus und ich melde mich gerne zum gewünschten Zeitpunkt bei Ihnen.
Bis bald

Exposé mitnehmen?
Laden Sie unser PDF-Exposé herunter und Sie haben die wichtigste Objektdaten & Bilder immer zur Hand
Exposé mitnehmen?
Nehmen Sie Kontakt mit uns auf, ein Exposé schicken wir gerne per E-Mail
Ihre Traum-Immobilie noch nicht gefunden?
Besuchen Sie diese Seiten!