DACHTERRASSENTRAUM IN PETRČANE – MIT STIL UND RAUM ZUM LEBEN
Lage & Außenbereich
Petrčane liegt in der beliebten Region Dalmatien-Zadar. Ein kleiner Ort mit viel Charme – ruhig, grün, entspannt. Und genau hier entsteht dieses feine Neubauprojekt. Eingebettet in eine idyllische Waldlage. Nur rund 900 Meter trennen Sie vom nächsten Strand. Das Meer ist nah, die Umgebung still. Ideal für alle, die Ruhe schätzen – und Natur.
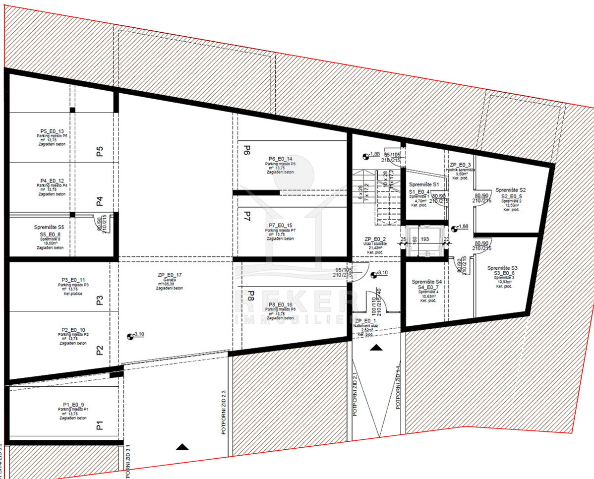
Das Gebäude ist angenehm überschaubar: drei Etagen, vier Wohnungen. Modern, hochwertig, gut durchdacht. Der Aufzug fährt direkt aus der Tiefgarage nach oben. Alles verbunden – bequem und barrierearm. Die Bauqualität? Exzellent. 15 Zentimeter starke Fassadendämmung sorgt für angenehmes Klima. Aluminiumfenster mit Schiebeläden – langlebig und pflegeleicht. Dazu moderne Wärmepumpen und hochwertige Technik. Fertigstellung ist für Januar 2026 geplant.
Innenraum & Interieur
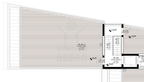
Wer Raum und Aussicht liebt, wird diese Wohnung sofort ins Herz schließen. Zwei Schlafzimmer, zwei Bäder, 80 m² Innenfläche – plus ein Balkon und eine Dachterrasse, die mit über 80 m² fast noch einmal so viel Platz bietet.
Der Wohnbereich ist offen gestaltet, mit Küche und Essplatz als Mittelpunkt. Helle Räume, durchdachter Grundriss, viel Licht. Das Hauptschlafzimmer hat ein eigenes Bad – angenehm und privat. Ein echtes Highlight ist die Dachterrasse: ganz oben, mit Panoramablick aufs Meer. Hier können Sie entspannen, feiern oder einfach den Sonnenuntergang genießen. Kein Dach über Ihnen, nur Himmel und Horizont.
Dazu gibt’s zwei Stellplätze in der Garage und einen eigenen Abstellraum im Keller. Alles da, was den Alltag leichter macht – und das Leben schöner.
Das Penthouse erwartet Sie in Petrčane!
- Ort: Petrčane (Dorf)
- Einwohnerzahl: 601 (2011)
- Region: Dalmatien-Zadar
- Autobahnentfernung: ca. 30 km *
- Nächster Flughafen: Zadar / ca. 22 km *
Immobiliendaten
- Objektart: Wohnung
- Objekttyp: Penthouse
- Baujahr: 2026
- ID: 8771
- Kaufpreis: 496.000 €
- Provision: 3,75 % inkl. MwSt. in Kroatien
- Wohnfläche: 179 m²
- Anzahl Zimmer: 3
- Anzahl Schlafzimmer: 2
- Anzahl Badezimmer: 2
- Land: Kroatien
- Region: Dalmatien-Zadar
- Ort: Petrčane
- Meerentfernung: 900 m
Haben Sie Interesse das schöne Penthouse zu besitzen?
Nehmen Sie gerne Kontakt mit mir auf!
Ich bin Heiner Reker, Gründer und
Geschäftsführer von Reker Immobilien d.o.o. Ich begleite Sie bei Ihrer aufregenden Reise in die Welt der Immobilien in Kroatien.
Gerne organisiere ich persönlich mit meinen qualifizierten Partnern jeden Schritt bei Ihrem rechtssicheren und stressfreien Immobilienkauf in Kroatien.
Füllen Sie das Formular aus und ich melde mich gerne zum gewünschten Zeitpunkt bei Ihnen.
Bis bald
Exposé mitnehmen?
Laden Sie unser PDF-Exposé herunter und Sie haben die wichtigste Objektdaten & Bilder immer zur Hand
Exposé mitnehmen?
Nehmen Sie Kontakt mit uns auf, ein Exposé schicken wir gerne per E-Mail
Ihre Traum-Immobilie noch nicht gefunden?
Besuchen Sie diese Seiten!







