3-ZIMMER-ERDGESCHOSSWOHNUNG IN OMIŠ MIT UNVERBAUBARER LAGE IN 1. REIHE AM MEER

Strandnahes Wohnen in Omiš
Der Neubau in Omiš bietet die perfekte Lage für Strandliebhaber und Wassersport-Begeisterte. In nur wenigen Schritten erreichen Sie das türkisblaue Wasser der Adriaküste und können den unvergleichlichen Panoramablick auf das Meer genießen. Die Wohnung zeichnet sich durch ihre ausgezeichnete Anbindung an öffentliche Verkehrsmittel aus und alle wichtigen Einrichtungen befinden sich in unmittelbarer Nähe. Die bezaubernde Stadt Omiš in der Umgebung bietet zahlreiche Freizeitmöglichkeiten, Restaurants und Einkaufsmöglichkeiten.
Das im Erdgeschoss gelegene Apartment ist nach Südwesten ausgerichtet und befindet sich in einem Gebäude, das sich über 5 Etagen erstreckt. Geplant ist eine luxuriöse Ausstattung mit einem Aufzug, Sicherheitstüren und Klimaanlage. Die Fertigstellung ist für den Herbst 2025 geplant, was eine großartige Gelegenheit für zukünftige Eigentümer darstellt, von modernem Wohnkomfort zu profitieren. Es besteht die Möglichkeit, einen Garagenstellplatz mit Abstellraum zum Preis von 30.000 € zu erwerben. Bietet zusätzlichen Komfort und Sicherheit für Fahrzeuge und zusätzlichen Stauraum.
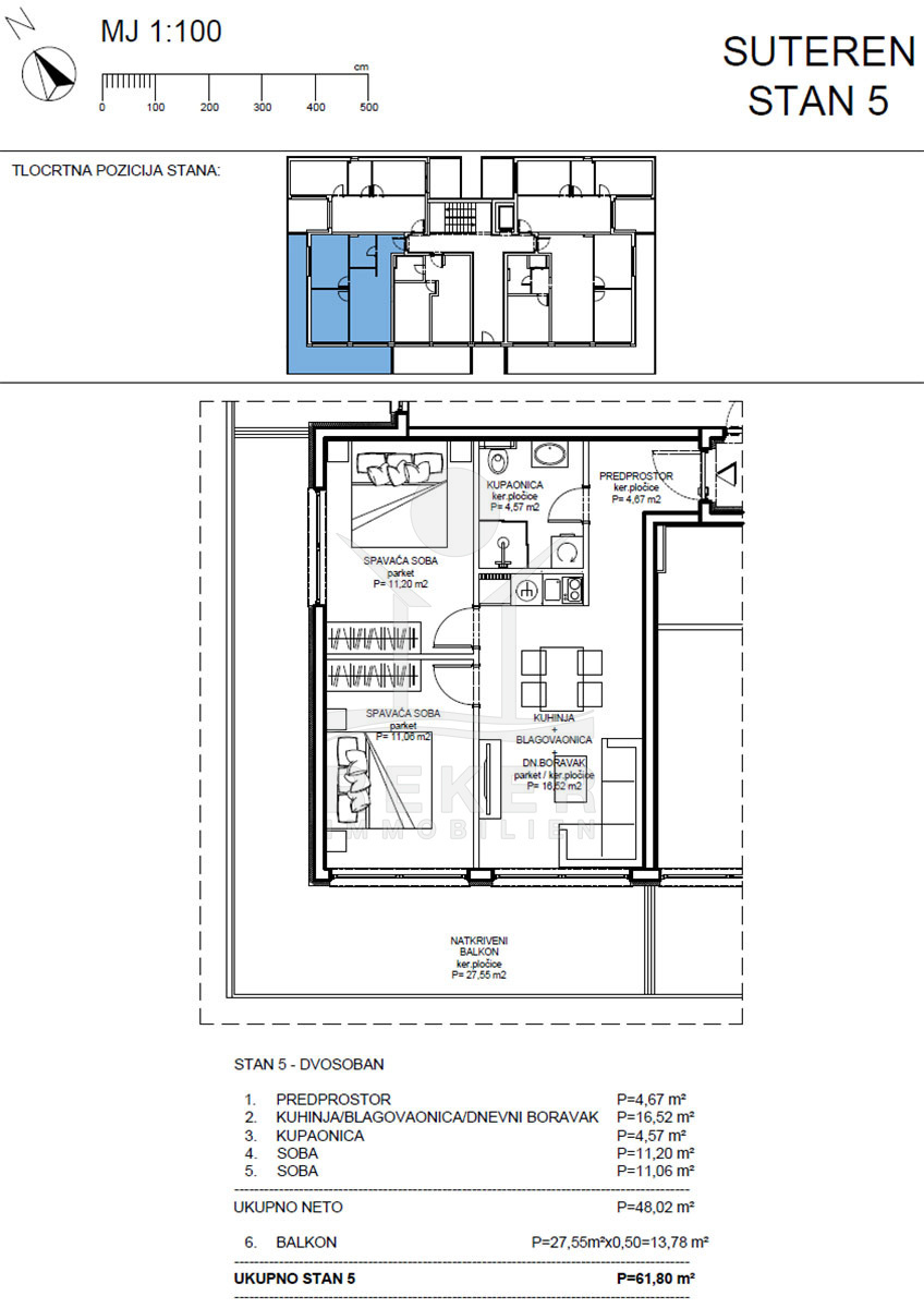
Die 62 m² große Wohnung besticht durch einen offenen Wohn-, Ess- und Küchenbereich, der ein modernes und großzügiges Raumgefühl vermittelt. Zwei Schlafzimmer und ein Badezimmer ergänzen das Interieur. Darüber hinaus lädt der 28 m² große Balkon zu entspannten Stunden im Freien ein, perfekt für ein Stück Natur im schönen Umfeld.




Das Adriatische Meer
- Meerentfernung: 20 m
- Aussicht: unverbaubarer Meerblick
- Direkt in der 1. Reihe am Meer
Die Immobilie
- Erdgeschosswohnung in Omiš, Dalmatien-Split
- Baujahr: 2024
- Zustand: Erstbezug
- Wohnfläche: 62 m²
Ausstattung
- Anzahl Zimmer: 3
- Anzahl Schlafzimmer: 2
- Anzahl Badezimmer: 1
- Heizung: Klimaanlage
- Personenaufzug
- Sicherheit: Sicherheitstür
Die Erdgeschosswohnung erwartet Sie in Omiš!
- Ort: Omiš (Stadt)
- Einwohnerzahl: 14.936 (2011)
- Region: Dalmatien-Split
- Autobahnentfernung: ca. 20 km *
- Nächster Flughafen: Split / ca. 41 km *

Immobiliendaten
- Objektart: Wohnung
- Objekttyp: Erdgeschosswohnung
- Baujahr: 2024
- ID: 6420
- Kaufpreis: 247.200 €
- Provision: 3,75 % inkl. MwSt. in Kroatien
- Wohnfläche: 62 m²
- Anzahl Zimmer: 3
- Anzahl Schlafzimmer: 2
- Anzahl Badezimmer: 1
- Land: Kroatien
- Region: Dalmatien-Split
- Ort: Omiš
- Meerentfernung: 20 m
Haben Sie Interesse die schöne Erdgeschosswohnung zu besitzen?
Nehmen Sie gerne Kontakt mit mir auf!
Ich bin Heiner Reker, Gründer und
Geschäftsführer von Reker Immobilien d.o.o. Ich begleite Sie bei Ihrer aufregenden Reise in die Welt der Immobilien in Kroatien.
Gerne organisiere ich persönlich mit meinen qualifizierten Partnern jeden Schritt bei Ihrem rechtssicheren und stressfreien Immobilienkauf in Kroatien.
Füllen Sie das Formular aus und ich melde mich gerne zum gewünschten Zeitpunkt bei Ihnen.
Bis bald

Exposé mitnehmen?
Laden Sie unser PDF-Exposé herunter und Sie haben die wichtigste Objektdaten & Bilder immer zur Hand
Exposé mitnehmen?
Nehmen Sie Kontakt mit uns auf, ein Exposé schicken wir gerne per E-Mail
Ihre Traum-Immobilie noch nicht gefunden?
Besuchen Sie diese Seiten!