2-ZIMMER-ERDGESCHOSSWOHNUNG-NEUBAUPROJEKT IN OMIŠ MIT UNVERBAUBAREM MEERBLICK
Neue Wohnung in Omiš mit Panoramablick
Der Neubau im liegt nur 20 Meter vom Meer entfernt und bietet einen sensationellen Panoramablick auf die türkisblaue Adria. Die ausgezeichnete Anbindung an öffentliche Verkehrsmittel ermöglicht es Ihnen, alle wichtigen Einrichtungen in unmittelbarer Nähe zu erreichen. Diese Lage ist ideal für Strandliebhaber und Wassersport-Begeisterte, die die Nähe zum klaren, türkisfarbenen Wasser schätzen werden. Die bezaubernde Stadt Omiš in der Umgebung bietet zahlreiche Freizeitmöglichkeiten, Restaurants und Einkaufsmöglichkeiten. Die Wohnung bildet die perfekte Basis, um das mediterrane Lebensgefühl in vollen Zügen zu genießen.
Die luxuriöse Neubauwohnung im Erdgeschoss besticht durch zeitgemäße Baumerkmale und Annehmlichkeiten. Das Gebäude selbst erstreckt sich über 5 Etagen und bietet ein Höchstmaß an Sicherheit und Komfort, darunter einen Aufzug, Sicherheitstüren und eine Klimaanlage. Der geplante Fertigstellungstermin liegt im Herbst 2025. Zusätzlich besteht die Möglichkeit, einen Garagenstellplatz mit Abstellraum zum Preis von 30.000 € zu erwerben, um die Parkmöglichkeit zu optimieren.
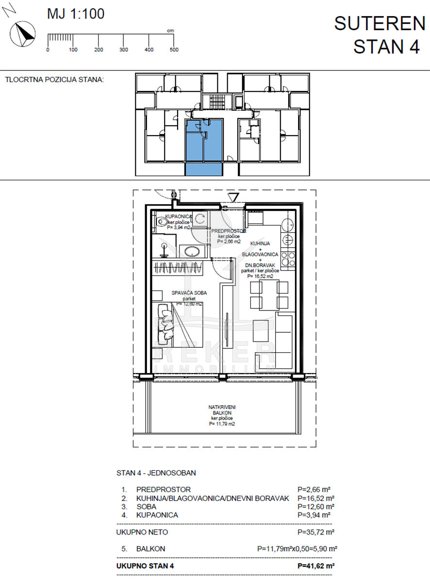
Die kompakte Wohnung umfasst 42 m² Wohnfläche und besticht durch einen offenen Wohn-, Ess- und Küchenbereich, ein Schlafzimmer, ein Badezimmer und einen großzügigen Balkon mit 12 m² Fläche. Ideal für ein modernes und komfortables Wohnen auf kleiner Fläche.




Das Adriatische Meer
- Meerentfernung: 20 m
- Aussicht: unverbaubarer Meerblick
- Direkt in der 1. Reihe am Meer
Die Immobilie
- Erdgeschosswohnung in Omiš, Dalmatien-Split
- Baujahr: 2024
- Zustand: Erstbezug
- Wohnfläche: 42 m²
Ausstattung
- Anzahl Zimmer: 2
- Anzahl Schlafzimmer: 1
- Anzahl Badezimmer: 1
- Heizung: Klimaanlage
- Personenaufzug
- Sicherheit: Sicherheitstür
Die Erdgeschosswohnung erwartet Sie in Omiš!
- Ort: Omiš (Stadt)
- Einwohnerzahl: 14.936 (2011)
- Region: Dalmatien-Split
- Autobahnentfernung: ca. 20 km *
- Nächster Flughafen: Split / ca. 41 km *
Immobiliendaten
- Objektart: Wohnung
- Objekttyp: Erdgeschosswohnung
- Baujahr: 2024
- ID: 6419
- Kaufpreis: 187.290 €
- Provision: 3,75 % inkl. MwSt. in Kroatien
- Wohnfläche: 42 m²
- Anzahl Zimmer: 2
- Anzahl Schlafzimmer: 1
- Anzahl Badezimmer: 1
- Land: Kroatien
- Region: Dalmatien-Split
- Ort: Omiš
- Meerentfernung: 20 m
Haben Sie Interesse die schöne Erdgeschosswohnung zu besitzen?
Nehmen Sie gerne Kontakt mit mir auf!
Ich bin Heiner Reker, Gründer und
Geschäftsführer von Reker Immobilien d.o.o. Ich begleite Sie bei Ihrer aufregenden Reise in die Welt der Immobilien in Kroatien.
Gerne organisiere ich persönlich mit meinen qualifizierten Partnern jeden Schritt bei Ihrem rechtssicheren und stressfreien Immobilienkauf in Kroatien.
Füllen Sie das Formular aus und ich melde mich gerne zum gewünschten Zeitpunkt bei Ihnen.
Bis bald
Exposé mitnehmen?
Laden Sie unser PDF-Exposé herunter und Sie haben die wichtigste Objektdaten & Bilder immer zur Hand
Exposé mitnehmen?
Nehmen Sie Kontakt mit uns auf, ein Exposé schicken wir gerne per E-Mail
Ihre Traum-Immobilie noch nicht gefunden?
Besuchen Sie diese Seiten!
