4-ZIMMER-NEUBAUWOHNUNG IM ERDGESCHOSS IN 1. REIHE AM MEER IN OMIŠ

Ganz nah am türkisblauen Wasser in Omiš
Die Wohnung im Erdgeschoss ist nur 20 Meter vom Meer entfernt und bietet einen unvergleichlichen Panoramablick auf die türkisblaue Adria. Dank der ausgezeichneten Anbindung an öffentliche Verkehrsmittel haben Sie alle wichtigen Einrichtungen in unmittelbarer Nähe. Die Lage ist ideal sowohl für Strandliebhaber als auch für Wassersport-Begeisterte. Die bezaubernde Stadt Omiš bietet zahlreiche Freizeitmöglichkeiten, Restaurants und Einkaufsmöglichkeiten. Diese Wohnung bildet die perfekte Basis, um das mediterrane Lebensgefühl in vollen Zügen zu genießen.
Der Neubau befindet sich im Erdgeschoss mit einer begehrten Südostausrichtung. Das Apartment ist Teil eines modernen fünfstöckigen Gebäudes und verfügt über luxuriöse Bauausstattung wie Aufzug, Sicherheitstüren und Klimaanlage. Die voraussichtliche Fertigstellung ist für Herbst 2025 geplant. Optional kann ein Garagenstellplatz mit Abstellraum zum Preis von 30.000 € erworben werden, was für zusätzlichen Komfort und Sicherheit sorgt.
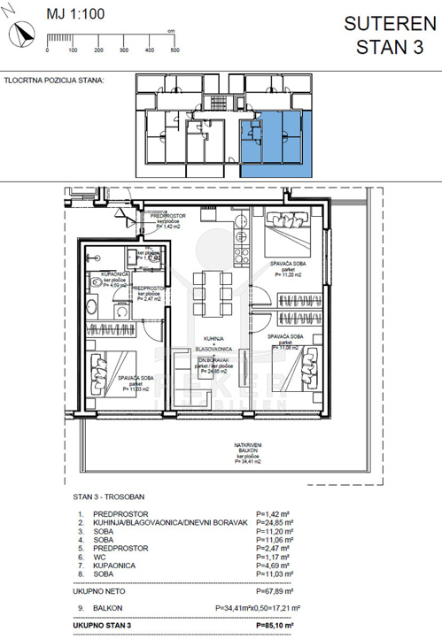
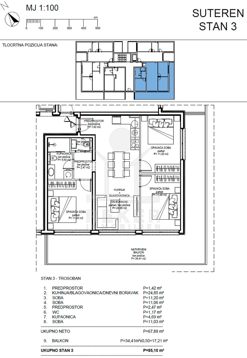
Das großzügige Erdgeschoss umfasst 85 m² und bietet Platz für 3 Schlafzimmer, einen offenen Wohn-, Ess- und Küchenbereich, ein Badezimmer, ein separates WC, einen praktischen Abstellraum sowie eine einladende Terrasse mit 35 m². Diese Wohnung ist darauf ausgelegt, Ihnen ein komfortables und geräumiges Zuhause zu bieten.




Das Adriatische Meer
- Meerentfernung: 20 m
- Aussicht: unverbaubarer Meerblick
- Direkt in der 1. Reihe am Meer
Die Immobilie
- Erdgeschosswohnung in Omiš, Dalmatien-Split
- Baujahr: 2024
- Zustand: Erstbezug
- Wohnfläche: 85 m²
Ausstattung
- Anzahl Zimmer: 4
- Anzahl Schlafzimmer: 3
- Anzahl Badezimmer: 1
- Heizung: Klimaanlage
- Personenaufzug
- Sicherheit: Sicherheitstür
Die Erdgeschosswohnung erwartet Sie in Omiš!
- Ort: Omiš (Stadt)
- Einwohnerzahl: 14.936 (2011)
- Region: Dalmatien-Split
- Autobahnentfernung: ca. 20 km *
- Nächster Flughafen: Split / ca. 41 km *

Immobiliendaten
- Objektart: Wohnung
- Objekttyp: Erdgeschosswohnung
- Baujahr: 2024
- ID: 6418
- Kaufpreis: 340.400 €
- Provision: 3,75 % inkl. MwSt. in Kroatien
- Wohnfläche: 85 m²
- Anzahl Zimmer: 4
- Anzahl Schlafzimmer: 3
- Anzahl Badezimmer: 1
- Land: Kroatien
- Region: Dalmatien-Split
- Ort: Omiš
- Meerentfernung: 20 m
Haben Sie Interesse die schöne Erdgeschosswohnung zu besitzen?
Nehmen Sie gerne Kontakt mit mir auf!
Ich bin Heiner Reker, Gründer und
Geschäftsführer von Reker Immobilien d.o.o. Ich begleite Sie bei Ihrer aufregenden Reise in die Welt der Immobilien in Kroatien.
Gerne organisiere ich persönlich mit meinen qualifizierten Partnern jeden Schritt bei Ihrem rechtssicheren und stressfreien Immobilienkauf in Kroatien.
Füllen Sie das Formular aus und ich melde mich gerne zum gewünschten Zeitpunkt bei Ihnen.
Bis bald

Exposé mitnehmen?
Laden Sie unser PDF-Exposé herunter und Sie haben die wichtigste Objektdaten & Bilder immer zur Hand
Exposé mitnehmen?
Nehmen Sie Kontakt mit uns auf, ein Exposé schicken wir gerne per E-Mail
Ihre Traum-Immobilie noch nicht gefunden?
Besuchen Sie diese Seiten!