3-ZIMMER-NEUBAUWOHNUNG IM 2. STOCK MIT HOCHWERTIGER BAUWEISE UND MEERBLICK IN NOVALJA

Moderne Neubauwohnung nahe kristallklarem Meer auf Pag
Die Neubauwohnung befindet sich in Novalja auf der Insel Pag, nur 200 Meter vom berühmten Kiesstrand und dem einladenden Meer entfernt. Mit Restaurants in Laufnähe und Einkaufsmöglichkeiten in Reichweite bietet die Lage ein ideales Umfeld. Das Zentrum von Novalja ist bequem zu erreichen, wo Sie das pulsierende Leben der Stadt erleben können. Die Wohnung bietet nicht nur modernen Komfort, sondern auch die Möglichkeit, die Schönheit der Insel Pag in vollen Zügen zu genießen.
Neubaugebäude mit Premiumausstattung
Das Neubaugebäude beherbergt insgesamt 6 Wohneinheiten und wird voraussichtlich im Juli 2024 fertiggestellt. Bei Bau und Einrichtung werden ausschließlich hochwertigste Materialien namhafter Hersteller verwendet, um höchsten Wohnkomfort zu gewährleisten. Die PVC-Zimmerei mit 7 Kammern, 3-fach verglaste Fenster mit Moskitonetzen, hochwertige Innenschreinerei sowie Fußbodenheizung und Samsung-Klimaanlage in allen Räumen sind nur einige der Luxusmerkmale, die dieses Gebäude auszeichnen. Mit zwei Stellplätzen, die über einen Anschluss zum Laden von Elektro- oder Hybridfahrzeugen verfügen, ist dieses moderne Neubauwohnprojekt auf die Zukunft ausgerichtet.
Kompakte Gemütlichkeit in zentraler Lage
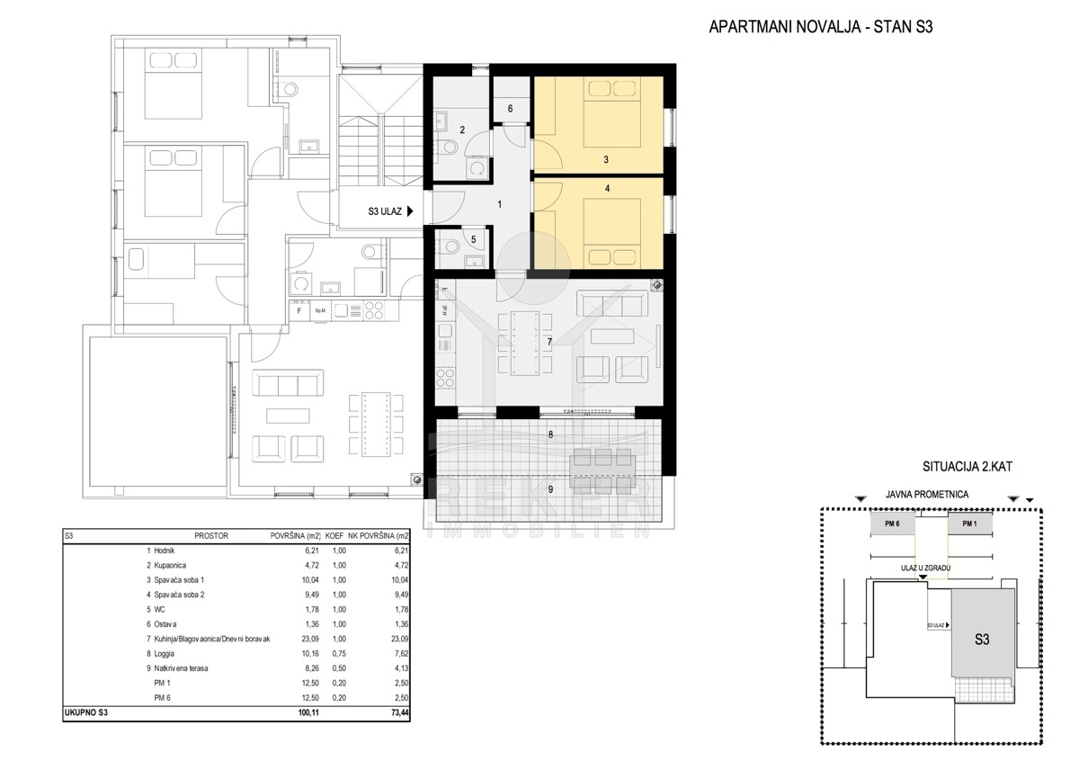
Die 73 m² große Wohnung bietet alles, was Sie für ein komfortables Zuhause benötigen. Sie besteht aus einer Küche, einem Esszimmer, einem Wohnzimmer, einem Badezimmer, einem separaten WC, zwei Schlafzimmern und einer praktischen Speisekammer. Mit ihrer kompakten Größe und funktionalen Aufteilung ist sie ideal für Singles, Paare oder kleine Familien, die auf der Suche nach gemütlicher Wohnatmosphäre sind.
Die Etagenwohnung erwartet Sie in Novalja!
- Ort: Novalja (Stadt)
- Einwohnerzahl: 3.663 (2011)
- Region: Dalmatien-Zadar
- Insel: Pag
- Autobahnentfernung: ca. 67 km *
- Nächster Flughafen: Zadar / ca. 98 km *

Immobiliendaten
- Objektart: Wohnung
- Objekttyp: Etagenwohnung
- Baujahr: 2024
- ID: 6692
- Kaufpreis: 257.040 €
- Provision: 3,75 % inkl. MwSt. in Kroatien
- Wohnfläche: 73 m²
- Anzahl Zimmer: 3
- Anzahl Schlafzimmer: 2
- Anzahl Badezimmer: 1
- Land: Kroatien
- Region: Dalmatien-Zadar
- Ort: Novalja
- Meerentfernung: 200 m
- Ortsmitte: 2 km
Haben Sie Interesse die schöne Etagenwohnung zu besitzen?
Nehmen Sie gerne Kontakt mit mir auf!
Ich bin Heiner Reker, Gründer und
Geschäftsführer von Reker Immobilien d.o.o. Ich begleite Sie bei Ihrer aufregenden Reise in die Welt der Immobilien in Kroatien.
Gerne organisiere ich persönlich mit meinen qualifizierten Partnern jeden Schritt bei Ihrem rechtssicheren und stressfreien Immobilienkauf in Kroatien.
Füllen Sie das Formular aus und ich melde mich gerne zum gewünschten Zeitpunkt bei Ihnen.
Bis bald

Exposé mitnehmen?
Laden Sie unser PDF-Exposé herunter und Sie haben die wichtigste Objektdaten & Bilder immer zur Hand
Exposé mitnehmen?
Nehmen Sie Kontakt mit uns auf, ein Exposé schicken wir gerne per E-Mail
Ihre Traum-Immobilie noch nicht gefunden?
Besuchen Sie diese Seiten!