GENIESSEN SIE JEDEN TAG DIE SONNE UND DEN STRAND: LUXUSWOHNUNG IM 1. STOCK AUF KRK
Neubau Luxuswohnung auf Krk
Die Neubauwohnung liegt auf der wunderschönen Insel Krk, die mit ihrer reichen Geschichte, kulturellen Schätzen und malerischen Badebuchten begeistert. Die Wohnung besticht nicht nur durch ihre hochwertige Ausstattung, sondern auch durch ihre erstklassige Lage. Das Meer erreichen Sie in nur wenigen Schritten, während wichtige Einrichtungen, Restaurants und Geschäfte ebenfalls in der Nähe sind. Das Zentrum der Insel ist nur 900 Meter entfernt und bietet alle Annehmlichkeiten des Insellebens. Die Insel Krk ist leicht mit dem Auto über die Brücke Krk zu erreichen, oder auch über den Flughafen Rijeka, der nur wenige Kilometer von der Wohnung entfernt liegt und an viele europäische Flughäfen angebunden ist. Tauchen Sie ein in das mediterrane Flair und erleben Sie erholsame Tage in dieser luxuriösen Wohnung auf der Insel Krk.
Die Wohnung im 1. Stock eines Neubaus aus dem Jahr 2024 besticht durch hochwertige Bauweise und Ausstattung. Mit insgesamt 4 Wohneinheiten strahlt das Apartment pure Eleganz aus und bietet dank Klimaanlage höchsten Komfort. Die erstklassige Lage rundet das Gesamtpaket perfekt ab. Mit 2 Stellplätzen steht auch die Parkplatzsituation im Einklang mit dem luxuriösen Standard dieser exquisiten Wohnung.
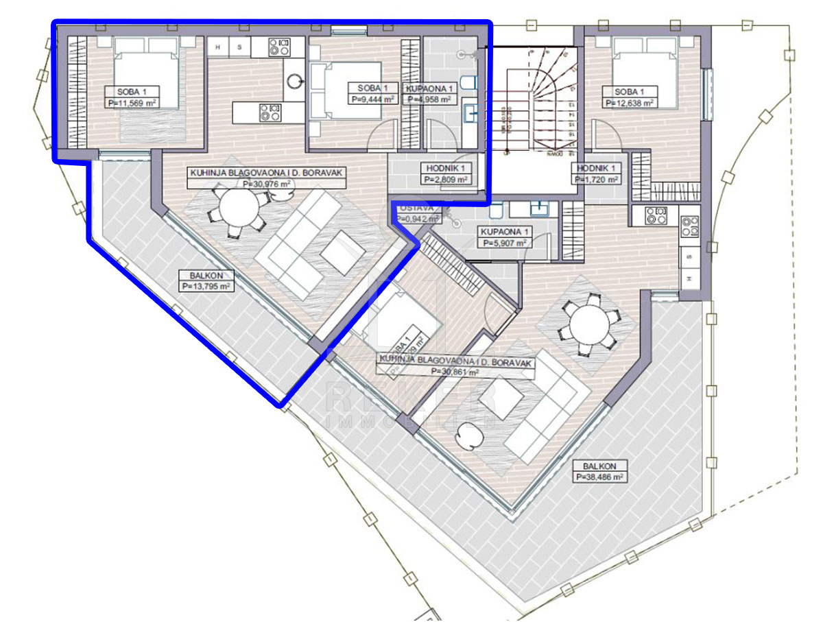
Die 60 m² Immobilie empfängt Sie mit einem einladenden Eingangsbereich, der nahtlos in einen offenen Wohn-, Ess- und Küchenbereich übergeht. Ein Schlafzimmer und ein Badezimmer vervollständigen das Interieur. Der 14 m² große Balkon lädt dazu ein, den herrlichen Ausblick auf die Umgebung und das Meer zu genießen - perfekt für entspannte Stunden im Freien.
Die Etagenwohnung erwartet Sie in Krk!
Die Stadt Krk ist die bedeutendste Stadt und mit ca. 3700 Einwohnern auch die größte Stadt auf der Insel. Sie ist Hafenstadt und Kurort und liegt nur ca. 25 km von der Brücke entfernt.
- Ort: Krk (Stadt)
- Einwohnerzahl: 6243 (2011)
- Region: Kvarner-Bucht
- Insel: Krk
- Autobahnentfernung: ca. 30 km *
- Nächster Flughafen: Rijeka / ca. 26 km *
Immobiliendaten
- Objektart: Wohnung
- Objekttyp: Etagenwohnung
- Baujahr: 2024
- ID: 7169
- Kaufpreis: 455.000 €
- Provision: 3,75 % inkl. MwSt. in Kroatien
- Wohnfläche: 60 m²
- Anzahl Zimmer: 3
- Anzahl Schlafzimmer: 2
- Anzahl Badezimmer: 1
- Land: Kroatien
- Region: Kvarner-Bucht
- Ort: Krk
- Lage: Stadtteil
- Meerentfernung: 400 m
Haben Sie Interesse die schöne Etagenwohnung zu besitzen?
Nehmen Sie gerne Kontakt mit mir auf!
Ich bin Heiner Reker, Gründer und
Geschäftsführer von Reker Immobilien d.o.o. Ich begleite Sie bei Ihrer aufregenden Reise in die Welt der Immobilien in Kroatien.
Gerne organisiere ich persönlich mit meinen qualifizierten Partnern jeden Schritt bei Ihrem rechtssicheren und stressfreien Immobilienkauf in Kroatien.
Füllen Sie das Formular aus und ich melde mich gerne zum gewünschten Zeitpunkt bei Ihnen.
Bis bald
Exposé mitnehmen?
Laden Sie unser PDF-Exposé herunter und Sie haben die wichtigste Objektdaten & Bilder immer zur Hand
Exposé mitnehmen?
Nehmen Sie Kontakt mit uns auf, ein Exposé schicken wir gerne per E-Mail
Ihre Traum-Immobilie noch nicht gefunden?
Besuchen Sie diese Seiten!





