WOHNKOMFORT IN DRAMLJE: WOHNUNG ÜBER GESAMTE ETAGE MIT MEERBLICK-TERRASSE
Lage & Außenbereich
In Dramlje, an der Kvarner Riviera, nur 300 Meter vom Meer und der Promenade entfernt, entsteht eine moderne Neubauwohnung. Sie erstreckt sich über die gesamte zweite Etage eines neuen Gebäudes in ruhiger Lage. Ein privater Stellplatz im Garten der Anlage gehört ebenfalls dazu.
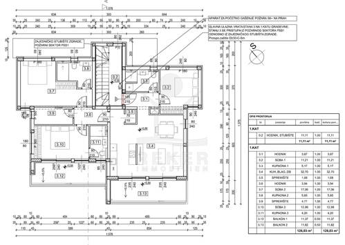
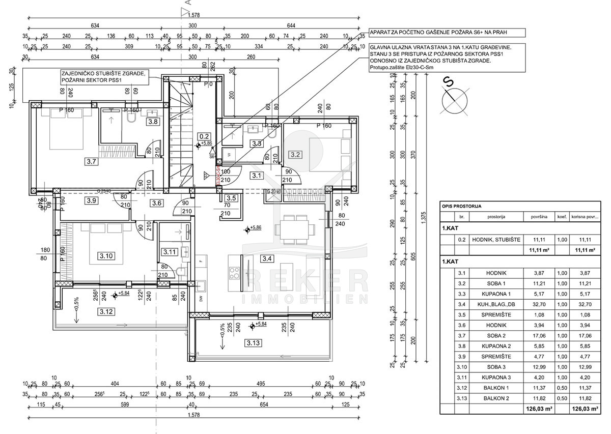
Die beiden überdachten Terrassen in Südlage sind ein echtes Highlight. Eine ist direkt mit dem Wohnzimmer verbunden, die andere mit dem Schlafzimmer. So entsteht zusätzlicher Raum im Freien für Mahlzeiten, Entspannung und Sonne. Das Gebäude entsteht in hochwertiger Bauweise. Käufer können während der Bauphase Materialien nach ihren Vorstellungen auswählen. Mit Energieklasse A+ ist effiziente Nutzung garantiert. Der Kaufpreis beträgt 3.500 €/m², die Fertigstellung ist für Sommer 2025 geplant.
Innenraum & Interieur
Die Wohnung bietet 126 m² Fläche, davon 102,84 m² Innenbereich. Der Grundriss eignet sich bestens für Familien. Ein Vorraum, ein offener Wohn- und Essbereich mit Küche, drei Schlafzimmer, zwei davon mit eigenem Bad, sowie ein weiteres Badezimmer bilden die Aufteilung. Ergänzt wird alles durch praktische Abstellräume. Klimaanlage, zentrale Klima- und Ventilationsanlage, Internet, Sat-TV und Interfon gehören zur Ausstattung.
Die Etagenwohnung erwartet Sie in Dramalj!
- Ort: Dramalj (Dorf)
- Einwohnerzahl: 1.485 (2011)
- Region: Kvarner-Bucht
- Autobahnentfernung: ca. 2 km *
- Nächster Flughafen: Rijeka / ca. 16 km *
Immobiliendaten
- Objektart: Wohnung
- Objekttyp: Etagenwohnung
- Baujahr: 2025
- ID: 9300
- Kaufpreis: 475.000 €
- Provision: 3,75 % inkl. MwSt. in Kroatien
- Wohnfläche: 126 m²
- Anzahl Zimmer: 4
- Anzahl Schlafzimmer: 3
- Anzahl Badezimmer: 3
- Land: Kroatien
- Region: Kvarner-Bucht
- Ort: Dramalj
- Meerentfernung: 300 m
Haben Sie Interesse die schöne Etagenwohnung zu besitzen?
Nehmen Sie gerne Kontakt mit mir auf!
Ich bin Heiner Reker, Gründer und
Geschäftsführer von Reker Immobilien d.o.o. Ich begleite Sie bei Ihrer aufregenden Reise in die Welt der Immobilien in Kroatien.
Gerne organisiere ich persönlich mit meinen qualifizierten Partnern jeden Schritt bei Ihrem rechtssicheren und stressfreien Immobilienkauf in Kroatien.
Füllen Sie das Formular aus und ich melde mich gerne zum gewünschten Zeitpunkt bei Ihnen.
Bis bald
Exposé mitnehmen?
Laden Sie unser PDF-Exposé herunter und Sie haben die wichtigste Objektdaten & Bilder immer zur Hand
Exposé mitnehmen?
Nehmen Sie Kontakt mit uns auf, ein Exposé schicken wir gerne per E-Mail
Ihre Traum-Immobilie noch nicht gefunden?
Besuchen Sie diese Seiten!




















