123 M² NEUBAU-PENTHOUSE IN DRAMLJE: PANORAMA-MEERBLICK, GESAMTE ETAGE, ZWEI TERRASSEN
Lage & Außenbereich
In Dramlje, nur wenige Schritte vom Meer entfernt, wartet ein Penthouse, das die gesamte dritte Etage eines modernen Neubaus umfasst. Hier genießen Sie Privatsphäre und Komfort. Ein eigener Stellplatz im Garten gehört ebenfalls dazu.
Der Außenbereich überzeugt mit zwei großzügigen, überdachten Terrassen in Südlage. Von hier schweift Ihr Blick über das Meer. Morgens Sonne beim Frühstück, abends Ruhe beim Ausklang des Tages. Eine Terrasse grenzt direkt ans Wohnzimmer, die andere an ein Schlafzimmer.
Innenraum & Interieur
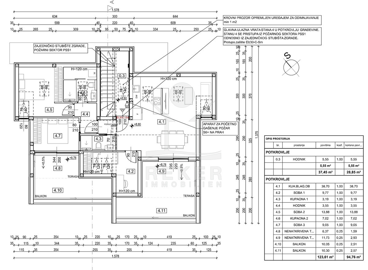
Das Innere bietet 123,61 m² Gesamtfläche, davon 85,16 m² Wohnbereich. Offenes Wohnzimmer mit Küche und Essbereich, drei Schlafzimmer, zwei Bäder. Eines der Schlafzimmer verfügt über ein eigenes Bad. Große Glasfronten öffnen die Räume zum Meer und schaffen eine helle, einladende Atmosphäre.
Der Bau erfolgt mit hochwertigen Materialien, die Sie während der Bauphase auswählen können. Moderne Ausstattung ist selbstverständlich: zentrale Klima- und Lüftungsanlage, Interfon, Sat-TV und Internet. Energieklasse A+ und solide Bauweise garantieren langfristigen Wert. Fertigstellung: Sommer 2025.
Das Penthouse erwartet Sie in Dramalj!
- Ort: Dramalj (Dorf)
- Einwohnerzahl: 1.485 (2011)
- Region: Kvarner-Bucht
- Autobahnentfernung: ca. 2 km *
- Nächster Flughafen: Rijeka / ca. 16 km *
Immobiliendaten
- Objektart: Wohnung
- Objekttyp: Penthouse
- Baujahr: 2025
- ID: 9301
- Kaufpreis: 374.000 €
- Provision: 3,75 % inkl. MwSt. in Kroatien
- Wohnfläche: 123 m²
- Anzahl Zimmer: 4
- Anzahl Schlafzimmer: 3
- Anzahl Badezimmer: 2
- Land: Kroatien
- Region: Kvarner-Bucht
- Ort: Dramalj
- Meerentfernung: 300 m
Haben Sie Interesse das schöne Penthouse zu besitzen?
Nehmen Sie gerne Kontakt mit mir auf!
Ich bin Heiner Reker, Gründer und
Geschäftsführer von Reker Immobilien d.o.o. Ich begleite Sie bei Ihrer aufregenden Reise in die Welt der Immobilien in Kroatien.
Gerne organisiere ich persönlich mit meinen qualifizierten Partnern jeden Schritt bei Ihrem rechtssicheren und stressfreien Immobilienkauf in Kroatien.
Füllen Sie das Formular aus und ich melde mich gerne zum gewünschten Zeitpunkt bei Ihnen.
Bis bald
Exposé mitnehmen?
Laden Sie unser PDF-Exposé herunter und Sie haben die wichtigste Objektdaten & Bilder immer zur Hand
Exposé mitnehmen?
Nehmen Sie Kontakt mit uns auf, ein Exposé schicken wir gerne per E-Mail
Ihre Traum-Immobilie noch nicht gefunden?
Besuchen Sie diese Seiten!




















