KOMFORT & AUSSICHT VEREINT: NEUBAUWOHNUNG MIT SÜDTERRASSE UND GARAGE
Lage & Außenbereich
Auf der Insel Čiovo, nicht weit von Trogir, steht dieses moderne Wohnhaus, umgeben von neuen Wohnhäusern. Eine typische dalmatinische Mischung: grüne Landschaft, Meernähe und alles Wichtige für den Alltag gleich um die Ecke. Die Hanglage bringt zwei Vorteile: Privatsphäre und einen weiten Blick bis zur Küste. Weitblick inklusive. Strände, Spazierwege und Freizeitmöglichkeiten? Erreichen Sie alles bequem in ein paar Minuten.
Das Gebäude umfasst 15 Wohnungen und wird mit einem Aufzug ausgestattet. Jede Wohnung bekommt einen eigenen Garagenplatz im Untergeschoss, natürlich im Preis enthalten. Sie parken bequem in der hauseigenen Garage. Kein Parkplatzsuchen im Sommer.
Das Haus entsteht bis 2026 in solider Bauweise. Es bietet modernen Wohnkomfort und ist so geplant, dass Sie langfristig Energie sparen. Die Umgebung? Ruhig, gepflegt und geprägt von neuen Wohnhäusern.
Innenraum & Interieur
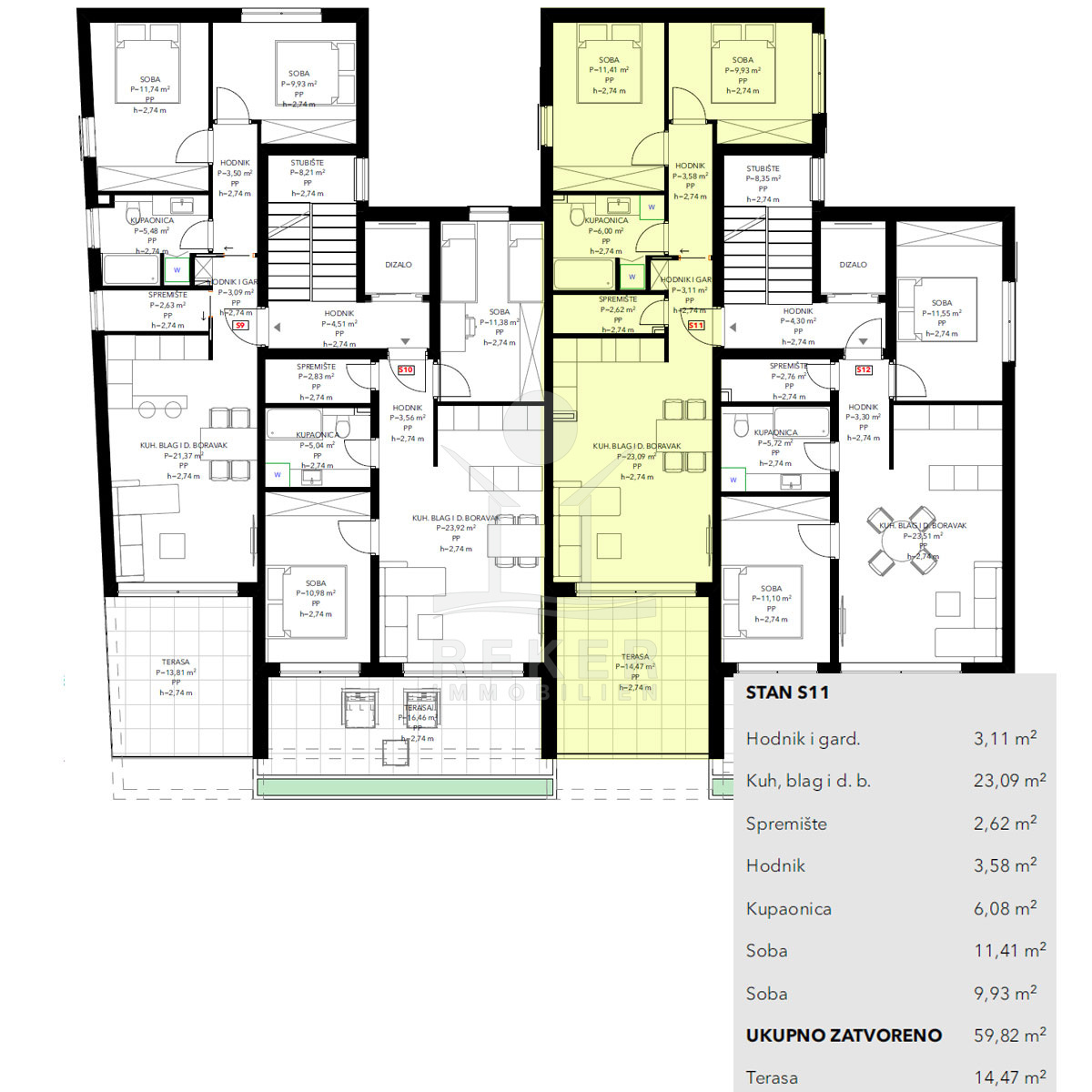
Die Wohnung ist 59,82 m² groß. Sie bietet einen offenen Wohn- und Essbereich mit Küche, zwei Schlafzimmer, ein Bad, einen Abstellraum sowie Flur und Eingangsbereich … praktisch und gut aufgeteilt. Alle Zimmer haben eine Klimaanlage. Im Bad sorgt eine Fußbodenheizung für angenehme Wärme an kühlen Tagen. Das Beste: Sie wählen Fliesen, Türen und Badeinrichtung selbst – damit alles zu Ihrem Stil passt.
Und draußen? Da wartet eine 14,47 m² große Südterrasse. Viel Platz für draußen. Ob Lounge oder Esstisch – hier haben Sie Sonne und Weitblick. Blick aufs Meer? Ist dabei. Sogar bis zu den vorgelagerten Inseln.
Die Etagenwohnung erwartet Sie in Trogir!
- Ort: Trogir (Stadt)
- Einwohnerzahl: 13.260 (2011)
- Region: Dalmatien-Split
- Autobahnentfernung: ca. 18 km *
- Nächster Flughafen: Split / ca. 5 km *
Immobiliendaten
- Objektart: Wohnung
- Objekttyp: Etagenwohnung
- Baujahr: 2026
- ID: 9363
- Kaufpreis: 267.000 €
- Provision: 3,75 % inkl. MwSt. in Kroatien
- Wohnfläche: 74 m²
- Anzahl Zimmer: 3
- Anzahl Schlafzimmer: 2
- Anzahl Badezimmer: 1
- Land: Kroatien
- Region: Dalmatien-Split
- Ort: Trogir
- Meerentfernung: 400 m
Haben Sie Interesse die schöne Etagenwohnung zu besitzen?
Nehmen Sie gerne Kontakt mit mir auf!
Ich bin Heiner Reker, Gründer und
Geschäftsführer von Reker Immobilien d.o.o. Ich begleite Sie bei Ihrer aufregenden Reise in die Welt der Immobilien in Kroatien.
Gerne organisiere ich persönlich mit meinen qualifizierten Partnern jeden Schritt bei Ihrem rechtssicheren und stressfreien Immobilienkauf in Kroatien.
Füllen Sie das Formular aus und ich melde mich gerne zum gewünschten Zeitpunkt bei Ihnen.
Bis bald
Exposé mitnehmen?
Laden Sie unser PDF-Exposé herunter und Sie haben die wichtigste Objektdaten & Bilder immer zur Hand
Exposé mitnehmen?
Nehmen Sie Kontakt mit uns auf, ein Exposé schicken wir gerne per E-Mail
Ihre Traum-Immobilie noch nicht gefunden?
Besuchen Sie diese Seiten!













