TOPLAGE IM 2. OG: MEERBLICK-WOHNUNG MIT ZWEI SCHLAFZIMMERN & SPA
Lage & Außenbereich
Nur rund einen Kilometer vom Meer entfernt und mitten im Grünen: In Bilice, nahe Vodice, steht dieses moderne Apartmenthaus. Die Lage? Ruhig. Kein Durchgangsverkehr, kein Lärm. Dafür viel Natur. Und trotzdem alles gut erreichbar. Das Haus liegt in einem kleinen Resort – ideal, wenn Sie Erholung suchen und trotzdem flexibel bleiben möchten. Das Gebäude hat fünf Wohnungen. Zwei im Erdgeschoss, je eine im ersten und zweiten Stock. Dazu eine Maisonette über zwei Etagen. Die Architektur ist klar, zeitgemäß, praktisch. Gebaut für das ganze Jahr.
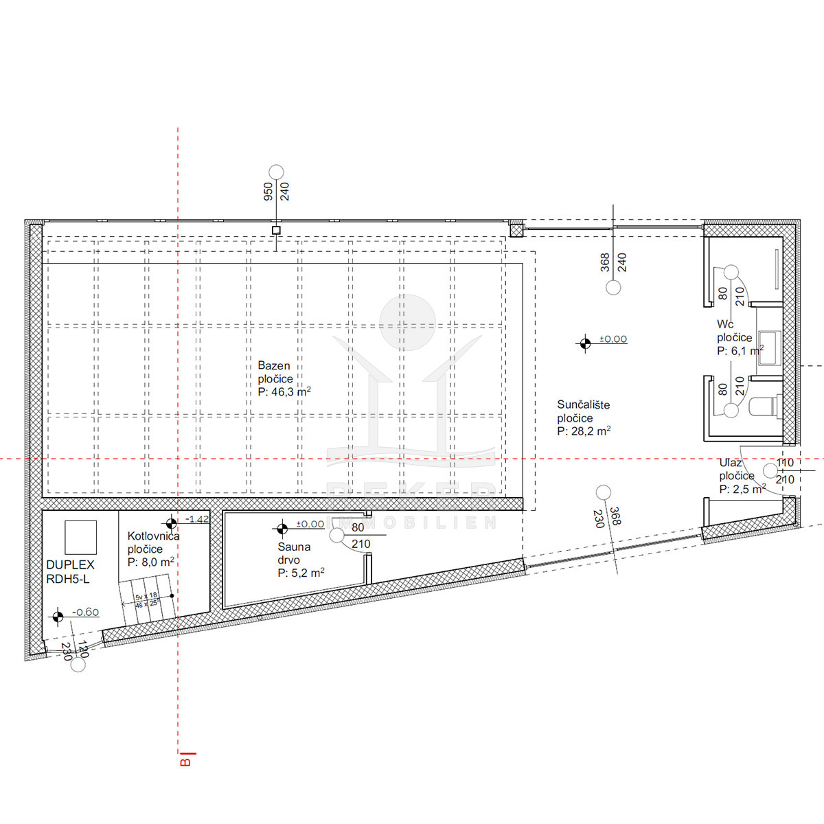
Draußen gibt’s einiges zu entdecken: Ein großer Indoor-Pool, der sich im Sommer öffnen lässt. Zwei Saunen. Ein Fitnessraum. Und wer mag, spielt eine Runde Tennis oder Tischtennis. Für jede Wohnung gibt’s einen Parkplatz – und zwei Ladestationen für E-Autos stehen auch bereit.
Innenraum & Interieur
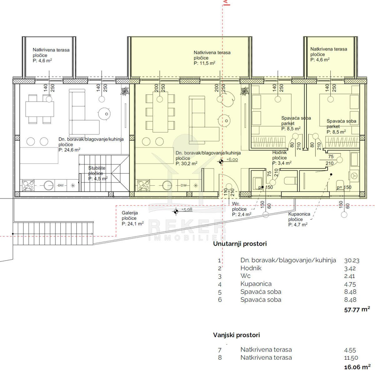
Diese Wohnung im obersten Stock bietet nicht nur viel Platz, sondern auch den besten Ausblick im ganzen Haus. Von beiden Balkonen blicken Sie direkt aufs Meer – geschützt, ruhig, erhöht. Auf 58 m² finden Sie zwei Schlafzimmer, ein großes Wohn-/Esszimmer mit Küche, ein Bad sowie ein separates WC. Der Wohnbereich ist großzügig, hell und modern. Die Küche fügt sich unauffällig ein, die Fläche ist optimal nutzbar. Beide Schlafzimmer sind identisch geschnitten – mit 8,5 m² gut möblierbar und mit Parkett ausgestattet. Das Bad ist gefliest und mit Fußbodenheizung versehen, genau wie der Rest der Wohnung. Ein zweites WC sorgt für mehr Komfort, gerade bei mehreren Personen. Die zwei Balkone sind echte Rückzugsorte: geschützt, überdacht, mit Meerblick – ideal für jedes Wetter. Hier wohnen Sie ruhig, energieeffizient und mit Zugang zu allen Vorteilen des Resorts: Indoor-Pool, Sauna, Fitness, Tennisplatz.
Immobiliendaten
- Objektart: Wohnung
- Objekttyp: Etagenwohnung
- Baujahr: 2026
- ID: 8958
- Kaufpreis: 349.000 €
- Provision: 3,75 % inkl. MwSt. in Kroatien
- Wohnfläche: 73 m²
- Anzahl Zimmer: 3
- Anzahl Schlafzimmer: 2
- Anzahl Badezimmer: 1
- Land: Kroatien
- Region: Dalmatien-Sibenik
- Ort: Bilice
- Lage: Siedlung
- Meerentfernung: 1 km
- Ortsmitte: 2 km
Haben Sie Interesse die schöne Etagenwohnung zu besitzen?
Nehmen Sie gerne Kontakt mit mir auf!
Ich bin Heiner Reker, Gründer und
Geschäftsführer von Reker Immobilien d.o.o. Ich begleite Sie bei Ihrer aufregenden Reise in die Welt der Immobilien in Kroatien.
Gerne organisiere ich persönlich mit meinen qualifizierten Partnern jeden Schritt bei Ihrem rechtssicheren und stressfreien Immobilienkauf in Kroatien.
Füllen Sie das Formular aus und ich melde mich gerne zum gewünschten Zeitpunkt bei Ihnen.
Bis bald
Exposé mitnehmen?
Laden Sie unser PDF-Exposé herunter und Sie haben die wichtigste Objektdaten & Bilder immer zur Hand
Exposé mitnehmen?
Nehmen Sie Kontakt mit uns auf, ein Exposé schicken wir gerne per E-Mail
Ihre Traum-Immobilie noch nicht gefunden?
Besuchen Sie diese Seiten!









