IHR EIGENER RÜCKZUGSORT AM STRAND: 3-ZIMMER-WOHNUNG IM 1. STOCK AUF DER INSEL KRK IN BAŠKA
Charmante Neubauwohnung auf der Insel in Baška
Die Neubauwohnung bietet nicht nur modernen Komfort, sondern auch eine erstklassige Lage auf der malerischen Insel Krk, in dem beliebten Ferienort Baška. Nur eine kurze Autofahrt trennt Sie vom Meer, wo Sie an einem der schönsten 2 km langen Feinkieselstrände Europas entspannen können. Eingebettet in eine grüne Vegetation und sanfte Hügellandschaft, bietet die Umgebung eine idyllische Kulisse für erholsame Spaziergänge oder Fahrradtouren. Die Uferpromenade von Baška mit ihren vielen Geschäften, Restaurants und Bars lädt zu geselligen Stunden ein und das abwechslungsreiche Kultur- und Unterhaltungsprogramm sorgt für belebte Sommerabende. Aktivurlauber finden hier ein wahres Paradies an Wassersportmöglichkeiten wie auch zahlreiche Rad- und Wanderwege in der Umgebung. Hier können Sie das mediterrane Flair an einem reizvollen Ort voll und ganz genießen.
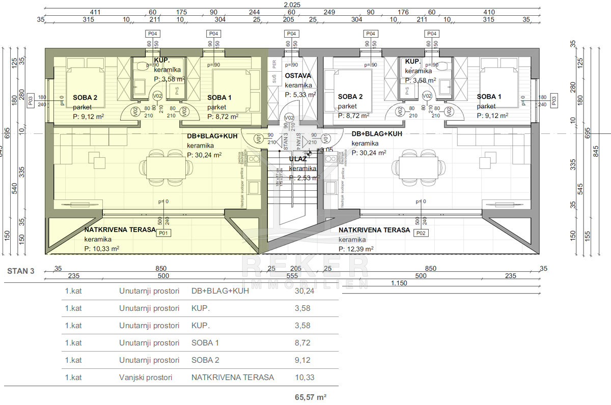
Inmitten einer sanften Hügellandschaft erhebt sich dieser moderne Neubau mit insgesamt 4 Wohnungen auf 2 Etagen. Die 3-Zimmer-Neubauwohnung im 1. Stock beeindruckt mit hochwertigen Materialien wie keramischen Bodenbelägen, modernen Sanitäranlagen und energieeffizienter Raumklimatisierung. Mit 62 m² Wohnfläche bietet die Wohnung viel Raum und ist mit eingebauter PVC-Zimmerei, elektrischen Jalousien und einbruchsicheren Türen ausgestattet. Zwei Parkplätze sorgen für zusätzlichen Komfort und Bequemlichkeit.
Moderne Wohnung mit Klimaanlage
Die Wohnung wird mit einer Klimaanlage ausgestattet, um auch an heißen Tagen für angenehme Temperaturen zu sorgen. Die Innenraumaufteilung umfasst einen Flur, ein offenes Konzept mit Wohn-, Ess- und Küchenbereich, zwei Schlafzimmer sowie ein Badezimmer. Vom Wohnbereich aus gelangt man auf den 10,33 m² großen Balkon, der zusätzlichen Raum im Freien bietet.
Die Etagenwohnung erwartet Sie in Baška!
- Ort: Baška (Dorf)
- Einwohnerzahl: 1.728 (2011)
- Region: Kvarner-Bucht
- Insel: Krk
- Autobahnentfernung: ca. 47 km *
- Nächster Flughafen: Rijeka / ca. 44 km *
Immobiliendaten
- Objektart: Wohnung
- Objekttyp: Etagenwohnung
- Baujahr: 2024
- ID: 7471
- Kaufpreis: 260.000 €
- Provision: 3,75 % inkl. MwSt. in Kroatien
- Wohnfläche: 62 m²
- Anzahl Zimmer: 3
- Anzahl Schlafzimmer: 2
- Anzahl Badezimmer: 1
- Land: Kroatien
- Region: Kvarner-Bucht
- Ort: Baška
- Lage: Ortslage
- Meerentfernung: 4 km
Haben Sie Interesse die schöne Etagenwohnung zu besitzen?
Nehmen Sie gerne Kontakt mit mir auf!
Ich bin Heiner Reker, Gründer und
Geschäftsführer von Reker Immobilien d.o.o. Ich begleite Sie bei Ihrer aufregenden Reise in die Welt der Immobilien in Kroatien.
Gerne organisiere ich persönlich mit meinen qualifizierten Partnern jeden Schritt bei Ihrem rechtssicheren und stressfreien Immobilienkauf in Kroatien.
Füllen Sie das Formular aus und ich melde mich gerne zum gewünschten Zeitpunkt bei Ihnen.
Bis bald
Exposé mitnehmen?
Laden Sie unser PDF-Exposé herunter und Sie haben die wichtigste Objektdaten & Bilder immer zur Hand
Exposé mitnehmen?
Nehmen Sie Kontakt mit uns auf, ein Exposé schicken wir gerne per E-Mail
Ihre Traum-Immobilie noch nicht gefunden?
Besuchen Sie diese Seiten!













