ZEITLOS ELEGANT: NEUBAUVILLA MIT SWIMMINGPOOL, OUTDOORKÜCHE UND MEERBLICK AUF KRK
Neue Villa auf der inspirierenden Insel Krk
Die schöne Neubauvilla befindet sich in einer ruhigen Umgebung auf der faszinierenden Insel Krk. Das Meer erreichen Sie in nur wenigen Autominuten (4 km) und können die malerische Küstenlandschaft genießen. Die Villa liegt in der Nähe des charmanten Ortes Vrbnik, der auf einem 49 m hohen Felsen über dem Meer thront und für sein einzigartiges Flair und die inspirierende Bauweise bekannt ist.
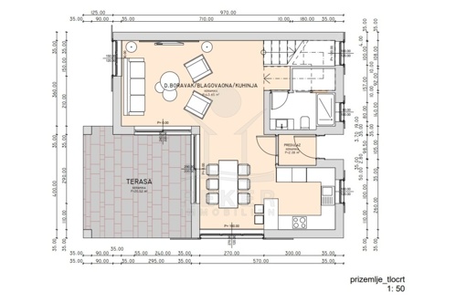
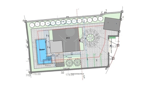
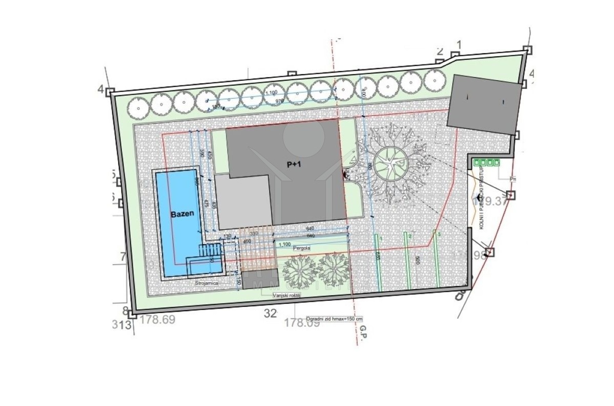
Die Villa liegt auf einem 550 m² großen Grundstück mit einer gepflegten Gartenfläche, die mit schönen Pflastersteinen versehen ist. Ein älterer Olivenbaum vor dem Haus verleiht dem Anwesen einen besonderen Charme. Die Steinmauerumrandung bietet nicht nur Privatsphäre, sondern auch eine ästhetische Umrahmung des Grundstücks. Das zweistöckige Gebäude mit 137 m² Wohnfläche wurde 2024 erbaut und besticht durch hochwertige Bauweise und Ausstattung, darunter Fußbodenheizung, Klimaanlage und ein Wirtschaftsgebäude.
Die großzügige überdachte Terrasse (20,52 m²) dieser Villa ist der perfekte Ort, um das Leben im Freien zu genießen. Mit einem Swimmingpool und einer voll ausgestatteten Außenküche lädt sie zum Verweilen und Entspannen ein. Genießen Sie den Sommer, indem Sie kulinarische Köstlichkeiten zubereiten oder sich im erfrischenden Pool erfrischen. Diese Terrasse bietet Ihnen die Möglichkeit, das Leben unter freiem Himmel in vollen Zügen zu genießen. Zudem stehen zwei Parkplätze zur Verfügung, die Ihren Komfort abrunden.
Einladendes, helles Ambiente mit Poolblick
Die schöne Villa beeindruckt mit einem offenen und hellen Erdgeschoss, das Wohn-, Ess- und Küchenbereich nahtlos vereint. Die große Schiebetüren bieten Zugang zur überdachten Terrasse und zum Poolbereich im Freien. Hier befindet sich auch ein WC für Gäste.
Großzügiger Schlafbereich im Obergeschoss
Eine interne Treppe führt Sie in das Obergeschoss, wo drei Schlafzimmer, zwei Badezimmer und eine weitere Terrasse auf Sie warten. Genießen Sie ausreichend Platz für Sie und Ihre Gäste in dieser einladenden Wohlfühloase.
Die Villa erwartet Sie in Vrbnik!
- Ort: Vrbnik (Dorf)
- Region: Kvarner-Bucht
- Insel: Krk
- Autobahnentfernung: ca. 28 km *
- Nächster Flughafen: Rijeka / ca. 25 km *
Immobiliendaten
- Objektart: Haus
- Objekttyp: Villa
- Baujahr: 2024
- ID: 7159
- Kaufpreis: 750.000 €
- Provision: 3,75 % inkl. MwSt. in Kroatien
- Grundstücksgröße: 634 m²
- Wohnfläche: 137 m²
- Anzahl Zimmer: 4
- Anzahl Schlafzimmer: 3
- Anzahl Badezimmer: 2
- Land: Kroatien
- Region: Kvarner-Bucht
- Ort: Vrbnik
- Lage: Ortslage
- Meerentfernung: 4 km
Haben Sie Interesse die schöne Villa zu besitzen?
Nehmen Sie gerne Kontakt mit mir auf!
Ich bin Heiner Reker, Gründer und
Geschäftsführer von Reker Immobilien d.o.o. Ich begleite Sie bei Ihrer aufregenden Reise in die Welt der Immobilien in Kroatien.
Gerne organisiere ich persönlich mit meinen qualifizierten Partnern jeden Schritt bei Ihrem rechtssicheren und stressfreien Immobilienkauf in Kroatien.
Füllen Sie das Formular aus und ich melde mich gerne zum gewünschten Zeitpunkt bei Ihnen.
Bis bald
Exposé mitnehmen?
Laden Sie unser PDF-Exposé herunter und Sie haben die wichtigste Objektdaten & Bilder immer zur Hand
Exposé mitnehmen?
Nehmen Sie Kontakt mit uns auf, ein Exposé schicken wir gerne per E-Mail
Ihre Traum-Immobilie noch nicht gefunden?
Besuchen Sie diese Seiten!





















