LUXURIÖSE NEUBAUVILLA MIT POOL & MODERNSTER ARCHITEKTUR IN VODICE
Neubauvilla in ruhiger Lage & schöner Umgebung
Die Neubauvilla in Vodice bietet Ihnen die perfekte Balance zwischen ruhigem Wohngefühl und nahem Zugang zu lebendigen Freizeitaktivitäten. Mit einer Entfernung von nur 1000 m zum Meer sind Sie schnell am Strand, wo Sie die Sonne und das glitzernde Wasser der Adria genießen können. Das Zentrum von Vodice mit seiner malerischen Altstadt und der lebhaften Uferpromenade ist nur 800 m entfernt und lädt zum Bummeln in Geschäften, Cafés und Restaurants ein. Die Lage ist ideal für Familien, da Kindergarten, Schule und Spielplätze in unmittelbarer Nähe vorhanden sind. Die Umgebung bietet zudem zahlreiche Möglichkeiten zur aktiven Freizeitgestaltung mit Parks, Fitness- und Sportzentren. Entlang der fast 4 km langen Uferpromenade können Sie entspannte Spaziergänge unternehmen oder die bezaubernden Nachbarorte, wie Tribunj, erkunden. Die atemberaubenden Wasserfälle des Nationalparks Krka (ca. 15 km entfernt) sowie die Möglichkeit, Ausflüge zu den Nationalpark Kornati zu unternehmen, machen diese Villa zu einem idealen Ausgangspunkt, um die Schönheit von Mitteldalmatien zu entdecken.
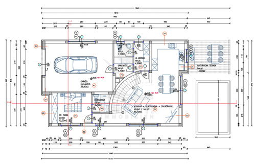
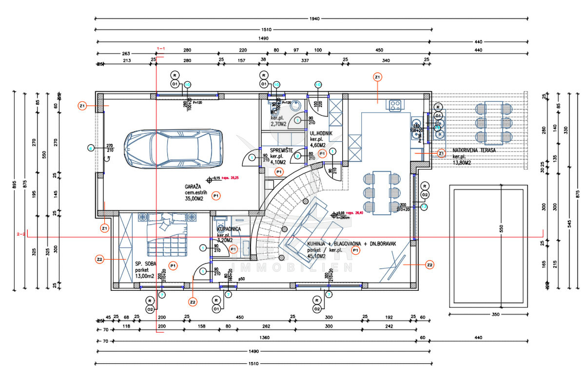
Die Neubauvilla befindet sich auf einem großzügigen Grundstück von 497 m² und erstreckt sich über zwei Etagen mit einer Wohnfläche von 176 m². Das Bauprojekt hat bereits begonnen und die Fertigstellung ist für das Frühjahr 2025 geplant. Das Gebäude richtet sich nach hohen Baustandards und bietet zeitgemäße Ausstattungsmerkmale wie hochwertige PVC-Zimmerei mit Schiebewänden, elektrische Jalousien, Moskitonetze, klimatisierte Räume sowie eine Fußbodenheizung im gesamten Haus. Der zukünftige Eigentümer hat zudem die Möglichkeit, Innenräume und Außenästhetik ganz nach eigenen Wünschen zu gestalten. Die 35 m² große Garage sowie zusätzliche Außenparkplätze bieten Platz für insgesamt 3 Fahrzeuge und runden das Gesamtpaket ab dieser moderner Neubauvilla.
Eine der Besonderheiten dieser Villa ist die weitgehend überdachte Terrasse von 16 m², die hervorragenden Platz für gemütliche Stunden im Freien bietet. Ergänzt wird das Außenangebot durch einen 19 m² großen Pool und eine praktische Außendusche, ideal für erfrischende Sprünge an heißen Sommertagen. Die Terrasse lädt zu entspannten Momenten mit Familie und Freunden ein und stellt einen perfekten Übergang zwischen Innen- und Außenbereich dar.
Im Erdgeschoss der Villa erwartet Sie eine offene Küche, die nahtlos in das Esszimmer übergeht und ein einladendes Wohnzimmer beherbergt. Ein Schlafzimmer, ein Badezimmer, ein WC und ein praktischer Abstellraum runden das Erdgeschoss ab. Besonders beeindruckend ist das Wohnzimmer, das mit hohen Decken, Rundbögen und dem direkten Zugang zur Terrasse und dem Innenhof mit Swimmingpool eine ganz besondere Atmosphäre schafft.
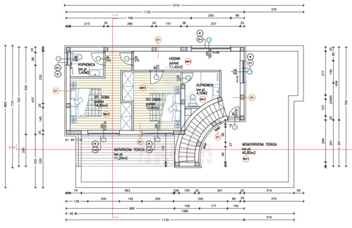
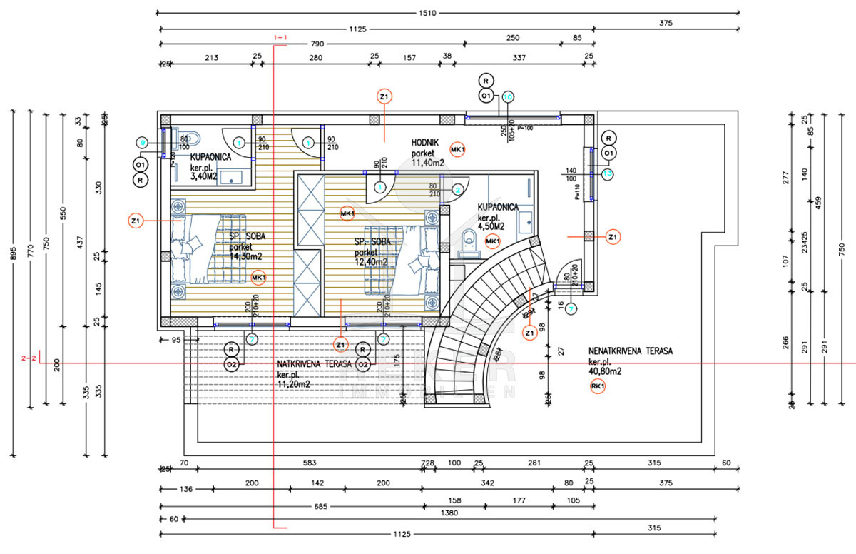
Eine Innentreppe führt Sie in das Obergeschoss, wo 2 helle Schlafzimmer und 2 Badezimmer auf Sie warten. Ein Highlight ist die weitgehend überdachte Terrasse von 11,20 m², ergänzt durch einen großzügigen, nicht überdachten Bereich von 41 m², der sich über die gesamte erste Etage erstreckt und von beiden Schlafzimmern bequem zugänglich ist. Ideal für entspannte Sommerabende und geselliges Beisammensein.




Das Adriatische Meer
- Meerentfernung: 1 km
Die Immobilie
- Villa in Vodice, Dalmatien-Sibenik
- Baujahr: 2025
- Zustand: Erstbezug
- Wohnfläche: 176 m² – Grundstücksgröße: 497 m²
- Etagenzahl: 2
- Überdachte Terrasse
Ausstattung
- Anzahl Zimmer: 4
- Anzahl Schlafzimmer: 3
- Anzahl Badezimmer: 3
- Heizung: Elektro, Fußbodenheizung
- Sicherheit: Sicherheitstür
Die Villa erwartet Sie in Vodice!
- Ort: Vodice (Stadt)
- Einwohnerzahl: 8.875 (2011)
- Region: Dalmatien-Sibenik
- Autobahnentfernung: ca. 16 km *
- Nächster Flughafen: Zadar / ca. 62 km *
Immobiliendaten
- Objektart: Haus
- Objekttyp: Villa
- Baujahr: 2025
- ID: 7731
- Kaufpreis: 690.000 €
- Provision: 3,75 % inkl. MwSt. in Kroatien
- Grundstücksgröße: 497 m²
- Wohnfläche: 176 m²
- Anzahl Zimmer: 4
- Anzahl Schlafzimmer: 3
- Anzahl Badezimmer: 3
- Land: Kroatien
- Region: Dalmatien-Sibenik
- Ort: Vodice
- Lage: Stadtteil
- Meerentfernung: 1 km
- Ortsmitte: 800 m
Haben Sie Interesse die schöne Villa zu besitzen?
Nehmen Sie gerne Kontakt mit mir auf!
Ich bin Heiner Reker, Gründer und
Geschäftsführer von Reker Immobilien d.o.o. Ich begleite Sie bei Ihrer aufregenden Reise in die Welt der Immobilien in Kroatien.
Gerne organisiere ich persönlich mit meinen qualifizierten Partnern jeden Schritt bei Ihrem rechtssicheren und stressfreien Immobilienkauf in Kroatien.
Füllen Sie das Formular aus und ich melde mich gerne zum gewünschten Zeitpunkt bei Ihnen.
Bis bald
Exposé mitnehmen?
Laden Sie unser PDF-Exposé herunter und Sie haben die wichtigste Objektdaten & Bilder immer zur Hand
Exposé mitnehmen?
Nehmen Sie Kontakt mit uns auf, ein Exposé schicken wir gerne per E-Mail
Ihre Traum-Immobilie noch nicht gefunden?
Besuchen Sie diese Seiten!





