523 M² WOHNFLÄCHE AUF DREI ETAGEN: HOCHWERTIGE NEUBAU-VILLA MIT MEERBLICK UND GROSSEM POOL
Lage & Außenbereich
Die Neubauvilla aus dem Jahr 2023 befindet sich in einer ruhigen Wohngegend von Vodice, rund 500 Meter vom Meer entfernt. Sie wohnen abgeschirmt und dennoch nah an Strand und Zentrum. Aus den oberen Etagen reicht der Blick bis zum Meer. Sechs Stellplätze stehen zur Verfügung, zwei in der Garage, vier vor dem Haus. Praktisch bei mehreren Nutzern.
Das 629 m² große Grundstück wirkt gepflegt und offen gestaltet. Mittelpunkt des Außenbereichs ist der 60 m² große Pool (10 × 6 m), vorbereitet für eine Beheizung und damit auch in der Übergangszeit nutzbar. Liegeflächen und eine Außendusche ergänzen diesen Bereich. Der überdachte Grillplatz mit Außenküche und Steingrill schafft Raum für gemeinsame Abende. Direkt daneben ergänzt eine Taverne mit Sommerküche im Untergeschoss den Außenbereich um einen geschützten Aufenthaltsraum.
Innenraum & Interieur
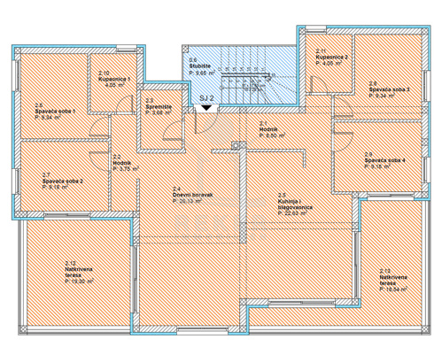
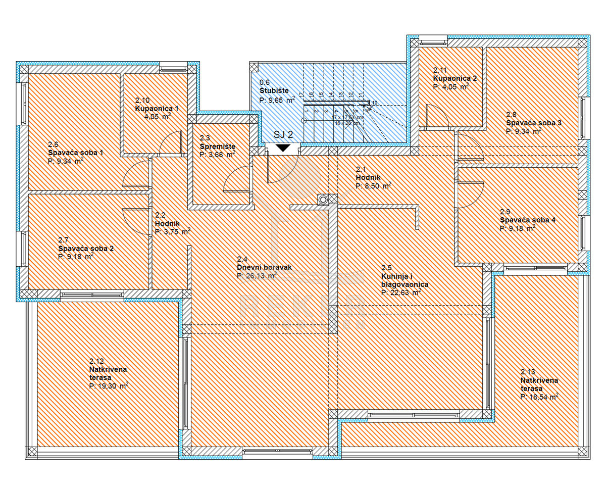
Die Villa verteilt sich auf drei Etagen mit insgesamt 523,17 m² Wohnfläche. Vier separate Wohneinheiten sind über ein gemeinsames Treppenhaus erreichbar. Jede Einheit steht für ein eigenständiges Wohngefühl. Eine sinnvolle Lösung für Familien, Freunde oder eine Nutzung mit Vermietungsanteil.
Im Erdgeschoss befinden sich zwei Wohnungen mit jeweils 134 m². Jede Einheit bietet zwei Schlafzimmer, ein Badezimmer sowie einen offenen Wohn-, Ess- und Küchenbereich. Das 1. Obergeschoss umfasst eine Wohnung mit ebenfalls 134 m². Vier Schlafzimmer, zwei Badezimmer, ein Abstellraum und ein rund 50 m² großer Wohnbereich bieten großzügige Flächen. Zwei überdachte Terrassen öffnen den Blick in Richtung Meer. Im 2. Obergeschoss folgt das Penthouse mit 115 m². Zwei Schlafzimmer, zwei Badezimmer und ein Gäste-WC sorgen für Komfort. Wohnbereich und Schlafzimmer führen direkt auf die große Terrasse. Der Panoramablick auf das Meer prägt diesen Bereich. Alle Terrassen sind nach Süden ausgerichtet. Sonne begleitet Sie hier durch den gesamten Tag.
Zur Ausstattung zählen Fußbodenheizung in allen Räumen, Klimaanlagen, Solarpanele und eine hochwertig-luxuriöse Möblierung in jeder Einheit. Das sorgt für Wohnkomfort und eine effiziente Energienutzung. Klare Architektur, moderne Materialien und flexible Nutzungsmöglichkeiten prägen diese Villa. Sie richtet sich an Käufer mit Platzbedarf ebenso wie an Investoren mit Blick auf nachhaltige Erträge.
Die Villa erwartet Sie in Vodice!
- Ort: Vodice (Stadt)
- Einwohnerzahl: 8.875 (2011)
- Region: Dalmatien-Sibenik
- Autobahnentfernung: ca. 16 km *
- Nächster Flughafen: Zadar / ca. 62 km *
Immobiliendaten
- Objektart: Haus
- Objekttyp: Villa
- Baujahr: 2023
- ID: 9381
- Kaufpreis: 2.400.000 €
- Provision: 3,75 % inkl. MwSt. in Kroatien
- Grundstücksgröße: 629 m²
- Wohnfläche: 523 m²
- Anzahl Zimmer: 14
- Anzahl Schlafzimmer: 10
- Anzahl Badezimmer: 6
- Land: Kroatien
- Region: Dalmatien-Sibenik
- Ort: Vodice
- Meerentfernung: 500 m
Haben Sie Interesse die schöne Villa zu besitzen?
Nehmen Sie gerne Kontakt mit mir auf!
Ich bin Heiner Reker, Gründer und
Geschäftsführer von Reker Immobilien d.o.o. Ich begleite Sie bei Ihrer aufregenden Reise in die Welt der Immobilien in Kroatien.
Gerne organisiere ich persönlich mit meinen qualifizierten Partnern jeden Schritt bei Ihrem rechtssicheren und stressfreien Immobilienkauf in Kroatien.
Füllen Sie das Formular aus und ich melde mich gerne zum gewünschten Zeitpunkt bei Ihnen.
Bis bald
Exposé mitnehmen?
Laden Sie unser PDF-Exposé herunter und Sie haben die wichtigste Objektdaten & Bilder immer zur Hand
Exposé mitnehmen?
Nehmen Sie Kontakt mit uns auf, ein Exposé schicken wir gerne per E-Mail
Ihre Traum-Immobilie noch nicht gefunden?
Besuchen Sie diese Seiten!




























































































































