ROHBAU-VILLA IN VIŽINADA: INDIVIDUELL GESTALTBAR, MIT POOL UND NEBENGEBÄUDE
Lage & Außenbereich
Vižinada, ein malerisches Dorf im Herzen Istriens. Zwischen sanften Hügeln, Olivenhainen und Weinbergen entsteht eine Villa, die moderne Architektur mit traditionellen Details verbindet. Die Umgebung ist ruhig, zugleich gut erreichbar. In nur 15 Minuten sind Sie in Poreč und am Meer, Restaurants und Einkaufsmöglichkeiten befinden sich in der Nähe. Das Grundstück misst 1.038 m², genug Raum für Privatsphäre, Parkflächen und Ihre eigenen Ideen.
Im Außenbereich ist ein 32 m² großer Pool geplant, direkt angrenzend an die überdachte Terrasse. Das weitläufige Grundstück lässt Platz für Garten, Lounge oder Grillbereich. Ein zusätzlicher Pluspunkt ist das separate Nebengebäude mit 35,30 m². Es kann als Wellnessbereich mit Sauna und Whirlpool oder als Gästeapartment genutzt werden.
Innenraum & Interieur
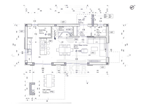
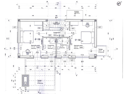
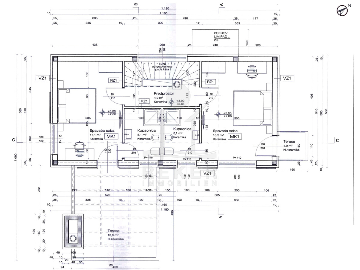
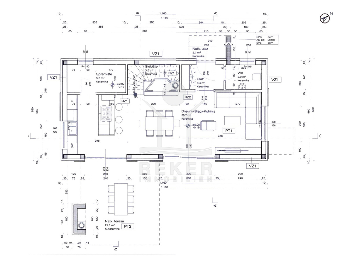
Innen erwartet Sie eine Wohnfläche von 163,50 m². Das offene Konzept verbindet Wohnen, Essen und Kochen zu einem hellen, großzügigen Raum mit Zugang zur Terrasse und zum Pool. Eine Eingangshalle, eine Toilette und ein Abstellraum ergänzen das Erdgeschoss. Im Obergeschoss befinden sich zwei Schlafzimmer, jedes mit eigenem Bad. Vom Hauptschlafzimmer aus öffnet sich eine 18,60 m² große Terrasse mit weitem Blick über die Hügellandschaft Istriens, ein Ort der Ruhe.
Die Villa wird im Rohbau verkauft. So können Sie Ausstattung und Design ganz nach Ihrem Geschmack gestalten. Alle Anschlüsse sind aktiv, die Baugenehmigung liegt vor. Ob als Ferienhaus oder für die Vermietung, dieses Objekt verbindet Ruhe, Stil und hervorragende Lage in einer der schönsten Regionen Istriens.
Die Villa erwartet Sie in Vižinada!
- Ort: Vižinada (Dorf)
- Einwohnerzahl: 279 (2011)
- Region: Istrien
- Autobahnentfernung: ca. 10 km *
- Nächster Flughafen: Pula / ca. 63 km *
Immobiliendaten
- Objektart: Haus
- Objekttyp: Villa
- Baujahr: 2025
- ID: 9392
- Kaufpreis: 440.000 €
- Provision: 3,75 % inkl. MwSt. in Kroatien
- Grundstücksgröße: 1038 m²
- Wohnfläche: 163 m²
- Anzahl Zimmer: 3
- Anzahl Schlafzimmer: 2
- Anzahl Badezimmer: 2
- Land: Kroatien
- Region: Istrien
- Ort: Vižinada
- Meerentfernung: 12 km
Haben Sie Interesse die schöne Villa zu besitzen?
Nehmen Sie gerne Kontakt mit mir auf!
Ich bin Heiner Reker, Gründer und
Geschäftsführer von Reker Immobilien d.o.o. Ich begleite Sie bei Ihrer aufregenden Reise in die Welt der Immobilien in Kroatien.
Gerne organisiere ich persönlich mit meinen qualifizierten Partnern jeden Schritt bei Ihrem rechtssicheren und stressfreien Immobilienkauf in Kroatien.
Füllen Sie das Formular aus und ich melde mich gerne zum gewünschten Zeitpunkt bei Ihnen.
Bis bald
Exposé mitnehmen?
Laden Sie unser PDF-Exposé herunter und Sie haben die wichtigste Objektdaten & Bilder immer zur Hand
Exposé mitnehmen?
Nehmen Sie Kontakt mit uns auf, ein Exposé schicken wir gerne per E-Mail
Ihre Traum-Immobilie noch nicht gefunden?
Besuchen Sie diese Seiten!





















