LUXUS IN DER NATUR: MODERNE VILLA MIT POOL & TECHNIK DER ZUKUNFT

Lage & Außenbereich
Am Rande eines kleinen istrischen Dorfes – nur wenige Fahrminuten vom Ort Višnjan entfernt – erwartet Sie diese moderne Villa mit viel Ruhe und noch mehr Platz. Die Umgebung ist grün, ruhig und absolut privat. Ideal für alle, die dem Lärm entkommen wollen, aber nicht auf Komfort verzichten möchten. Bis zum Ortskern von Višnjan sind es nur 7 Kilometer. Der nächste Strand liegt 20 Minuten entfernt. Direkt am Grundstück stehen mehrere Stellplätze zur Verfügung. Zusätzlich gibt es eine große Garage im Untergeschoss.
Der Garten ist rundum eingefriedet und professionell gestaltet. Naturstein, junge Pflanzen, gepflegte Rasenflächen und Split-Zonen sorgen für mediterrane Stimmung. Im Mittelpunkt steht der 40 m² große Pool mit flacher Relax-Zone. Rund um den Pool gibt es reichlich Platz zum Sonnenbaden oder Grillen. Ein echtes Highlight: die überdachte Sommerküche mit Essbereich, gemauertem Grill und zusätzlichem WC. Dieser Platz macht den Sommer draußen zum Wohnzimmer – vom Frühstück bis spät in die Nacht.
Innenraum & Interieur
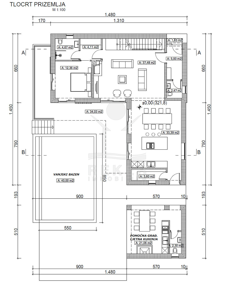
Das Haus verteilt sich auf drei Etagen. Unten im halbversenkten Sockelgeschoss befindet sich die Garage, der Technikbereich und ein Raum mit Billardtisch – vorbereitet auch für Wellness oder Fitness. Über eine elegante Innentreppe geht es ins Erdgeschoss. Dort empfängt Sie ein heller Wohnbereich mit offener Küche und Esszimmer. Die Küche ist modern ausgestattet, mit edlen Oberflächen und Kochinsel. Daneben: ein Gäste-WC und ein Schlafzimmer mit Bad en suite. Von jedem Raum aus geht’s direkt auf die große Terrasse mit Gartenblick.
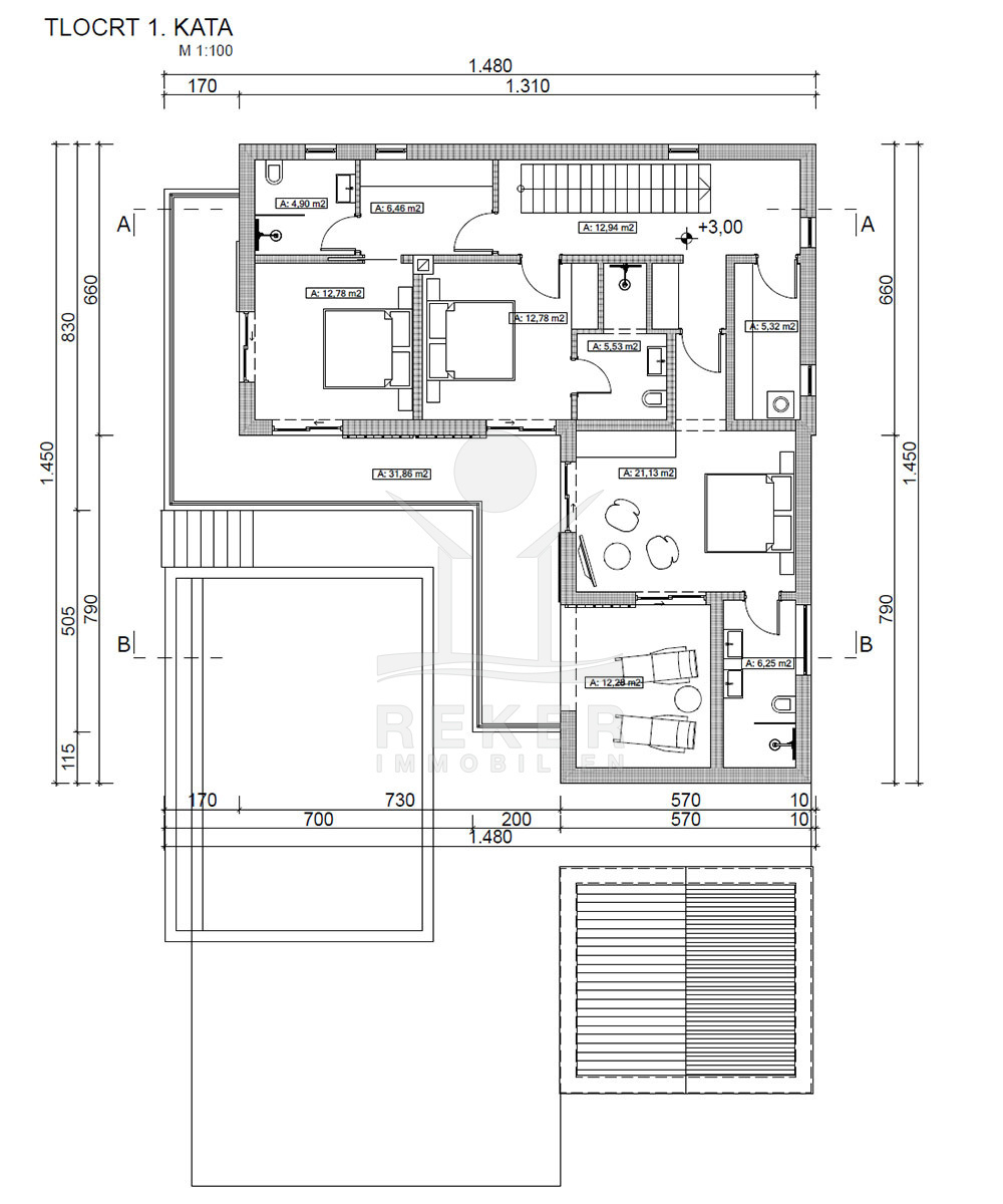
Im Obergeschoss finden Sie drei weitere Schlafzimmer, alle mit eigenem Bad. Jedes Zimmer hat direkten Zugang zum umlaufenden Balkon mit 31 m² Fläche. Ein Zimmer bietet sogar eine eigene Loggia – hier passt bequem ein Whirlpool hinein. Wer also auf der Suche nach Rückzug, Raum und Stil ist: genau hier finden Sie das.
Die Villa erwartet Sie in Višnjan!
- Ort: Višnjan (Stadt)
- Einwohnerzahl: 2.187 (2011)
- Region: Istrien
- Autobahnentfernung: ca. 1 km *
- Nächster Flughafen: Pula / ca. 55 km *

Immobiliendaten
- Objektart: Haus
- Objekttyp: Villa
- Baujahr: 2025
- ID: 8336
- Kaufpreis: 1.187.500 €
- Provision: 3,75 % inkl. MwSt. in Kroatien
- Grundstücksgröße: 974 m²
- Wohnfläche: 377 m²
- Anzahl Zimmer: 5
- Anzahl Schlafzimmer: 4
- Anzahl Badezimmer: 5
- Land: Kroatien
- Region: Istrien
- Ort: Višnjan
- Lage: Siedlung
- Meerentfernung: 20 km
Haben Sie Interesse die schöne Villa zu besitzen?
Nehmen Sie gerne Kontakt mit mir auf!
Ich bin Heiner Reker, Gründer und
Geschäftsführer von Reker Immobilien d.o.o. Ich begleite Sie bei Ihrer aufregenden Reise in die Welt der Immobilien in Kroatien.
Gerne organisiere ich persönlich mit meinen qualifizierten Partnern jeden Schritt bei Ihrem rechtssicheren und stressfreien Immobilienkauf in Kroatien.
Füllen Sie das Formular aus und ich melde mich gerne zum gewünschten Zeitpunkt bei Ihnen.
Bis bald

Exposé mitnehmen?
Laden Sie unser PDF-Exposé herunter und Sie haben die wichtigste Objektdaten & Bilder immer zur Hand
Exposé mitnehmen?
Nehmen Sie Kontakt mit uns auf, ein Exposé schicken wir gerne per E-Mail
Ihre Traum-Immobilie noch nicht gefunden?
Besuchen Sie diese Seiten!