POOL UND KINDERBECKEN: GROSSZÜGIGE FAMILIENVILLA IN TRIBUNJ MIT DREI WOHNEINHEITEN
Lage & Außenbereich
Diese großzügige Villa in Tribunj spricht Käufer an, die Ruhe schätzen und kurze Wege zum Meer genießen möchten. Der Strand Bristak und das Ortszentrum sind jeweils nur etwa 600 m entfernt. Restaurants, Cafés und Einkaufsmöglichkeiten erreichen Sie bequem zu Fuß. So verbindet der Standort entspannte Wohnatmosphäre mit dem Leben eines Küstenortes.
Das rund 900 m² große Grundstück bietet viel Raum im Freien. Mittelpunkt ist der 11 x 5 m große Pool mit separatem Kinderbecken. Die überdachte Terrasse schafft einen geschützten Bereich für Mahlzeiten oder entspannte Stunden draußen. Schnell wird dieser Platz zum Treffpunkt für Familie und Freunde.
Innenraum & Interieur
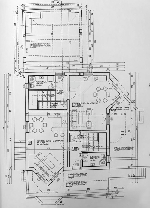
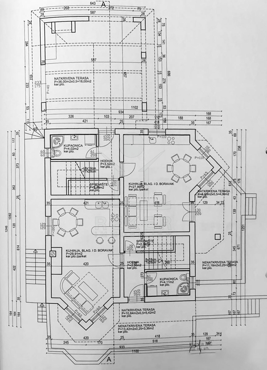
Die Villa verteilt rund 330 m² Wohnfläche auf drei Etagen. Zwei separate Wohnungen und ein Studio im Dachgeschoss eröffnen flexible Nutzungsmöglichkeiten. Auch für mehrere Generationen oder Gäste. Jede Einheit besitzt einen eigenen Kellerraum. Die Immobilie wurde 2012 modernisiert und wird möbliert verkauft. Für Komfort sorgen elektrische Fußbodenheizung in Küche und Wohnzimmer, eine Inverter-Klimaanlage sowie zwei Kamine.
Die erste Wohnung beginnt im Erdgeschoss mit einem großzügigen Eingangsbereich. Von hier gelangen Sie in den offenen Wohn-, Ess- und Küchenbereich. Der Wohnraum umfasst etwa 66 m² und führt direkt auf zwei Terrassen mit zusammen rund 55 m² Fläche. Ein Abstellraum ergänzt diese Ebene. Über die interne Treppe erreichen Sie das Obergeschoss. Dort befinden sich zwei Schlafzimmer, ein Badezimmer und ein Balkon mit etwa 7 m².
Die zweite Wohnung ist ähnlich aufgebaut. Im Erdgeschoss befinden sich ein überdachter Eingang, ein Flur, ein Abstellraum und ein Badezimmer. Der offene Wohn-, Ess- und Küchenbereich mit Kamin schafft eine angenehme Atmosphäre und führt auf eine Terrasse mit rund 24 m². Im Obergeschoss stehen zwei Schlafzimmer, ein weiteres Badezimmer und ein Balkon mit etwa 7 m² zur Verfügung.
Im Dachgeschoss befindet sich ein Studio mit rund 56 m² Wohnfläche. Große Fenster bringen viel Tageslicht in den offenen Wohn-, Ess- und Küchenbereich. Ergänzt wird diese Ebene durch ein Badezimmer und eine Loggia mit Meerblick. Ein ruhiger Platz mit schöner Aussicht.
Die Villa erwartet Sie in Vodice!
- Ort: Vodice (Stadt)
- Einwohnerzahl: 8.875 (2011)
- Region: Dalmatien-Sibenik
- Autobahnentfernung: ca. 16 km *
- Nächster Flughafen: Zadar / ca. 62 km *
Immobiliendaten
- Objektart: Haus
- Objekttyp: Villa
- Baujahr: 2005
- ID: 9675
- Kaufpreis: 980.000 €
- Provision: 3,75 % inkl. MwSt. in Kroatien
- Grundstücksgröße: 900 m²
- Wohnfläche: 330 m²
- Anzahl Zimmer: 7
- Anzahl Schlafzimmer: 4
- Anzahl Badezimmer: 4
- Land: Kroatien
- Region: Dalmatien-Sibenik
- Ort: Vodice
- Meerentfernung: 600 m
- Ortsmitte: 500 m
Haben Sie Interesse die schöne Villa zu besitzen?
Nehmen Sie gerne Kontakt mit mir auf!
Ich bin Heiner Reker, Gründer und
Geschäftsführer von Reker Immobilien d.o.o. Ich begleite Sie bei Ihrer aufregenden Reise in die Welt der Immobilien in Kroatien.
Gerne organisiere ich persönlich mit meinen qualifizierten Partnern jeden Schritt bei Ihrem rechtssicheren und stressfreien Immobilienkauf in Kroatien.
Füllen Sie das Formular aus und ich melde mich gerne zum gewünschten Zeitpunkt bei Ihnen.
Bis bald
Exposé mitnehmen?
Laden Sie unser PDF-Exposé herunter und Sie haben die wichtigste Objektdaten & Bilder immer zur Hand
Exposé mitnehmen?
Nehmen Sie Kontakt mit uns auf, ein Exposé schicken wir gerne per E-Mail
Ihre Traum-Immobilie noch nicht gefunden?
Besuchen Sie diese Seiten!



































































































