RUHE-POOL-RENDITE: GROSSZÜGIGE VILLA MIT VIER APARTMENTS, IDEAL FÜR FAMILIE UND VERMIETUNG
Lage & Außenbereich
In einem ruhigen Dorf nahe Poreč, rund 6 Kilometer vom Meer entfernt, finden Sie dieses gepflegte Haus auf einem 1.089 m² großen Grundstück. Sie genießen eine entspannte Umgebung und erreichen die Küste schnell. Vier Stellplätze direkt am Haus bieten Ihnen zusätzlichen Komfort.
Der Außenbereich lädt direkt zum Verweilen ein. Ein 32 m² großer Swimmingpool bildet den Mittelpunkt. Mehrere Terrassen und ein Grillbereich ergänzen das Angebot. Hier verbringen Sie ungestörte Stunden im Freien. Die Terrassen im Erdgeschoss gehen fließend in den Poolbereich über. Innen und außen greifen angenehm ineinander.
Innenraum & Interieur
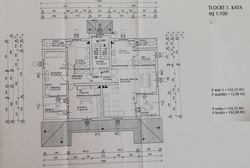
Im Inneren stehen Ihnen 417 m² Wohnfläche zur Verfügung, verteilt auf drei Etagen. Im Keller befinden sich ein Heizraum, ein Abstellraum und eine Taverne mit Kamin, heute als Studio-Apartment genutzt. Praktisch für Gäste oder zusätzliche Nutzung.
Das Erdgeschoss bietet zwei separate Apartments. Jedes verfügt über zwei Schlafzimmer, ein Badezimmer sowie einen Wohn- und Essbereich. Von hier gelangen Sie direkt auf die Terrasse und zum Pool. Im Obergeschoss erstreckt sich ein großzügiges Apartment über die gesamte Etage. Großes Wohnzimmer, Wohnküche, zwei Schlafzimmer, zwei Badezimmer und vier Terrassen bieten viel Raum zur Entfaltung.
Das Haus wird möbliert und vollständig ausgestattet übergeben. Sie können es sofort nutzen. Die technische Ausstattung ist solide und effizient. 24 Photovoltaikmodule, sechs Solarkollektoren für Warmwasser, Fußbodenheizung in der größten Einheit sowie Klimaanlagen und elektrische Heizkörper sorgen für ein angenehmes Wohngefühl.
Die Villa erwartet Sie in Poreč!
Die Stadt ist wegen der guten Lage und des umfangreichen Tourismusangebots mehrfach ausgezeichnet worden. Sie ist eine der bedeutendsten Küstenstädte an der Westküste der Halbinsel Istrien in Kroatien.
- Ort: Poreč (Stadt)
- Einwohnerzahl: 16.696 (2011)
- Region: Istrien
- Autobahnentfernung: ca. 10 km *
- Nächster Flughafen: Pula / ca. 56 km *
Immobiliendaten
- Objektart: Haus
- Objekttyp: Villa
- Baujahr: 2011
- ID: 9696
- Kaufpreis: 670.000 €
- Provision: 3,75 % inkl. MwSt. in Kroatien
- Grundstücksgröße: 1089 m²
- Wohnfläche: 417 m²
- Anzahl Zimmer: 11
- Anzahl Schlafzimmer: 6
- Anzahl Badezimmer: 5
- Land: Kroatien
- Region: Istrien
- Ort: Poreč
- Meerentfernung: 6 km
Haben Sie Interesse die schöne Villa zu besitzen?
Nehmen Sie gerne Kontakt mit mir auf!
Ich bin Heiner Reker, Gründer und
Geschäftsführer von Reker Immobilien d.o.o. Ich begleite Sie bei Ihrer aufregenden Reise in die Welt der Immobilien in Kroatien.
Gerne organisiere ich persönlich mit meinen qualifizierten Partnern jeden Schritt bei Ihrem rechtssicheren und stressfreien Immobilienkauf in Kroatien.
Füllen Sie das Formular aus und ich melde mich gerne zum gewünschten Zeitpunkt bei Ihnen.
Bis bald
Exposé mitnehmen?
Laden Sie unser PDF-Exposé herunter und Sie haben die wichtigste Objektdaten & Bilder immer zur Hand
Exposé mitnehmen?
Nehmen Sie Kontakt mit uns auf, ein Exposé schicken wir gerne per E-Mail
Ihre Traum-Immobilie noch nicht gefunden?
Besuchen Sie diese Seiten!


































