MODERNES DESIGN UND HOHE QUALITÄT: STYLISCHER NEUBAU-LUXUSVILLA IN DER NÄHE VON POREČ
Modernes Design in der Nähe von Poreč
Die schöne Villa befindet sich in einer einzigartigen und begehrten Lage in der Nähe von Poreč. Umgeben von einer natürlichen und grünen Umgebung, bietet sie eine Oase der Ruhe und Privatsphäre. Mit nur 5 km Entfernung zum Zentrum von Poreč können Sie die zahlreichen Restaurants, Geschäfte und Freizeitmöglichkeiten schnell erreichen. Auch das kristallklare Meer liegt nur 4 km entfernt und lädt zum Sonnenbaden und Wassersport ein. Die Villa fügt sich harmonisch in die Landschaft ein und bietet eine bemerkenswerte Aussicht auf die Umgebung. Hier können Sie das mediterrane Lebensgefühl in einer eleganten und stilvollen Umgebung genießen.
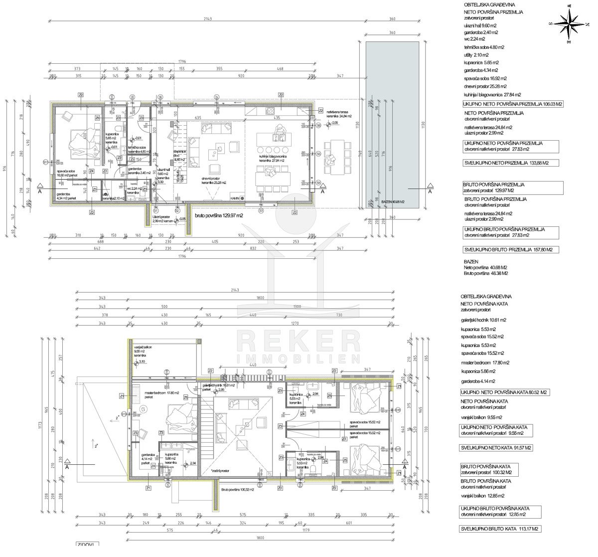
Das Anwesen erstreckt sich auf einem 878 m² großen Grundstück mit einem wunderschön angelegten Garten. Das Gebäude erstreckt sich über 2 Etagen und bietet eine großzügige Wohnfläche von 225 m². Als Neubau, der voraussichtlich im Frühjahr 2024 abgeschlossen sein wird, bietet dieses Haus modernsten Komfort und zeitgemäße Ausstattung. Der Keller sorgt für zusätzlichen Platz für Lagerräume oder kann als Fitnessstudio genutzt werden.
Die Villa verfügt über eine bezaubernde Terrasse, die mit einem Pool, überdachten Bereichen und bequemen Sonnenliegen ausgestattet ist. Dieser Ort lädt ein zum Entspannen, Seele baumeln lassen und genießen. Ob zum Sonnenbaden, gemütlichen Abenden im Freien oder als Ort der Erfrischung an heißen Sommertagen - diese Terrasse bietet alles, was zum Wohlfühlen und Entspannen benötigt wird. Mit Parkmöglichkeiten für zwei Fahrzeuge wird diese Luxusvilla allen Ansprüchen gerecht und lässt keine Wünsche offen.
Die Immobilie verfügt über eine Klimaanlage und Fußbodenheizung für perfekten Komfort. Im Erdgeschoss erwartet Sie ein heller und offener Wohn- und Essbereich mit hohen Decken und einer Küche. Von hier aus gelangen Sie auf die überdachte Terrasse, die zum Entspannen und Genießen einlädt. Ein Kamin sorgt für zusätzliche Gemütlichkeit. Des Weiteren befindet sich ein Schlafzimmer mit eigenem Badezimmer, ein Gäste-WC und praktische Abstellräume im Erdgeschoss.
Im 1. Stock erwarten Sie drei luxuriöse Schlafzimmer mit eigenen Badezimmer und begehbaren Kleiderschränken. Ein Schlafzimmer bietet Ihnen sogar einen bezaubernden Blick auf das Meer und die wunderbare Umgebung. Hier können Sie sich wahrhaftig wie in einem Luxushotel fühlen.




Das Adriatische Meer
- Meerentfernung: 4 km
- Aussicht: Panorama-Meerblick
Die Immobilie
- Villa in Poreč, Istrien
- Baujahr: 2023
- Zustand: Erstbezug
- Wohnfläche: 225 m² – Grundstücksgröße: 878 m²
- Etagenzahl: 2
- Überdachte Terrasse
Ausstattung
- Anzahl Zimmer: 5
- Anzahl Schlafzimmer: 4
- Anzahl Badezimmer: 4
- Heizung: Wärmepumpe, Fußbodenheizung, Klimaanlage, Kamin
- Unterkellert
Die Villa erwartet Sie in Poreč!
Die Stadt ist wegen der guten Lage und des umfangreichen Tourismusangebots mehrfach ausgezeichnet worden. Sie ist eine der bedeutendsten Küstenstädte an der Westküste der Halbinsel Istrien in Kroatien.
- Ort: Poreč (Stadt)
- Einwohnerzahl: 16.696 (2011)
- Region: Istrien
- Autobahnentfernung: ca. 10 km *
- Nächster Flughafen: Pula / ca. 56 km *
Immobiliendaten
- Objektart: Haus
- Objekttyp: Villa
- Baujahr: 2023
- ID: 5580
- Kaufpreis: 1.440.000 €
- Provision: 3,75% inkl. MwSt. in Kroatien
- Grundstücksgröße: 878 m²
- Wohnfläche: 225 m²
- Anzahl Zimmer: 5
- Anzahl Schlafzimmer: 4
- Anzahl Badezimmer: 4
- Land: Kroatien
- Region: Istrien
- Ort: Poreč
- Meerentfernung: 4 km
- Ortsmitte: 5 km
Haben Sie Interesse die schöne Villa zu besitzen?
Nehmen Sie gerne Kontakt mit mir auf!
Ich bin Heiner Reker, Gründer und
Geschäftsführer von Reker Immobilien d.o.o. Ich begleite Sie bei Ihrer aufregenden Reise in die Welt der Immobilien in Kroatien.
Gerne organisiere ich persönlich mit meinen qualifizierten Partnern jeden Schritt bei Ihrem rechtssicheren und stressfreien Immobilienkauf in Kroatien.
Füllen Sie das Formular aus und ich melde mich gerne zum gewünschten Zeitpunkt bei Ihnen.
Bis bald
Exposé mitnehmen?
Laden Sie unser PDF-Exposé herunter und Sie haben die wichtigste Objektdaten & Bilder immer zur Hand
Exposé mitnehmen?
Nehmen Sie Kontakt mit uns auf, ein Exposé schicken wir gerne per E-Mail
Ihre Traum-Immobilie noch nicht gefunden?
Besuchen Sie diese Seiten!







