LUXURIÖSE NEUBAUVILLA MIT WÄRMEPUMPE, POOL UND MEERBLICK IN DER NÄHE VON POREČ
Lage & Außenbereich
Diese moderne, freistehende Villa bei Poreč verbindet schönen Meerblick mit einer angenehm ruhigen Umgebung. Sie erreichen die Küste nach rund 6 km und das Zentrum von Poreč nach etwa 10 km. Im Alltag zeigt sich das Haus sehr praktisch. Die Zufahrt ist asphaltiert, direkt am Haus stehen Ihnen zwei eigene Parkplätze zur Verfügung.
Das 985 m² große Grundstück schafft viel Raum im Freien. Pool und Garten sorgen für einen privaten Rahmen und bieten Platz für erholsame Stunden draußen. Hinzu kommen eine überdachte Veranda und eine überdachte Terrasse im Erdgeschoss. So erweitert sich der Wohnbereich angenehm nach außen. Ein klarer Vorteil: die Privatsphäre.
Innenraum & Interieur
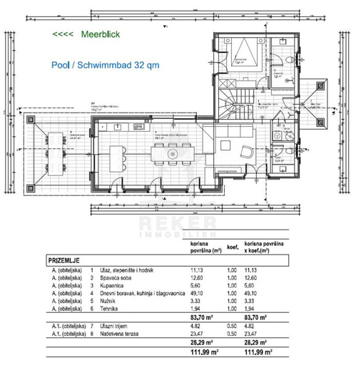
Die Wohnfläche beträgt 160 m². Im Erdgeschoss erwarten Sie eine Eingangshalle, ein helles Wohnzimmer mit Wohnküche, ein Schlafzimmer mit eigenem Bad, ein Gäste-WC sowie ein praktischer Abstell-/Technikraum. Im Obergeschoss stehen zwei geräumige Schlafzimmer zur Verfügung, jeweils mit eigenem Bad. Eines der Zimmer bietet zusätzlich Zugang zur Terrasse.
Auch die Ausstattung passt zum klaren Stil des Hauses. PVC-Fenster mit Dreifachverglasung, Keramikfliesen in allen Räumen, Wärmepumpe, Klimaanlagen in allen Räumen sowie die Vorbereitung für Solaranlagen sprechen für Komfort und moderne Technik. Als Neubau aus dem Jahr 2024 richtet sich diese Villa an Käufer, die moderne Architektur, Meerblick und die Nähe zu Poreč in einem stimmigen Gesamtpaket suchen.
Die Villa erwartet Sie in Poreč!
Die Stadt ist wegen der guten Lage und des umfangreichen Tourismusangebots mehrfach ausgezeichnet worden. Sie ist eine der bedeutendsten Küstenstädte an der Westküste der Halbinsel Istrien in Kroatien.
- Ort: Poreč (Stadt)
- Einwohnerzahl: 16.696 (2011)
- Region: Istrien
- Autobahnentfernung: ca. 10 km *
- Nächster Flughafen: Pula / ca. 56 km *
Immobiliendaten
- Objektart: Haus
- Objekttyp: Villa
- Baujahr: 2024
- ID: 7367
- Kaufpreis: 664.000 €
- Provision: 3,75 % inkl. MwSt. in Kroatien
- Grundstücksgröße: 985 m²
- Wohnfläche: 159 m²
- Anzahl Zimmer: 4
- Anzahl Schlafzimmer: 3
- Anzahl Badezimmer: 3
- Land: Kroatien
- Region: Istrien
- Ort: Poreč
- Meerentfernung: 6 km
Haben Sie Interesse die schöne Villa zu besitzen?
Nehmen Sie gerne Kontakt mit mir auf!
Ich bin Heiner Reker, Gründer und
Geschäftsführer von Reker Immobilien d.o.o. Ich begleite Sie bei Ihrer aufregenden Reise in die Welt der Immobilien in Kroatien.
Gerne organisiere ich persönlich mit meinen qualifizierten Partnern jeden Schritt bei Ihrem rechtssicheren und stressfreien Immobilienkauf in Kroatien.
Füllen Sie das Formular aus und ich melde mich gerne zum gewünschten Zeitpunkt bei Ihnen.
Bis bald
Exposé mitnehmen?
Laden Sie unser PDF-Exposé herunter und Sie haben die wichtigste Objektdaten & Bilder immer zur Hand
Exposé mitnehmen?
Nehmen Sie Kontakt mit uns auf, ein Exposé schicken wir gerne per E-Mail
Ihre Traum-Immobilie noch nicht gefunden?
Besuchen Sie diese Seiten!
























