ERLEBEN SIE HÖCHSTEN WOHNKOMFORT: LUXURIÖSE NEUBAUVILLA MIT POOL IN POREČ
Moderne Villa in ländlicher Umgebung nahe Poreč
Die neu errichtete Villa befindet sich in einer malerischen ländlichen Umgebung, nur wenige Kilometer von der Küstenstadt Poreč entfernt. Hier genießen Sie eine ruhige und entspannte Atmosphäre abseits vom Trubel der Stadt. Das Meer ist nur eine kurze Autofahrt von etwa 7 km entfernt, sodass Sie die Strände und Buchten in kürzester Zeit erreichen können. Das Stadtzentrum von Poreč ist ebenfalls bequem in 12,5 km erreichbar und bietet eine Vielzahl von Geschäften, Restaurants und Sehenswürdigkeiten. Mit dieser Lage haben Sie die perfekte Mischung aus ländlicher Idylle und urbanem Komfort.
In einem einzigartigen Neubauprojekt erwartet Sie eine atemberaubende Villa mit einem Grundstück von 762 m². Das zweistöckige Haus bietet eine großzügige Wohnfläche von 176 m² und wird voraussichtlich im Frühjahr 2024 fertiggestellt sein. Die Villa zeichnet sich durch eine hochwertige Ausstattung aus, darunter eine Wärmepumpe und eine Solaranlage zur Warmwasserbereitung. Hier erwartet Sie ein modernes und energieeffizientes Zuhause, das höchsten Ansprüchen gerecht wird.
Der Außenbereich der Villa wird um einen erfrischenden Pool erweitert, der perfekt für entspannende Momente in der warmen Jahreszeit ist. Eine großzügige Terrasse bietet den idealen Platz für bequeme Gartenmöbel und lädt zum Verweilen im Freien ein. Genießen Sie die warmen Sonnenstrahlen und runden Sie Ihren Tag mit einem erfrischenden Bad im Pool ab. Darüber hinaus stehen Ihnen 2-3 Parkplätze zur Verfügung, um Ihren Fahrzeugen einen sicheren Platz zu bieten. Dieses Neubauprojekt verspricht ein Traumhaus mit modernem Komfort und einem erstklassigen Outdoor-Bereich.
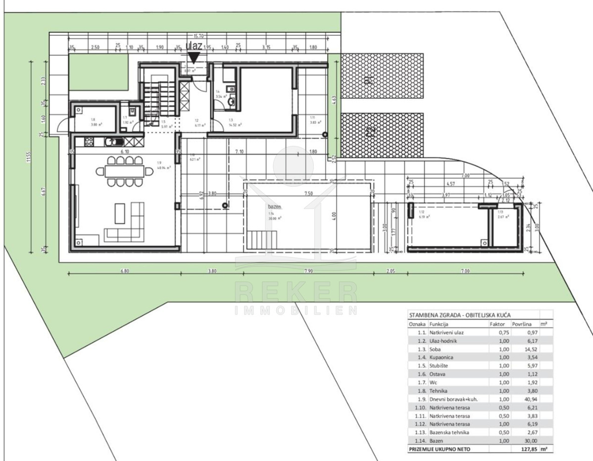
Das Haus ist mit einer Klimaanlage und Fußbodenheizung ausgestattet und bietet ein Höchstmaß an Komfort. Maßgefertigte Möbel sind gegen einen Aufpreis erhältlich, um den individuellen Wünschen gerecht zu werden. Im Erdgeschoss erwartet Sie ein großzügiger Flur, ein Gäste-WC und ein helles Wohnzimmer mit angrenzendem Essbereich und einer modernen Küche. Ein Kamin sorgt für eine gemütliche Atmosphäre. Außerdem gibt es ein geräumiges Schlafzimmer mit separatem Badezimmer und einen Technikraum. Im Obergeschoss befinden sich drei geräumige Schlafzimmer, jedes mit eigenem Badezimmer. Zusätzlich gibt es einen Abstellraum und zwei Terrassen, die zum Entspannen im Freien einladen.
Die Villa erwartet Sie in Poreč!
Die Stadt ist wegen der guten Lage und des umfangreichen Tourismusangebots mehrfach ausgezeichnet worden. Sie ist eine der bedeutendsten Küstenstädte an der Westküste der Halbinsel Istrien in Kroatien.
- Ort: Poreč (Stadt)
- Einwohnerzahl: 16.696 (2011)
- Region: Istrien
- Autobahnentfernung: ca. 10 km *
- Nächster Flughafen: Pula / ca. 56 km *
Immobiliendaten
- Objektart: Haus
- Objekttyp: Villa
- Baujahr: 2023
- ID: 6099
- Kaufpreis: 570.000 €
- Provision: 3,75 % inkl. MwSt. in Kroatien
- Grundstücksgröße: 762 m²
- Wohnfläche: 176 m²
- Anzahl Zimmer: 5
- Anzahl Schlafzimmer: 4
- Anzahl Badezimmer: 4
- Land: Kroatien
- Region: Istrien
- Ort: Poreč
- Meerentfernung: 7 km
- Ortsmitte: 12500 m
Haben Sie Interesse die schöne Villa zu besitzen?
Nehmen Sie gerne Kontakt mit mir auf!
Ich bin Heiner Reker, Gründer und
Geschäftsführer von Reker Immobilien d.o.o. Ich begleite Sie bei Ihrer aufregenden Reise in die Welt der Immobilien in Kroatien.
Gerne organisiere ich persönlich mit meinen qualifizierten Partnern jeden Schritt bei Ihrem rechtssicheren und stressfreien Immobilienkauf in Kroatien.
Füllen Sie das Formular aus und ich melde mich gerne zum gewünschten Zeitpunkt bei Ihnen.
Bis bald
Exposé mitnehmen?
Laden Sie unser PDF-Exposé herunter und Sie haben die wichtigste Objektdaten & Bilder immer zur Hand
Exposé mitnehmen?
Nehmen Sie Kontakt mit uns auf, ein Exposé schicken wir gerne per E-Mail
Ihre Traum-Immobilie noch nicht gefunden?
Besuchen Sie diese Seiten!











