MODERNE VILLA ZUM ERSTBEZUG MIT MEERBLICK UND DREI SCHLAFZIMMERN
Die Stadtvilla begeistert mit einer ansprechenden Ästhetik
Hochmodern mit optimal genutztem Raum
Die Villa erwartet Sie in Poreč!
Die Stadt ist wegen der guten Lage und des umfangreichen Tourismusangebots mehrfach ausgezeichnet worden. Sie ist eine der bedeutendsten Küstenstädte an der Westküste der Halbinsel Istrien in Kroatien.
- Ort: Poreč (Stadt)
- Einwohnerzahl: 16.696 (2011)
- Region: Istrien
- Autobahnentfernung: ca. 10 km *
- Nächster Flughafen: Pula / ca. 56 km *
Immobiliendaten
- Objektart: Haus
- Objekttyp: Villa
- Baujahr: 2022
- ID: 3706
- Kaufpreis: 505.000 €
- Provision: 3,75% inkl. MwSt. in Kroatien
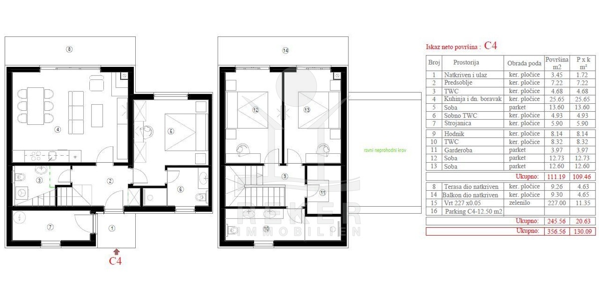
- Grundstücksgröße: 245 m²
- Wohnfläche: 130 m²
- Anzahl Zimmer: 4
- Anzahl Schlafzimmer: 3
- Anzahl Badezimmer: 3
- Land: Kroatien
- Region: Istrien
- Ort: Poreč
- Meerentfernung: 1 km
- Ortsmitte: 2700 m
Haben Sie Interesse die schöne Villa zu besitzen?
Nehmen Sie gerne Kontakt mit mir auf!
Ich bin Heiner Reker, Gründer und
Geschäftsführer von Reker Immobilien d.o.o. Ich begleite Sie bei Ihrer aufregenden Reise in die Welt der Immobilien in Kroatien.
Gerne organisiere ich persönlich mit meinen qualifizierten Partnern jeden Schritt bei Ihrem rechtssicheren und stressfreien Immobilienkauf in Kroatien.
Füllen Sie das Formular aus und ich melde mich gerne zum gewünschten Zeitpunkt bei Ihnen.
Bis bald
Exposé mitnehmen?
Laden Sie unser PDF-Exposé herunter und Sie haben die wichtigste Objektdaten & Bilder immer zur Hand
Exposé mitnehmen?
Nehmen Sie Kontakt mit uns auf, ein Exposé schicken wir gerne per E-Mail
Ihre Traum-Immobilie noch nicht gefunden?
Besuchen Sie diese Seiten!


















