MODERNE VILLA IN POREČ MIT POOL, PERFEKTE KOMBINATION AUS ELEGANZ UND KOMFORT

Ein wundervolles Anwesen mit Pool in ruhiger Lage nahe Poreč
Die beeindruckende moderne Villa befindet sich in einem ruhigen Teil von Poreč und bietet sowohl Nähe zum Meer als auch zur Stadt. Mit nur 3 km Entfernung zum Meer und ebenso zu Poreč genießen Sie hier die Vorteile beider Welten. Die Villa verfügt über einen eigenen Pool, der Entspannung und Erfrischung an heißen Tagen bietet. In der Nähe finden Sie Restaurants, Geschäfte und Unterhaltungsmöglichkeiten für das tägliche Leben. Entdecken Sie die malerische Küstenregion und die umliegenden Städte wie Funtana, Vrsar, Novigrad und das berühmte Rovinj mit ihrer reichen Geschichte und Sehenswürdigkeiten. Hier kommt garantiert keine Langeweile auf, denn die Vielfalt an Unterhaltungsmöglichkeiten, Natur und Kultur ist schier endlos.
Das 560 m² große Grundstück ist mit einem Zaun, teilweise Mauer und automatischem Tor ausgestattet. Die gepflegten Rasenflächen mit automatischem Bewässerungssystem und Olivenbäumen verleihen der Außenanlage eine mediterrane Atmosphäre. Das Gebäude selbst, Baujahr 2021, erstreckt sich über 2 Etagen mit einer Wohnfläche von 138 m². Die Außenschreinerei besteht aus PVC mit 3-fach-Verglasung, während die Innenschreinerei aus Massivholz gefertigt ist. Die Heizungsoptionen sind vielfältig: Heizkörper, die über den Holzkamin im Wohnzimmer beheizt werden, sowie die Wahl zwischen Heizöl oder Elektroheizkörpern. So können Sie Ihren individuellen Wärmebedürfnissen nachgehen.
Der großzügige Außenbereich beherbergt eine Sonnenterrasse mit einem erfrischenden Pool (24,50 m²), der für Abkühlung sorgt. Der Poolbereich ist mit Kanfanar-Steinen ausgelegt und bietet ein sonniges Deck. Die Sommerküche mit Überdachung lädt zu Grillabenden ein, während die überdachte Terrasse geeignet ist, um bei jedem Wetter im Freien zu entspannen. Mit drei Stellplätzen müssen Sie sich keine Gedanken über Parkmöglichkeiten machen. Dieses Anwesen ist die ideale Oase für Entspannung und Unterhaltung in Poreč.
Ausstattung und Komfort in jedem Raum
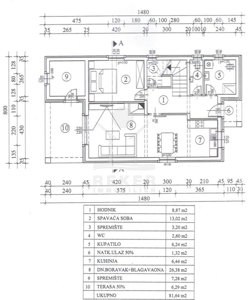
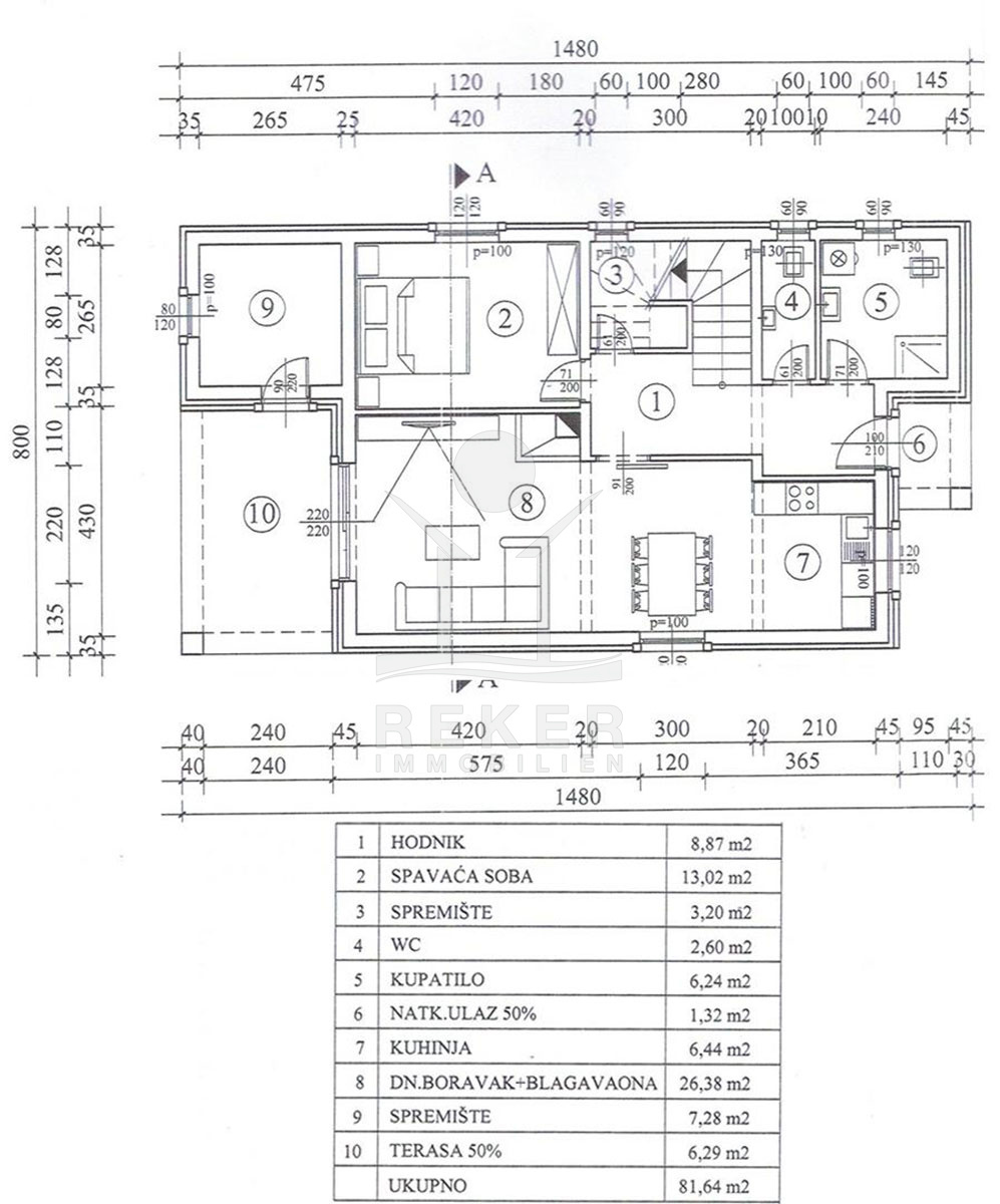
Das Haus bietet eine hochwertige Ausstattung mit Klimaanlagen in jedem Zimmer sowie Möbeln im Verkauf inbegriffen. Das Erdgeschoss bietet eine einladende Eingangshalle, ein geräumiges Badezimmer, ein Schlafzimmer, eine Küche mit Esszimmer und Wohnzimmer, das zu einer überdachten Terrasse und einem Pool führt. Ein Abstellraum auf der Terrasse dient als Heizraum für zusätzlichen Komfort.
Gemütlichkeit und Entspannung auf jeder Etage
Im ersten Stock befinden sich zwei weitere geräumige Schlafzimmer, jeweils mit Zugang zu einem gemeinsamen Balkon.
Die Villa erwartet Sie in Poreč!
Die Stadt ist wegen der guten Lage und des umfangreichen Tourismusangebots mehrfach ausgezeichnet worden. Sie ist eine der bedeutendsten Küstenstädte an der Westküste der Halbinsel Istrien in Kroatien.
- Ort: Poreč (Stadt)
- Einwohnerzahl: 16.696 (2011)
- Region: Istrien
- Autobahnentfernung: ca. 10 km *
- Nächster Flughafen: Pula / ca. 56 km *

Immobiliendaten
- Objektart: Haus
- Objekttyp: Villa
- Baujahr: 2021
- ID: 6704
- Kaufpreis: 780.000 €
- Provision: 3,75 % inkl. MwSt. in Kroatien
- Grundstücksgröße: 560 m²
- Wohnfläche: 138 m²
- Anzahl Zimmer: 4
- Anzahl Schlafzimmer: 3
- Anzahl Badezimmer: 3
- Land: Kroatien
- Region: Istrien
- Ort: Poreč
- Meerentfernung: 3 km
- Ortsmitte: 3 km
Haben Sie Interesse die schöne Villa zu besitzen?
Nehmen Sie gerne Kontakt mit mir auf!
Ich bin Heiner Reker, Gründer und
Geschäftsführer von Reker Immobilien d.o.o. Ich begleite Sie bei Ihrer aufregenden Reise in die Welt der Immobilien in Kroatien.
Gerne organisiere ich persönlich mit meinen qualifizierten Partnern jeden Schritt bei Ihrem rechtssicheren und stressfreien Immobilienkauf in Kroatien.
Füllen Sie das Formular aus und ich melde mich gerne zum gewünschten Zeitpunkt bei Ihnen.
Bis bald

Exposé mitnehmen?
Laden Sie unser PDF-Exposé herunter und Sie haben die wichtigste Objektdaten & Bilder immer zur Hand
Exposé mitnehmen?
Nehmen Sie Kontakt mit uns auf, ein Exposé schicken wir gerne per E-Mail
Ihre Traum-Immobilie noch nicht gefunden?
Besuchen Sie diese Seiten!