MODERNE DESIGN-VILLA IN ISTRIEN – RUHE, MEER, WELLNESS & PURE PRIVATSPHÄRE

Lage & Außenbereich
Ruhig gelegen und doch nah am Wasser: Diese Villa in Pomer bietet Ihnen einen echten Rückzugsort. Nur 300 Meter sind es bis zur nächsten versteckten Bucht. Sie wohnen in einer ruhigen Stichstraße – ohne Durchgangsverkehr, mit nur wenigen Nachbarn. Einkaufsmöglichkeiten wie Lidl oder Plodine erreichen Sie bequem mit dem Auto, ebenso die Städte Medulin und Pula. Diese Lage passt perfekt, wenn Sie Ruhe und Qualität schätzen, aber nicht auf gute Infrastruktur verzichten möchten.
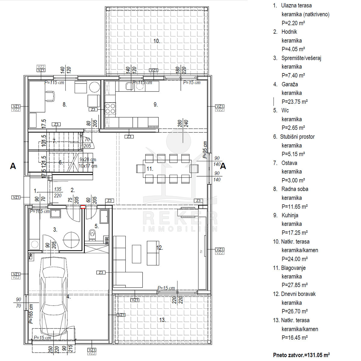
Der Außenbereich ist durchdacht gestaltet: Ein überdachter Swimmingpool mit separatem Technikhaus lädt genauso zum Entspannen ein wie der große, beheizbare Whirlpool. Die Terrasse geht nahtlos in einen modernen Wintergarten über – mit kleiner Sommerküche und Loungebereich. Ideal für laue Abende oder gesellige Stunden mit Familie und Gästen. Das Grundstück misst 821 m², pflegeleicht dank automatischer Bewässerung. Steinplattenwege mit Beleuchtung führen ums Haus. Für Ihre Fahrzeuge gibt es einen großen Steinplattenparkplatz, eine Garage und ein elektrisches Einfahrtstor mit Videoüberwachung.
Innenraum & Interieur
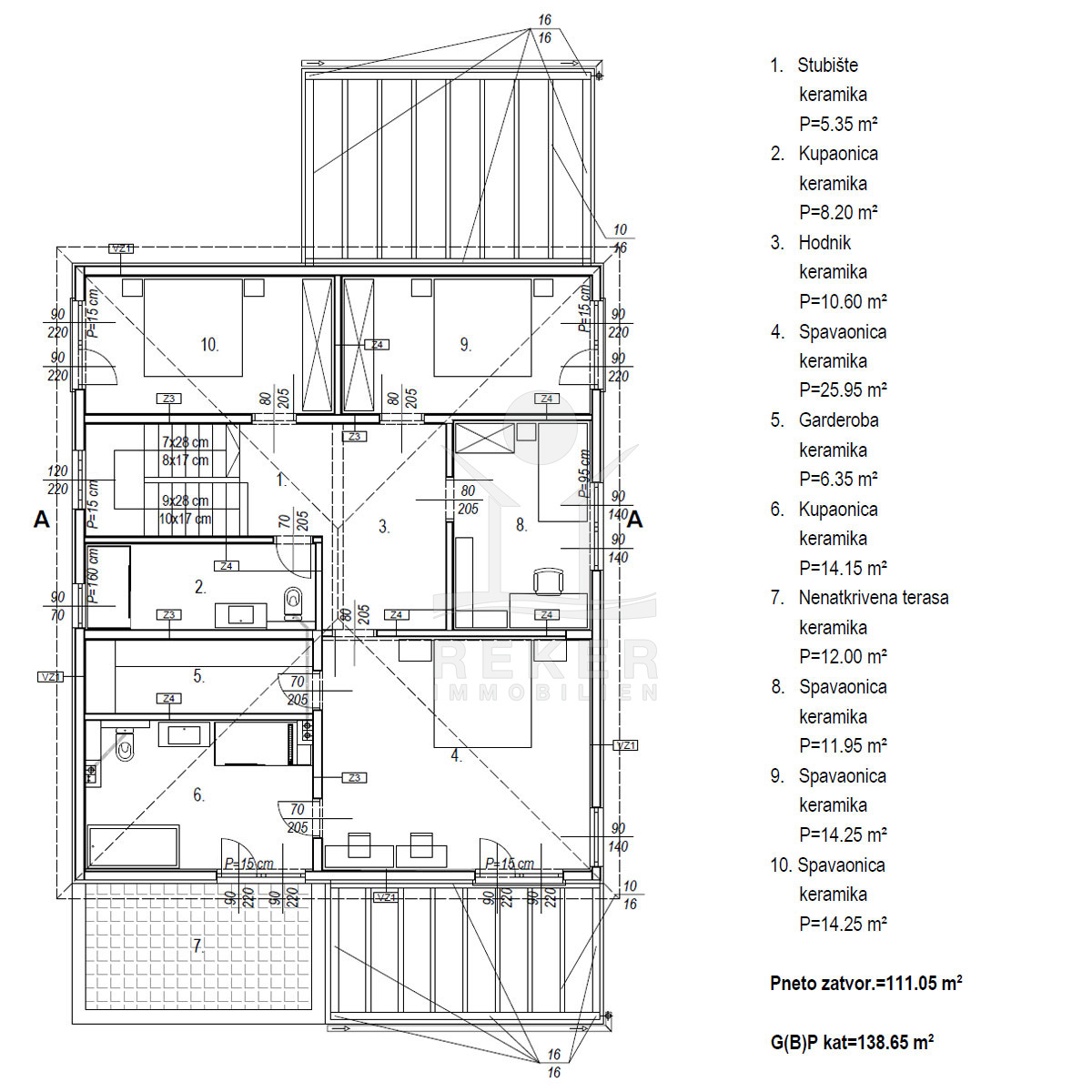
270 m² Wohnfläche auf zwei Etagen – komplett möbliert, sofort bezugsfertig. Im Erdgeschoss: moderner, offener Küchen- und Essbereich mit direktem Zugang zur Terrasse und zum Wintergarten. Zusätzlich: Gäste-WC, Technikraum, Vorratsraum und ein weiterer Raum, nutzbar als Büro oder Gästezimmer. Im Obergeschoss erwarten Sie vier Schlafzimmer und zwei Bäder. Das Master-Schlafzimmer hat ein eigenes Bad. Ein großzügiger Sonnenbalkon schenkt zusätzliche Privatsphäre im Freien. Fußbodenheizung und -kühlung per Wärmepumpe, Klimaanlage, Alarmanlage, Kamera, Sicherheitstür – alles auf neuestem Stand. Die Villa wurde bislang nur vom Eigentümer bewohnt, was Ihnen die Möglichkeit bietet, ein neuwertiges Zuhause zu erwerben.
Immobiliendaten
- Objektart: Haus
- Objekttyp: Villa
- Baujahr: 2020
- ID: 8380
- Kaufpreis: 670.000 €
- Provision: 3,75 % inkl. MwSt. in Kroatien
- Grundstücksgröße: 821 m²
- Wohnfläche: 270 m²
- Anzahl Zimmer: 6
- Anzahl Schlafzimmer: 5
- Anzahl Badezimmer: 2
- Land: Kroatien
- Region: Istrien
- Ort: Pomer
- Lage: Ortslage
- Meerentfernung: 300 m
Haben Sie Interesse die schöne Villa zu besitzen?
Nehmen Sie gerne Kontakt mit mir auf!
Ich bin Heiner Reker, Gründer und
Geschäftsführer von Reker Immobilien d.o.o. Ich begleite Sie bei Ihrer aufregenden Reise in die Welt der Immobilien in Kroatien.
Gerne organisiere ich persönlich mit meinen qualifizierten Partnern jeden Schritt bei Ihrem rechtssicheren und stressfreien Immobilienkauf in Kroatien.
Füllen Sie das Formular aus und ich melde mich gerne zum gewünschten Zeitpunkt bei Ihnen.
Bis bald

Exposé mitnehmen?
Laden Sie unser PDF-Exposé herunter und Sie haben die wichtigste Objektdaten & Bilder immer zur Hand
Exposé mitnehmen?
Nehmen Sie Kontakt mit uns auf, ein Exposé schicken wir gerne per E-Mail
Ihre Traum-Immobilie noch nicht gefunden?
Besuchen Sie diese Seiten!