MODERNES DESIGN UND STRANDNÄHE VEREINT: NEUBAU VILLA IN PEROJ
Perfekte Kombination aus Ruhe und Nähe zu Annehmlichkeiten
Die brandneue Villa liegt in einer exzellenten Lage in Peroj, nur 650 Meter und Strand entfernt. Sie müssen nur ein paar Schritte machen, um das klare Wasser der Adria zu erreichen. Auch das charmante Städtchen Fažana ist nur 3 km entfernt und bietet eine Vielzahl von Restaurants, Geschäften und Dienstleistungen. Für größere Einkäufe und weiter Ausgeh- und Unterhaltungsmöglichkeiten können Sie bequem nach Pula fahren, das nur in 10 km entfernt liegt. Die nächste Autobahnfahrt ist ebenfalls in der Nähe, was Anbindung an die Umgebung und andere Teile Kroatiens erleichtert. Genießen das Beste aus beiden Welten, eine ruhige und idyllische Umgebung und gleichzeitig die Nähe zu allem, was Sie für einen komfortablen Lebensstil benötigen.
Luxus trifft auf moderne Eleganz
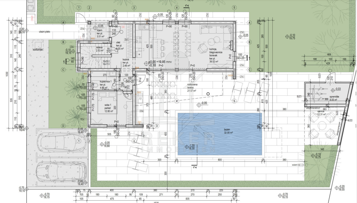
Das Anwesen befindet sich auf einem 618 m² großen Grundstück und erstreckt sich über 2 Etagen mit einer Wohnfläche von 202 m². Als Erstbezug im Jahr 2024 bietet die Villa modernen Komfort und hochwertige Ausstattung. Eine Wärmepumpe sorgt für energieeffizientes Heizen und Kühlen. Die Böden sind mit exquisitem Parkett und erstklassigen Keramikfliesen verlegt und die Fenster bestehen aus dreifach verglastem Aluminium. Diese Luxusimmobilie bietet ein Wohngefühl auf höchstem Niveau.
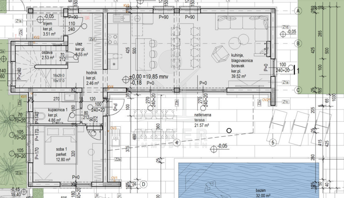
Die Außenanlage dieser Villa wird ein wahrhaftiger Genuss für alle Sinne. Eine großzügige, überdachte Terrasse von 21 m² lädt zum Entspannen und Zusammenkommen ein. Der geplante Swimmingpool mit einer Größe von 32 m² wird zum Mittelpunkt der Freizeitgestaltung im Garten. Eine gemütliche Liegewiese bietet Raum zum Sonnenbaden und Entspannen. Zusätzlich ist ein Nebengebäude von 8 m² für zwei Parkplätze geplant, sodass genügend Platz für Ihre Autos vorhanden ist.
Die Villa wird mit einer Fußbodenheizung und Klimaanlage ausgestattet und steht unmöbliert zum Verkauf. Die zukünftigen Eigentümer haben somit die Möglichkeit, die Villa nach ihren eigenen Wünschen und Vorstellungen einzurichten und zu gestalten. Im Erdgeschoss der Villa befinden sich ein Eingangsbereich, 1 Badezimmer, 1 Schlafzimmer sowie eine Küche mit angeschlossenem Esszimmer und ein geräumiges Wohnzimmer. Das Wohnzimmer bietet zudem Zugang zu einer nach Südwesten ausgerichteten, überdachten Terrasse. Hier können Sie die Sonne und die warmen Abende im Freien genießen.
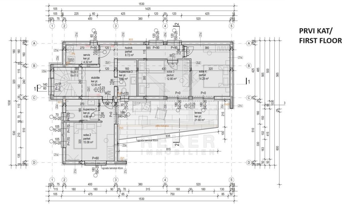
Im 1. Stock der Villa befinden sich 2 weitere Badezimmer sowie 3 Schlafzimmer, die alle Zugang zu einer gemeinsamen Terrasse haben. Diese gemeinsame Terrasse bietet sich perfekt für gemütliche Abende unter freiem Himmel oder für das morgendliche Frühstück mit Blick auf die umliegende Landschaft an.
Die Villa erwartet Sie in Peroj!
- Ort: Peroj (Dorf)
- Einwohnerzahl: 832 (2011)
- Region: Istrien
- Autobahnentfernung: ca. 8 km *
- Nächster Flughafen: Pula / ca. 17 km *
Immobiliendaten
- Objektart: Haus
- Objekttyp: Villa
- Baujahr: 2024
- ID: 6108
- Kaufpreis: 790.000 €
- Provision: 3,75 % inkl. MwSt. in Kroatien
- Grundstücksgröße: 618 m²
- Wohnfläche: 202 m²
- Anzahl Zimmer: 5
- Anzahl Schlafzimmer: 4
- Anzahl Badezimmer: 3
- Land: Kroatien
- Region: Istrien
- Ort: Peroj
- Meerentfernung: 650 m
- Ortsmitte: 3 km
Haben Sie Interesse die schöne Villa zu besitzen?
Nehmen Sie gerne Kontakt mit mir auf!
Ich bin Heiner Reker, Gründer und
Geschäftsführer von Reker Immobilien d.o.o. Ich begleite Sie bei Ihrer aufregenden Reise in die Welt der Immobilien in Kroatien.
Gerne organisiere ich persönlich mit meinen qualifizierten Partnern jeden Schritt bei Ihrem rechtssicheren und stressfreien Immobilienkauf in Kroatien.
Füllen Sie das Formular aus und ich melde mich gerne zum gewünschten Zeitpunkt bei Ihnen.
Bis bald
Exposé mitnehmen?
Laden Sie unser PDF-Exposé herunter und Sie haben die wichtigste Objektdaten & Bilder immer zur Hand
Exposé mitnehmen?
Nehmen Sie Kontakt mit uns auf, ein Exposé schicken wir gerne per E-Mail
Ihre Traum-Immobilie noch nicht gefunden?
Besuchen Sie diese Seiten!















