PROJEKT FÜR LUXUSVILLEN UND SWIMMINGPOOL: EXKLUSIVE VILLA IN MALINSKA
Exklusive Villa in malerischer Umgebung von Malinska
Die Villa befindet sich in Malinska, einem charmanten Ort auf der Insel Krk, der für seine natürliche Schönheit und sein reichhaltiges kulturelles Erbe bekannt ist. Nur wenige Minuten mit dem Auto entfernt vom glasklaren Meer gelegen, bietet die ruhige Lage der Villa die perfekte Umgebung für Entspannung und Erholung. Malinska verfügt über eine große Vielzahl an Stränden - von flach abfallenden Kieselstränden bis hin zu malerischen Felsbuchten, die sowohl Familien als auch Wasser-Sportbegeisterte ansprechen. Das Zentrum von Malinska mit seinem lebhaften Hafen, Uferpromenade und einer Vielzahl von Restaurants, Tavernen und Bars ist ebenfalls leicht erreichbar. Genießen Sie hier kulinarische Köstlichkeiten, typisch zubereitete Fischgerichte und den lokalen trockenen Weißwein Zlatina. Am Abend können Sie zwischen einem romantischen Spaziergang entlang der Uferpromenade oder einem Besuch in den zahlreichen Bars und Clubs wählen. Malinska bietet eine perfekte Mischung aus Strandvergnügen, Sportaktivitäten, Unterhaltung und kulturellen Highlights, die jeden Besuch unvergesslich machen.
Das Anwesen beeindruckt mit einer Grundstücksfläche von 851 m² und einer Wohnfläche von 305 m² verteilt auf 2 Etagen. Der Neubau besticht durch eine hochwertige Konstruktion und Ausstattung, inklusive Fußbodenheizung und Klimaanlage. Ein besonderes Highlight ist die im Haus integrierte Taverne und der unterkellerte Bereich, der zusätzlichen Raum für verschiedene Zwecke bietet. Mit zwei Parkplätzen vor dem Haus wird das Parken zum Kinderspiel.
Die überdachte Terrasse mit Swimmingpool und Liegewiese lädt dazu ein, wahre Entspannung und Freude zu genießen. Dieser luxuriöse Außenbereich bietet die perfekte Kulisse, um die Sonne zu genießen und sich zu erholen. Mit einem solch einladenden Ambiente ist diese exklusive Villa ein wahres Juwel, das höchsten Ansprüchen an Eleganz und Komfort gerecht wird. Erleben Sie Luxus und Entspannung in diesem traumhaften Zuhause!
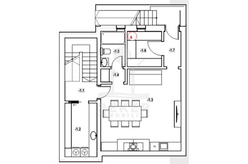
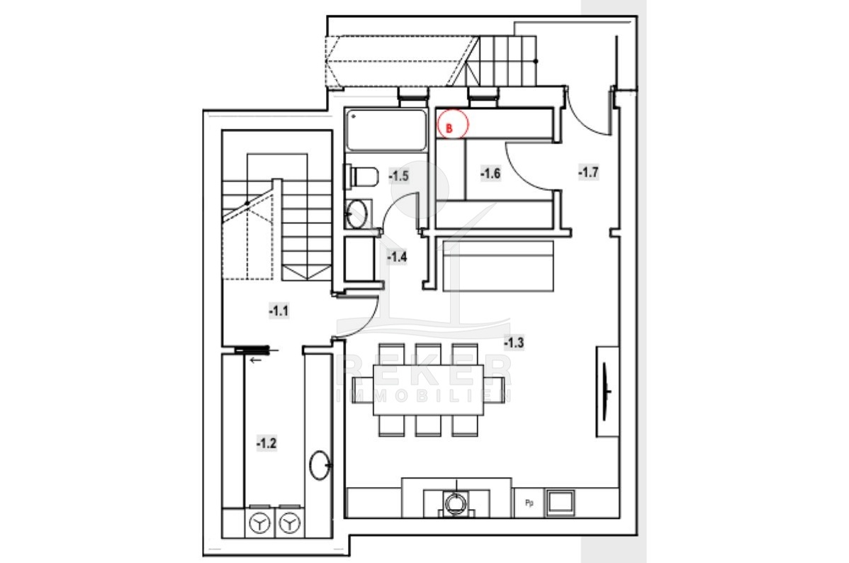
Einzigartiges Wohnkonzept mit charmanter Taverne
Im Untergeschoss lädt eine gemütliche Taverne zu geselligen Abenden ein. Das Erdgeschoss bietet ein Wohnzimmer, eine Küche, einen Essbereich, zwei Schlafzimmer mit Badezimmern, ein zusätzliches WC und eine überdachte Terrasse für entspannte Momente im Freien.
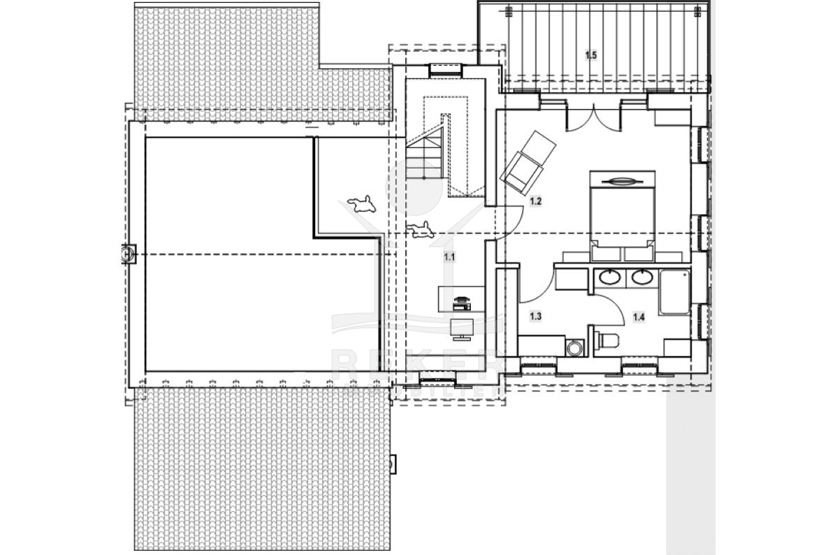
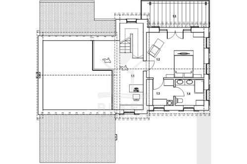
Eleganz und Weite im ersten Stock
Der erste Stock präsentiert eine Galerie mit Blick auf das Wohnzimmer, die das Raumgefühl vergrößert. Ein Hauptschlafzimmer mit eigenem Badezimmer und begehbarem Kleiderschrank bietet eine elegante und großzügige Wohnatmosphäre.
Die Villa erwartet Sie in Malinska!
- Ort: Malinska (Dorf)
- Einwohnerzahl: 965 (2011)
- Region: Kvarner-Bucht
- Insel: Krk
- Autobahnentfernung: ca. 18 km *
- Nächster Flughafen: Rijeka / ca. 15 km *
Immobiliendaten
- Objektart: Haus
- Objekttyp: Villa
- ID: 7162
- Kaufpreis: 1.100.000 €
- Provision: 3,75 % inkl. MwSt. in Kroatien
- Grundstücksgröße: 851 m²
- Wohnfläche: 305 m²
- Anzahl Zimmer: 4
- Anzahl Schlafzimmer: 3
- Anzahl Badezimmer: 3
- Land: Kroatien
- Region: Kvarner-Bucht
- Ort: Malinska
- Meerentfernung: 2 km
Haben Sie Interesse die schöne Villa zu besitzen?
Nehmen Sie gerne Kontakt mit mir auf!
Ich bin Heiner Reker, Gründer und
Geschäftsführer von Reker Immobilien d.o.o. Ich begleite Sie bei Ihrer aufregenden Reise in die Welt der Immobilien in Kroatien.
Gerne organisiere ich persönlich mit meinen qualifizierten Partnern jeden Schritt bei Ihrem rechtssicheren und stressfreien Immobilienkauf in Kroatien.
Füllen Sie das Formular aus und ich melde mich gerne zum gewünschten Zeitpunkt bei Ihnen.
Bis bald
Exposé mitnehmen?
Laden Sie unser PDF-Exposé herunter und Sie haben die wichtigste Objektdaten & Bilder immer zur Hand
Exposé mitnehmen?
Nehmen Sie Kontakt mit uns auf, ein Exposé schicken wir gerne per E-Mail
Ihre Traum-Immobilie noch nicht gefunden?
Besuchen Sie diese Seiten!














