GESTALTEN SIE IHR PERSÖNLICHES INSELPARADIES: FREI STEHENDE VILLA MIT MEERBLICK IN ROHBAU-PHASE AUF KRK
Villa mit Meerblick auf der Insel Krk
Die Villa befindet sich auf der Insel Krk in einer schönen, grünen Umgebung. Mit dem Meer und einem Strand in nur 1,2 km Entfernung bietet die Lage die perfekte Mischung aus Ruhe und Nähe zum Wasser. Das nächste Restaurant und Geschäft sind in ca. 700 Metern erreichbar, sodass Sie alle Annehmlichkeiten in greifbarer Nähe haben. Die Insel Krk ist bequem über die Brücke Krk bei Kraljevica zu erreichen. Die Insel besticht durch ihre reiche Geschichte, die wertvollen Kulturgüter und die wunderschönen Badebuchten. Mit 60 kleinen Ortschaften, Orten und Städten bietet Krk eine Vielzahl an Möglichkeiten zum Erkunden und Entspannen. Der Flughafen Rijeka in der Nähe des Ferienortes Omisalj ermöglicht eine bequeme Anreise über die Luft. Genießen Sie die Ruhe und Schönheit der Insel Krk von Ihrem exklusiven Rückzugsort aus.
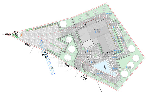
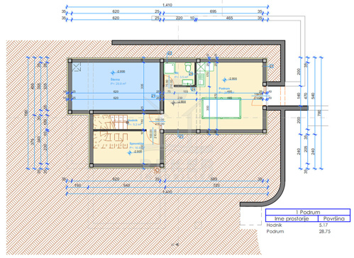
Das Anwesen befindet sich auf einem 900 m² großen Grundstück in Hanglage, das idyllisch im Grün eingebettet ist. Das zweistöckige Gebäude mit einer Wohnfläche von 220 m² befindet sich im Rohbauzustand und verfügt über einen Keller, der als luxuriöser Wellnessbereich mit Sauna, Fitnessraum und Gesellschaftsraum konzipiert ist. Ein exklusives Anwesen, das große Potenzial für individuelle Gestaltungsmöglichkeiten bietet.
Der Außenbereich dieser Villa ist für Erholung und Spaß im Freien konzipiert. Eine überdachte Terrasse lädt zum Entspannen ein und bietet einen herrlichen Blick auf das Meer. Der geplante Swimmingpool verspricht erfrischenden Badespaß an heißen Tagen. Mit 2 Parkplätzen steht für Ihre Fahrzeuge genügend Platz zur Verfügung.
Gemütliches Zuhause mit viel Platz
Die Immobilie bietet im Erdgeschoss ein geräumiges Wohnzimmer, eine moderne Küche, einen einladenden Essbereich, zwei Schlafzimmer mit jeweils eigenem Badezimmer, einen Abstellraum und einen Flur. Genießen Sie die frische Luft auf der überdachten Terrasse. Im ersten Stock erwartet Sie ein weiteres Schlafzimmer mit eigenem Badezimmer sowie eine Terrasse, auf der Sie entspannen und die Aussicht genießen können. Perfekt für ruhige Momente und private Rückzugsmöglichkeiten.
Die Villa erwartet Sie in Krk!
Die Stadt Krk ist die bedeutendste Stadt und mit ca. 3700 Einwohnern auch die größte Stadt auf der Insel. Sie ist Hafenstadt und Kurort und liegt nur ca. 25 km von der Brücke entfernt.
- Ort: Krk (Stadt)
- Einwohnerzahl: 6243 (2011)
- Region: Kvarner-Bucht
- Insel: Krk
- Autobahnentfernung: ca. 30 km *
- Nächster Flughafen: Rijeka / ca. 26 km *
Immobiliendaten
- Objektart: Haus
- Objekttyp: Villa
- Baujahr: 2022
- ID: 7201
- Kaufpreis: 390.000 €
- Provision: 3,75 % inkl. MwSt. in Kroatien
- Grundstücksgröße: 900 m²
- Wohnfläche: 220 m²
- Anzahl Zimmer: 4
- Anzahl Schlafzimmer: 3
- Anzahl Badezimmer: 3
- Land: Kroatien
- Region: Kvarner-Bucht
- Ort: Krk
- Lage: Siedlung
- Meerentfernung: 1 km
Haben Sie Interesse die schöne Villa zu besitzen?
Nehmen Sie gerne Kontakt mit mir auf!
Ich bin Heiner Reker, Gründer und
Geschäftsführer von Reker Immobilien d.o.o. Ich begleite Sie bei Ihrer aufregenden Reise in die Welt der Immobilien in Kroatien.
Gerne organisiere ich persönlich mit meinen qualifizierten Partnern jeden Schritt bei Ihrem rechtssicheren und stressfreien Immobilienkauf in Kroatien.
Füllen Sie das Formular aus und ich melde mich gerne zum gewünschten Zeitpunkt bei Ihnen.
Bis bald
Exposé mitnehmen?
Laden Sie unser PDF-Exposé herunter und Sie haben die wichtigste Objektdaten & Bilder immer zur Hand
Exposé mitnehmen?
Nehmen Sie Kontakt mit uns auf, ein Exposé schicken wir gerne per E-Mail
Ihre Traum-Immobilie noch nicht gefunden?
Besuchen Sie diese Seiten!

















