ERLEBEN SIE LUXURIÖSEN LIFESTYLE: NEUE STADTVILLA AUF DER INSEL KRK MIT MODERNER ARCHITEKTUR UND POOL
Phänomenale Villa in ruhiger Lage auf der Insel Krk
Genießen Sie den Luxus und die Ruhe in dieser exklusiven Stadtvilla, die sich in einer ruhigen Gegend der Stadt Krk auf der Insel Krk befindet. Mit nur 1,5 km Entfernung zu den wunderschönen Stränden und Buchten der Adria bietet die Villa die perfekte Kombination aus Entspannung und Nähe zum Meer. Die phänomenale Lage der Villa ermöglicht es Ihnen, die umliegende Gegend und die Natur in vollen Zügen zu genießen. Ob Sie die malerischen Strände erkunden, in den nahegelegenen Restaurants speisen oder einfach nur die Ruhe und den Luxus Ihres neuen Zuhauses genießen möchten - diese exklusive Stadtvilla bietet alles, was das Herz begehrt.
Exklusive Stadtvilla der Luxusklasse
Die Neubauvilla setzt neue Maßstäbe mit einer Grundstücksfläche von 552 m² und einer Wohnfläche von 173 m². Geplant ist die Fertigstellung im Juni 2024, was den zukünftigen Bewohnern die Möglichkeit bietet, hochmodernes Wohnen zu genießen. Ausgestattet mit Klimaanlage, Fußbodenheizung, hochwertigen Bodenbelägen und Panorama-Schiebewänden bietet diese exklusive Stadtvilla den ultimativen Komfort und Eleganz. Die Vorbereitungen für eine Photovoltaikanlage auf dem Dach und das Laden von Elektrofahrzeugen unterstreichen den Fokus auf Nachhaltigkeit und Zukunftsfähigkeit. Zwei Parkplätze stehen zur Verfügung.
Die großzügige, überdachte Terrasse mit Blick auf den Swimmingpool ist zweifellos ein Highlight dieser exklusiven Stadtvilla. Eine Liegelandschaft lädt dazu ein, die Sonne zu genießen und sich zu entspannen, während die Vorbereitung für die Poolheizung sicherstellt, dass der Badespaß das ganze Jahr über möglich ist. Diese Villa wurde mit dem Ziel konzipiert, modernen Luxus mit Komfort und Stil zu verbinden und ist eine perfekte Wahl für anspruchsvolle Käufer, die auf der Suche nach einer exklusiven, gehobenen Lebensweise sind.
Vielfältige Räumlichkeiten für Wohnkomfort
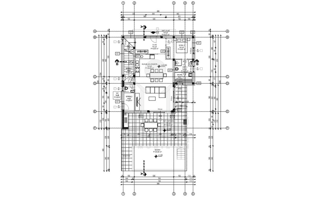
Das Erdgeschoss (91 m²) bietet einen einladenden Eingangsbereich, ein großzügiges Wohn- und Esszimmer mit angrenzender Küche sowie ein komfortables Schlafzimmer. Eine Sauna, ein Gäste-WC, ein Badezimmer und zwei Abstellräume komplettieren das Angebot und bieten diverse Nutzungsmöglichkeiten.
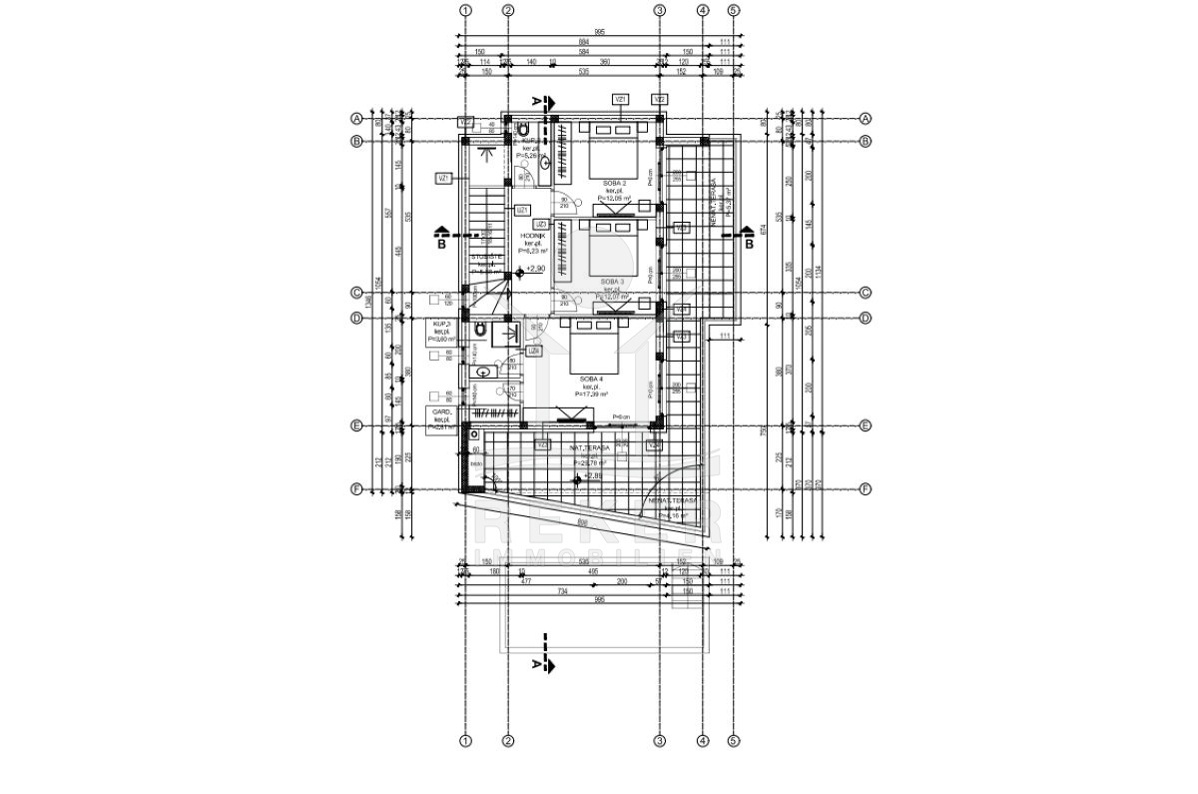
Über eine interne Treppe gelangt man in das erste Obergeschoss (82 m²), wo ein stilvoller Flur zu 2 Schlafzimmern, einem Badezimmer, einer Garderobe und einem Balkon führt, der über eines der Schlafzimmer zugänglich ist. Hier vereinen sich Funktionalität und Eleganz zu einem harmonischen Gesamtbild.
Die Villa erwartet Sie in Krk!
Die Stadt Krk ist die bedeutendste Stadt und mit ca. 3700 Einwohnern auch die größte Stadt auf der Insel. Sie ist Hafenstadt und Kurort und liegt nur ca. 25 km von der Brücke entfernt.
- Ort: Krk (Stadt)
- Einwohnerzahl: 6243 (2011)
- Region: Kvarner-Bucht
- Insel: Krk
- Autobahnentfernung: ca. 30 km *
- Nächster Flughafen: Rijeka / ca. 26 km *
Immobiliendaten
- Objektart: Haus
- Objekttyp: Villa
- Baujahr: 2024
- ID: 5356
- Kaufpreis: 910.000 €
- Provision: 3,75 % inkl. MwSt. in Kroatien
- Grundstücksgröße: 552 m²
- Wohnfläche: 173 m²
- Anzahl Zimmer: 5
- Anzahl Schlafzimmer: 4
- Anzahl Badezimmer: 3
- Land: Kroatien
- Region: Kvarner-Bucht
- Ort: Krk
- Meerentfernung: 2 km
Haben Sie Interesse die schöne Villa zu besitzen?
Nehmen Sie gerne Kontakt mit mir auf!
Ich bin Heiner Reker, Gründer und
Geschäftsführer von Reker Immobilien d.o.o. Ich begleite Sie bei Ihrer aufregenden Reise in die Welt der Immobilien in Kroatien.
Gerne organisiere ich persönlich mit meinen qualifizierten Partnern jeden Schritt bei Ihrem rechtssicheren und stressfreien Immobilienkauf in Kroatien.
Füllen Sie das Formular aus und ich melde mich gerne zum gewünschten Zeitpunkt bei Ihnen.
Bis bald
Exposé mitnehmen?
Laden Sie unser PDF-Exposé herunter und Sie haben die wichtigste Objektdaten & Bilder immer zur Hand
Exposé mitnehmen?
Nehmen Sie Kontakt mit uns auf, ein Exposé schicken wir gerne per E-Mail
Ihre Traum-Immobilie noch nicht gefunden?
Besuchen Sie diese Seiten!
















