PRIVATSPHÄRE TRIFFT QUALITÄT: NEUE VILLA MIT SAUNA, JACUZZI, POOL & OFFENEM BLICK AUFS MEER
Lage & Außenbereich
Diese freistehende Neubauvilla auf der Insel Krk, nahe der Stadt Krk, richtet sich an Käufer, die Ruhe, Privatsphäre und offenen Meerblick schätzen. Das 2024 erbaute Haus bietet 180 m² Wohnfläche. Es passt zu Menschen, die hochwertige Ausführung und moderne Technik bewusst wählen. Im Alltag besonders angenehm: Direkt am Haus stehen Ihnen zwei überdachte Parkplätze zur Verfügung, jeweils mit Ladeanschluss für Elektrofahrzeuge.
Auch der Außenbereich überzeugt. Das 614 m² große Grundstück verbindet Pool, überdachte Terrasse und Außenkamin zu einem stimmigen Gesamtbild. So nutzen Sie den Bereich im Freien vielseitig und komfortabel. Der offene Meerblick verleiht dem Haus zusätzliche Ausstrahlung und schafft ein großzügiges, luftiges Wohngefühl. Hinzu kommt die ruhige Umgebung. Die Distanz von 1300 m zum Meer sorgt für Privatsphäre und hält die Küste gut erreichbar.
Innenraum & Interieur
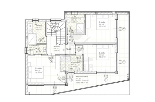
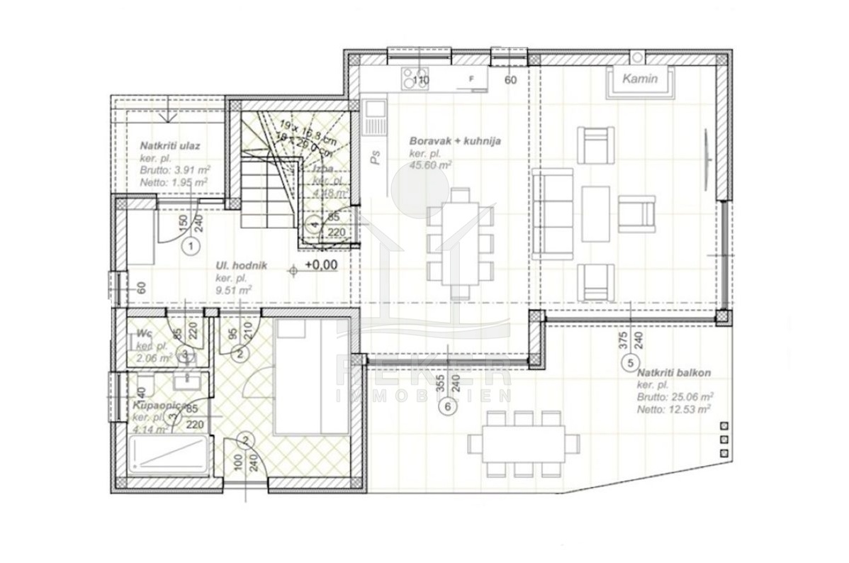
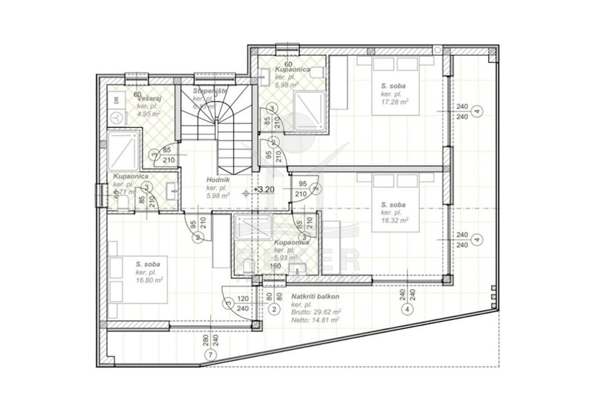
Im Erdgeschoss befinden sich das Wohnzimmer, die Küche und der Essbereich. Ergänzt wird diese Ebene durch ein Badezimmer, eine separate Toilette, einen Flur und die Sauna. Von hier aus gelangen Sie direkt auf die überdachte Terrasse. Im Obergeschoss stehen drei Schlafzimmer zur Verfügung. Jedes Zimmer verfügt über ein eigenes Bad und Zugang zur Terrasse. Ein Flur und ein Hauswirtschaftsraum ergänzen diese Etage. Zur Ausstattung zählen Fußbodenheizung, Klimaanlage, Videoüberwachung, Alarmanlage und ein Innenkamin. Zusammen mit der hochwertigen Konstruktion entsteht so ein modernes, komfortables Haus mit klarem Fokus auf Qualität.
Die Villa erwartet Sie in Krk!
Die Stadt Krk ist die bedeutendste Stadt und mit ca. 3700 Einwohnern auch die größte Stadt auf der Insel. Sie ist Hafenstadt und Kurort und liegt nur ca. 25 km von der Brücke entfernt.
- Ort: Krk (Stadt)
- Einwohnerzahl: 6243 (2011)
- Region: Kvarner-Bucht
- Insel: Krk
- Autobahnentfernung: ca. 30 km *
- Nächster Flughafen: Rijeka / ca. 26 km *
Immobiliendaten
- Objektart: Haus
- Objekttyp: Villa
- Baujahr: 2024
- ID: 9693
- Kaufpreis: 1.200.000 €
- Provision: 3,75 % inkl. MwSt. in Kroatien
- Grundstücksgröße: 614 m²
- Wohnfläche: 180 m²
- Anzahl Zimmer: 4
- Anzahl Schlafzimmer: 3
- Anzahl Badezimmer: 3
- Land: Kroatien
- Region: Kvarner-Bucht
- Ort: Krk
- Meerentfernung: 1 km
Haben Sie Interesse die schöne Villa zu besitzen?
Nehmen Sie gerne Kontakt mit mir auf!
Ich bin Heiner Reker, Gründer und
Geschäftsführer von Reker Immobilien d.o.o. Ich begleite Sie bei Ihrer aufregenden Reise in die Welt der Immobilien in Kroatien.
Gerne organisiere ich persönlich mit meinen qualifizierten Partnern jeden Schritt bei Ihrem rechtssicheren und stressfreien Immobilienkauf in Kroatien.
Füllen Sie das Formular aus und ich melde mich gerne zum gewünschten Zeitpunkt bei Ihnen.
Bis bald
Exposé mitnehmen?
Laden Sie unser PDF-Exposé herunter und Sie haben die wichtigste Objektdaten & Bilder immer zur Hand
Exposé mitnehmen?
Nehmen Sie Kontakt mit uns auf, ein Exposé schicken wir gerne per E-Mail
Ihre Traum-Immobilie noch nicht gefunden?
Besuchen Sie diese Seiten!



























