LUXURIÖSE VILLA MIT ATEMBERAUBENDEM PANORAMABLICK AUF DAS MEER AUF KRK
Traumhafte Villa auf Krk
Das Anwesen liegt in idyllischer Lage auf der Insel Krk, nur 800 Meter vom Meer und Strand entfernt. Die Insel, mit ihrer reichen Geschichte und wunderschönen Badebuchten, bietet eine perfekte Umgebung für Erholung und Entspannung. Die Villa selbst befindet sich in einem ruhigen und grünen Ortsteil in der Nähe von Krk, wo Sie die Natur in vollen Zügen genießen können. Die gute Anbindung über die Brücke Krk und den Flughafen Rijeka ermöglicht eine bequeme Anreise für Bewohner und Gäste. Ob Sie die Insel mit dem Auto erkunden oder von Panoramaflügen über die Kvarner Bucht träumen, Krk bietet unzählige Möglichkeiten für unvergessliche Erlebnisse. Erleben Sie das mediterrane Lebensgefühl auf einer der beliebtesten Inseln Kroatiens in dieser exquisiten Villa.
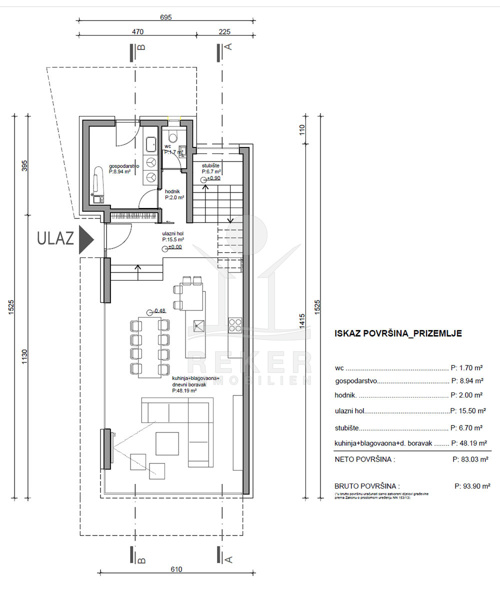
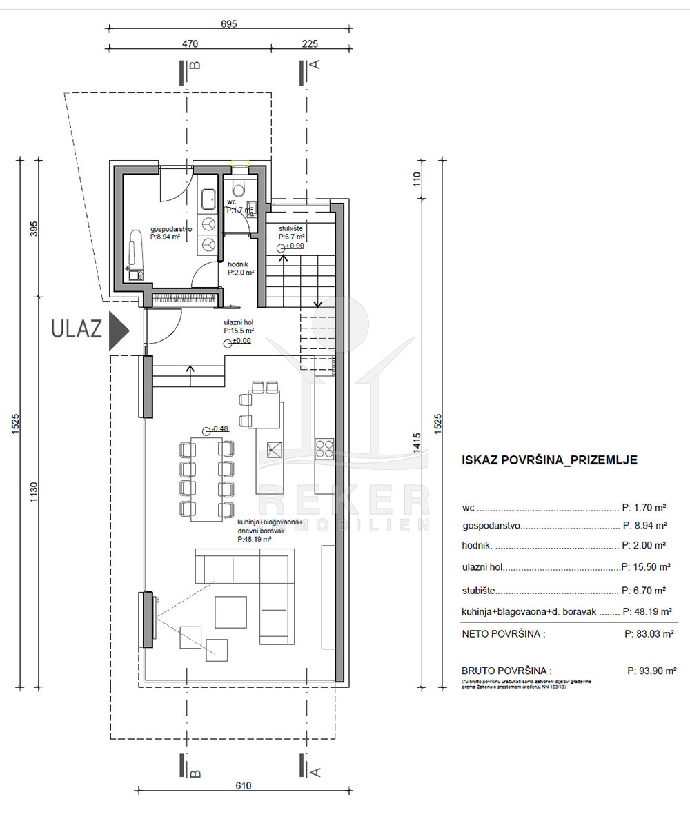
Die Villa erstreckt sich über 2 Etagen auf einem wunderschönen Grundstück mit 539 m² in leichter Hanglage und einem liebevoll angelegten Garten. Mit einer Wohnfläche von 183 m² besticht die Villa durch hochwertige Konstruktion und Ausstattung, darunter erstklassige Panoramaglaswände, Klimaanlage, Fußbodenheizung mit Wärmepumpe, Videoüberwachung und Internet.
Der Außenbereich der Villa ist ein wahres Paradies, mit einem beheizten Swimmingpool (36 m²) und einer überdachten Terrasse von 30 m², die zum Entspannen einlädt. Eine Outdoorküche (20 m²) bietet die Möglichkeit, mediterrane Köstlichkeiten im Freien zuzubereiten und schafft einen zusätzlichen Freizeit- und Spaßbereich. Mit einem atemberaubenden Ausblick und luxuriösen Annehmlichkeiten ist diese Villa der perfekte Ort für Entspannung und Genuss.
Moderne Eleganz mit Meerblick
Die Wohnung besticht durch ihre moderne Eleganz und bietet im Erdgeschoss ein offenes Wohnzimmer mit Küche, Essbereich, Flur, Gäste-WC, Technikraum und Abstellraum. Von hier aus gelangen Sie auf die Terrasse, die zum Entspannen und Genießen einlädt.
Privatsphäre und Luxus im Obergeschoss
Das erste Obergeschoss ist über eine interne Treppe erreichbar und beherbergt zwei Schlafzimmer mit jeweils eigenem Badezimmer und begehbarem Kleiderschrank. Der überdachte Balkon verwöhnt mit einem atemberaubenden Blick auf das offene Meer, der zum Träumen und Verweilen einlädt.
Die Villa erwartet Sie in Krk!
Die Stadt Krk ist die bedeutendste Stadt und mit ca. 3700 Einwohnern auch die größte Stadt auf der Insel. Sie ist Hafenstadt und Kurort und liegt nur ca. 25 km von der Brücke entfernt.
- Ort: Krk (Stadt)
- Einwohnerzahl: 6243 (2011)
- Region: Kvarner-Bucht
- Insel: Krk
- Autobahnentfernung: ca. 30 km *
- Nächster Flughafen: Rijeka / ca. 26 km *
Immobiliendaten
- Objektart: Haus
- Objekttyp: Villa
- Baujahr: 2014
- ID: 7049
- Kaufpreis: 1.250.000 €
- Provision: 3,75 % inkl. MwSt. in Kroatien
- Grundstücksgröße: 946 m²
- Wohnfläche: 189 m²
- Anzahl Zimmer: 4
- Anzahl Schlafzimmer: 2
- Anzahl Badezimmer: 2
- Land: Kroatien
- Region: Kvarner-Bucht
- Ort: Krk
- Lage: Ortslage
- Meerentfernung: 800 m
Haben Sie Interesse die schöne Villa zu besitzen?
Nehmen Sie gerne Kontakt mit mir auf!
Ich bin Heiner Reker, Gründer und
Geschäftsführer von Reker Immobilien d.o.o. Ich begleite Sie bei Ihrer aufregenden Reise in die Welt der Immobilien in Kroatien.
Gerne organisiere ich persönlich mit meinen qualifizierten Partnern jeden Schritt bei Ihrem rechtssicheren und stressfreien Immobilienkauf in Kroatien.
Füllen Sie das Formular aus und ich melde mich gerne zum gewünschten Zeitpunkt bei Ihnen.
Bis bald
Exposé mitnehmen?
Laden Sie unser PDF-Exposé herunter und Sie haben die wichtigste Objektdaten & Bilder immer zur Hand
Exposé mitnehmen?
Nehmen Sie Kontakt mit uns auf, ein Exposé schicken wir gerne per E-Mail
Ihre Traum-Immobilie noch nicht gefunden?
Besuchen Sie diese Seiten!


























